We use cookies and other technologies for functionality, security, and to provide you with a personalized experience on our online services. By continuing to use our online services, you agree to our Privacy Policy and Terms of Use. For information on how to adjust your privacy settings, visit our Cookie Policy.
Dismiss
Home ON Ottawa - Gatineau Ottawa Old Ottawa East
112 GREENFIELD AVENUE
Directions Print
112 GREENFIELD AVENUE $4,100/Monthly
4 days ago
$4,100/Monthly
Hide
Favourite

112 GREENFIELD AVENUE
Ottawa, Ontario K1S5H7

MLS® Number: X12742640
2
Bedrooms
3
Bathrooms
1500 - 2000
Square Feet

Listing Description

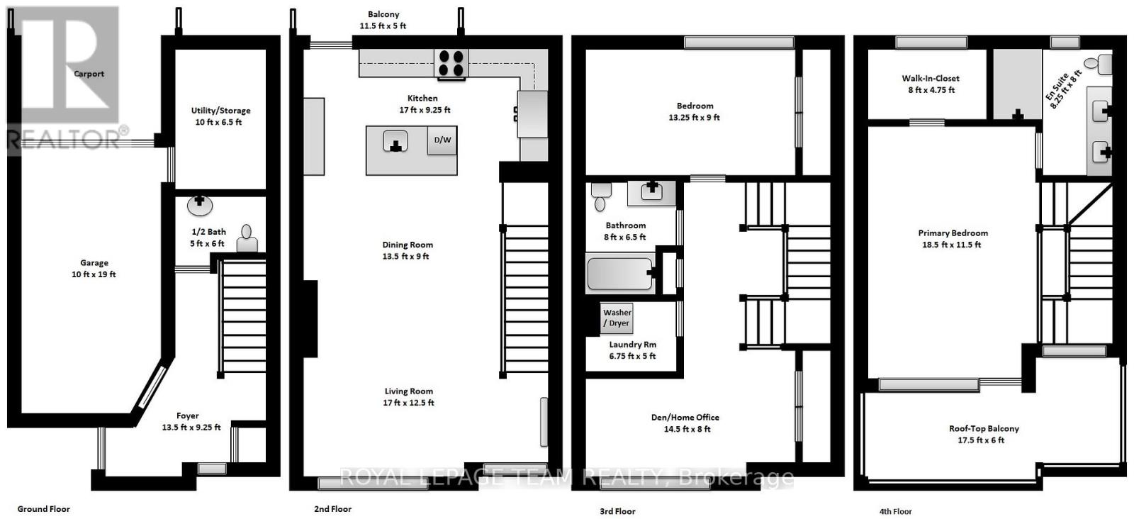
Stunning 4-storey modern FREEHOLD executive row perfectly nestled in beautiful Old Ottawa East. Barry Hobin designed & EQ Homes built - this chic, STYLISH, 1,840 sq ft well-maintained home features 2 bdrs + DEN, 2.5 baths, garage & carport. Deceptively LARGE w/ 2 outdoor TERRACES that expand the living space. Floor-to-ceiling windows, in-floor heating, hardwood floors & main level 9-ft ceilings! OPEN-CONCEPT 2nd flr great room with f/p, kitchen w/ granite counters & over-sized centre island - perfect for entertaining. 3rd flr features bdr, bath, laundry & den - ideal for HOME OFFICE, 4th flr primary bdr retreat boasts en suite, W-I-C & balcony capturing the city skyline. Steps to Rideau Canal walking/bike paths, uOttawa/LRT & Elgin St & Main St amenities & eateries. Close to downtown, Glebe, Lansdowne, Market & Ottawa Hospitals. Available March 1, 2026. Unfurnished. Min 14 month lease. (42048862)

Location Description

Cross Streets: Main St. ** Directions: Main St north, right on Greenfield Ave.

Property Summary

Property Type
Single Family
Building Type
Row / Townhouse
Square Footage
1500 - 2000 sqft
Community Name
4408 - Ottawa East
Title
Freehold
Land Size
17.9 FT
Age Of Building
6 to 15 years
Parking Type
Garage, Covered, Inside Entry, Tandem
Time on REALTOR.ca
4 days

Building

Bedrooms
Above Grade
2
Bathrooms
Total
3
Partial
1
Interior Features
Appliances Included
Garage door opener remote(s), Dishwasher, Dryer, Hood Fan, Microwave, Stove, Washer, Window Coverings, Refrigerator
Basement Type
None
Building Features
Features
In suite Laundry
Foundation Type
Slab
Style
Attached
Fire Protection
Smoke Detectors
Building Amenities
Fireplace(s)
Rental Equipment
Water Heater
Structures
Deck
Heating & Cooling
Cooling
Central air conditioning, Wall unit, Air exchanger
Fireplace
1
Heating Type
Forced air (Natural gas)
Utilities
Utility Sewer
Sanitary sewer
Water
Municipal water
Exterior Features
Exterior Finish
Brick, Stone
Parking
Parking Type
Garage, Covered, Inside Entry, Tandem
Total Parking Spaces
2

Measurements

Square Footage
1500 - 2000 sqft

Rooms

MetricImperial
Second level
Living room
Dining room
Kitchen
Third level
Bedroom
Den
Bathroom
Laundry room
Upper Level
Primary Bedroom
Bathroom
Other
Ground level
Foyer
Bathroom
Utility room

Land

Lot Features
Frontage
17 ft ,10 in
Landscape Features
Landscaped
View
City view
Data provided by: Ottawa Real Estate Board
Are you interested in touring this listing?
Request a showing

Similar Listings

Eric Ritterrath