We use cookies and other technologies for functionality, security, and to provide you with a personalized experience on our online services. By continuing to use our online services, you agree to our Privacy Policy and Terms of Use. For information on how to adjust your privacy settings, visit our Cookie Policy.
Dismiss
Home AB Greater Calgary Division No. 6 Calgary Shaganappi
2533 Sovereign Crescent SW
Directions Print
2533 Sovereign Crescent SW $639,900
$639,900
Hide
Favourite

2533 Sovereign Crescent SW
Calgary, Alberta T3C3Y3

MLS® Number: A2279495
2
Bedrooms
3
Bathrooms
1313
Square Feet

Listing Description

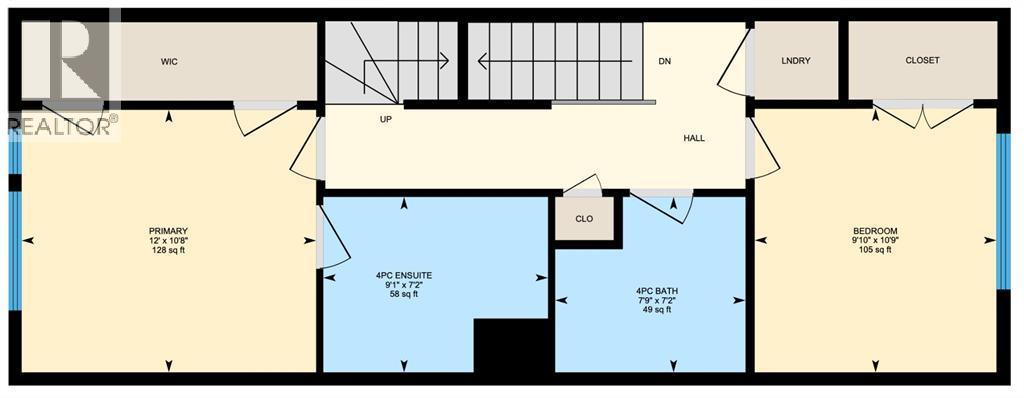
Welcome to the Alameda urban townhome at Crown Park, by Brookfield Residential. Thoughtfully designed, this brand-new residence offers over 1,300 sq. ft. of above-grade living space, plus a versatile lower-level flex room conveniently located off the attached garage. Featuring 2 bedrooms, 2.5 bathrooms, two distinct living areas, and two outdoor living spaces - including an impressive ~200 sq. ft. rooftop patio - this home is ideal for young professionals, downsizers seeking a low-maintenance lifestyle, or investors looking for a premium inner-city opportunity. The welcoming front entrance showcases a spacious patio overlooking green space, complemented by a wall of windows that allow you to enjoy the views both inside and out. The main level boasts a bright, open-concept layout designed with entertaining in mind. The gourmet kitchen is equipped with a gas cooktop, built-in appliances, chimney-style hood fan, and a central island as well as an eating bar that flows seamlessly into the dining and living areas. The central dining space overlooks the living room, while south-facing windows flood the main level with natural light throughout the day. A convenient 2-piece powder room completes this floor. The upper level is intelligently designed for privacy, with bathrooms centrally located and two generously sized bedrooms positioned at opposite ends of the home. The primary suite features double-door entry to a walk-in closet and a luxurious 4-piece ensuite with dual sinks and a tiled walk-in shower with niche. The second bedroom offers a large closet and is perfectly suited as a guest room or home office, with south-facing windows and a full 4-piece bathroom located just steps away. Upper-level laundry adds everyday convenience. Durable vinyl plank flooring continues through the upper-level hallway and stairwell leading to the rooftop patio - a thoughtful upgrade that enhances year-round access to the outdoor space. Designed for entertaining, the rooftop patio offers ample room for lounge and dining areas, is equipped with a gas line, and enjoys views over green space. Completing the home is the lower-level flex room, ideal for a media room, home gym, or office, located adjacent to the private single attached garage, which also includes a dedicated storage room. Timelessly designed with hosting in mind and ample room to grow, this townhome is located just minutes from downtown Calgary and offers multiple outdoor living areas that make it as functional as it is beautiful. With immediate access to nature trails, golf, and major transit routes, this home delivers a lifestyle that extends well beyond its walls. Backed by full builder warranty and Alberta New Home Warranty, you can purchase with complete peace of mind! (31547755)

Property Summary

Property Type
Single Family
Building Type
Row / Townhouse
Storeys
2
Square Footage
1313 sqft
Community Name
Shaganappi
Subdivision Name
Shaganappi
Title
Condominium/Strata
Land Size
Unknown
Built in
2025
Annual Property Taxes
$0
Parking Type
Attached Garage (1)
Time on REALTOR.ca
15 days

Building

Bedrooms
Above Grade
2
Bathrooms
Total
3
Partial
1
Interior Features
Appliances Included
Washer, Refrigerator, Cooktop - Gas, Dishwasher, Dryer, Microwave, Oven - Built-In, Hood Fan
Flooring
Carpeted, Tile, Vinyl
Basement Type
Partial (Finished)
Building Features
Features
Back lane, PVC window, No Animal Home, No Smoking Home, Gas BBQ Hookup, Parking
Foundation Type
Poured Concrete
Style
Attached
Construction Material
Wood frame
Heating & Cooling
Cooling
See Remarks
Heating Type
Forced air
Neighbourhood Features
Community Features
Golf Course Development, Pets Allowed With Restrictions
Amenities Nearby
Golf Course, Park, Playground, Schools, Shopping
Maintenance or Condo Information
Maintenance Fees
$255 Monthly
Maintenance Fees Include
Condominium Amenities, Insurance, Ground Maintenance, Property Management, Reserve Fund Contributions, Waste Removal
Parking
Parking Type
Attached Garage (1)
Total Parking Spaces
1

Measurements

Square Footage
1313 sqft
Total Finished Area
1313 sqft

Rooms

MetricImperial
Main level
Living room
Dining room
Kitchen
2pc Bathroom
Basement
Recreational, Games room
Upper Level
Primary Bedroom
4pc Bathroom
Bedroom
4pc Bathroom
Laundry room

Land

Lot Features
Fencing
Not fenced
Landscape Features
Landscaped
Other Property Information
Zoning Description
DC
Data provided by: Pillar 9™
Are you interested in touring this listing?
Request a showing

Similar Listings

Kevin French