We use cookies and other technologies for functionality, security, and to provide you with a personalized experience on our online services. By continuing to use our online services, you agree to our Privacy Policy and Terms of Use. For information on how to adjust your privacy settings, visit our Cookie Policy.
Dismiss
Home ON Greater Toronto Area Toronto York Fairbanks
462 NORTHCLIFFE BOULEVARD
Directions Print
More Photos + 1
462 NORTHCLIFFE BOULEVARD $2,667,077.61
11 hours ago
$2,667,078
Hide
Favourite

462 NORTHCLIFFE BOULEVARD
Toronto (Oakwood Village), Ontario M6E3L2

MLS® Number: C12632764

Listing Description

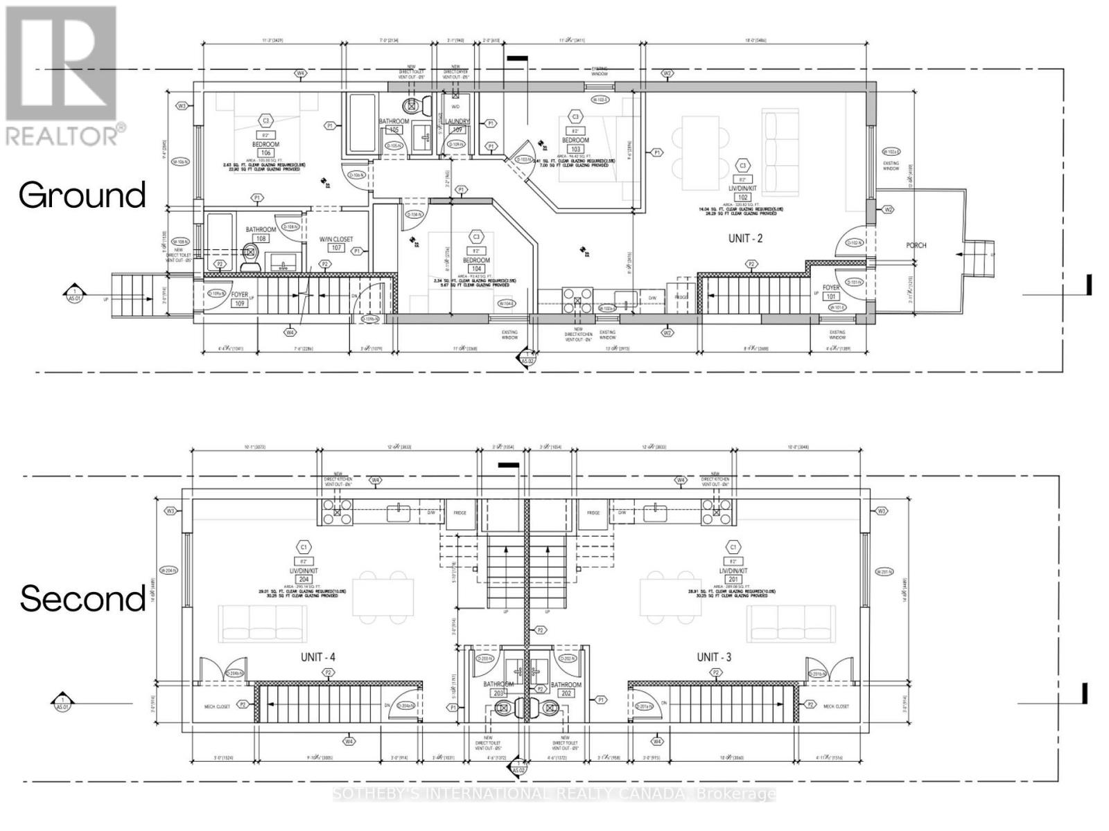
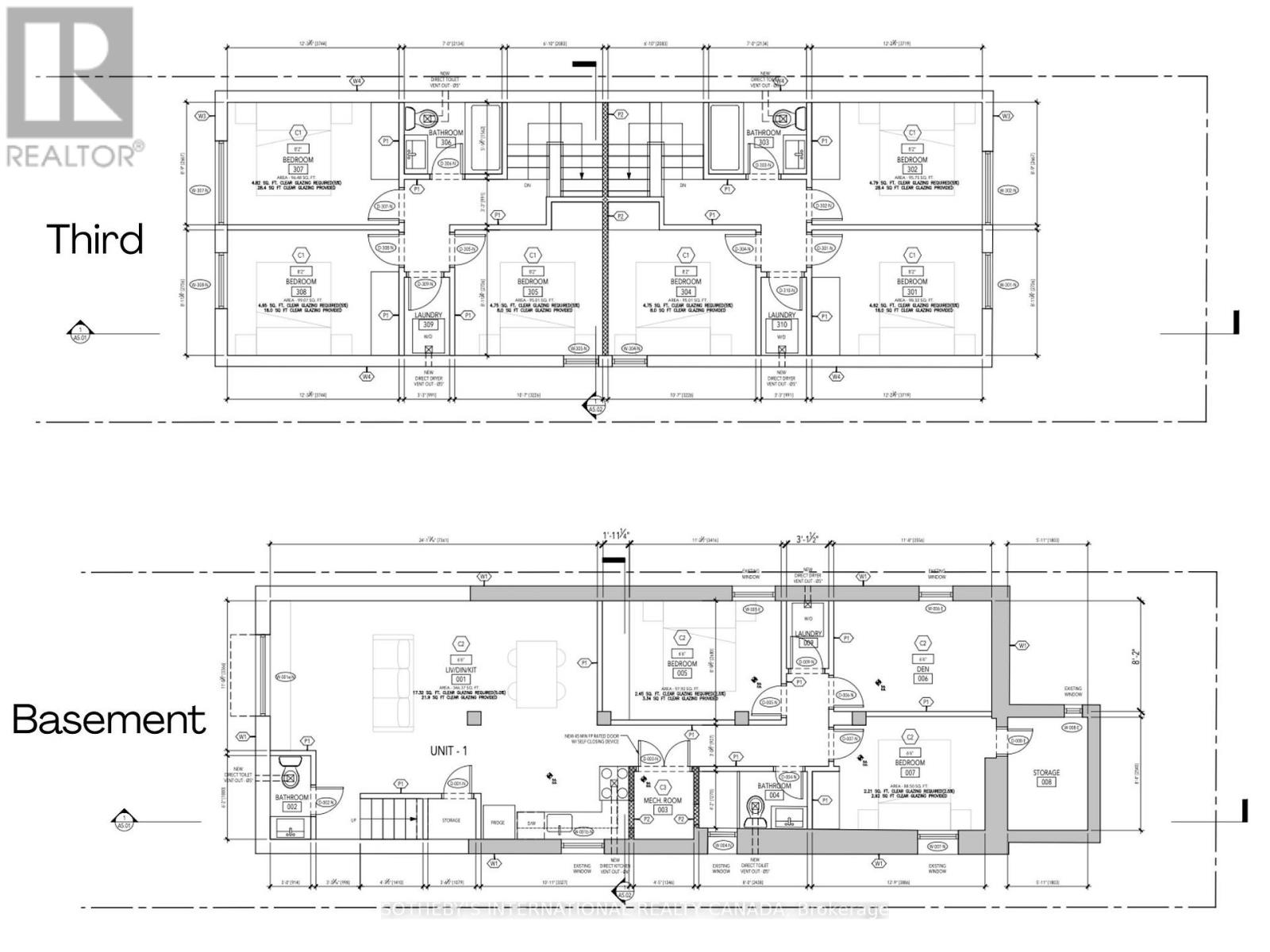
Pre-construction purpose-built rental redevelopment opportunity at 462 Northcliffe Blvd. The property is proposed as a three-storey multi-unit residential building with a self-contained rear garden suite, offered as a fixed-price construction project pursuant to the builder's construction agreement. Architectural drawings and renderings are available for review. The proposed design contemplates a comprehensive rebuild and vertical expansion, including new residential accommodation across multiple storeys and a separate garden suite located at the rear of the lot. The layouts emphasize efficient unit design, individual kitchens and bathrooms, and modern building standards, as illustrated in the architectural plans. The project has been designed with energy efficiency and CMHC MLI Select underwriting considerations in mind, which may provide a potential pathway to insured take-out financing upon stabilization, subject to CMHC program criteria, scoring, debt service coverage, and lender approval. No representation or warranty is made regarding CMHC eligibility, financing terms, or loan-to-value outcomes. Located in an established Toronto neighbourhood with proximity to transit, schools, parks, and local amenities. Intended for build-to-hold investors seeking long-term rental income and cost certainty through a pre-construction structure. Architectural drawings and additional information available upon request. Buyer to verify all permits, approvals, zoning compliance, construction scope, and financing eligibility. Appointment required before walking the site. (41818589)

Location Description

Cross Streets: Dufferin and Rogers. ** Directions: Follow your GPS.

Property Summary

Property Type
Multi-family
Building Type
Multi-Family
Community Name
Oakwood Village
Land Size
25 x 114.12 FT
Annual Property Taxes
$0
Time on REALTOR.ca
11 hours

Building

Heating & Cooling
Cooling
Fully air conditioned
Heating Type
Forced air (Natural gas)
Utilities
Water
Municipal water
Business
Business Type
Residential (Apartments)

Land

Lot Features
Frontage
25 ft
Land Depth
114 ft ,1 in
Other Property Information
Zoning Description
RM (f12.0; u4; d0.8) (x252)
Are you interested in touring this listing?
Request a showing

Similar Listings

DANIEL KIM