We use cookies and other technologies for functionality, security, and to provide you with a personalized experience on our online services. By continuing to use our online services, you agree to our Privacy Policy and Terms of Use. For information on how to adjust your privacy settings, visit our Cookie Policy.
Dismiss
Home ON Greater Toronto Area Toronto York Caledonia-Fairbank Fairbanks
2098 DUFFERIN STREET
Directions Print
2098 DUFFERIN STREET $899,900
Price Change on 12/10/2025
$899,900
-$48,900
$948,800
Hide
Favourite

2098 DUFFERIN STREET
Toronto (Caledonia-Fairbank), Ontario M6E3R7

MLS® Number: W12451412
3
Bedrooms
2
Bathrooms
1100 - 1500
Square Feet

Listing Description

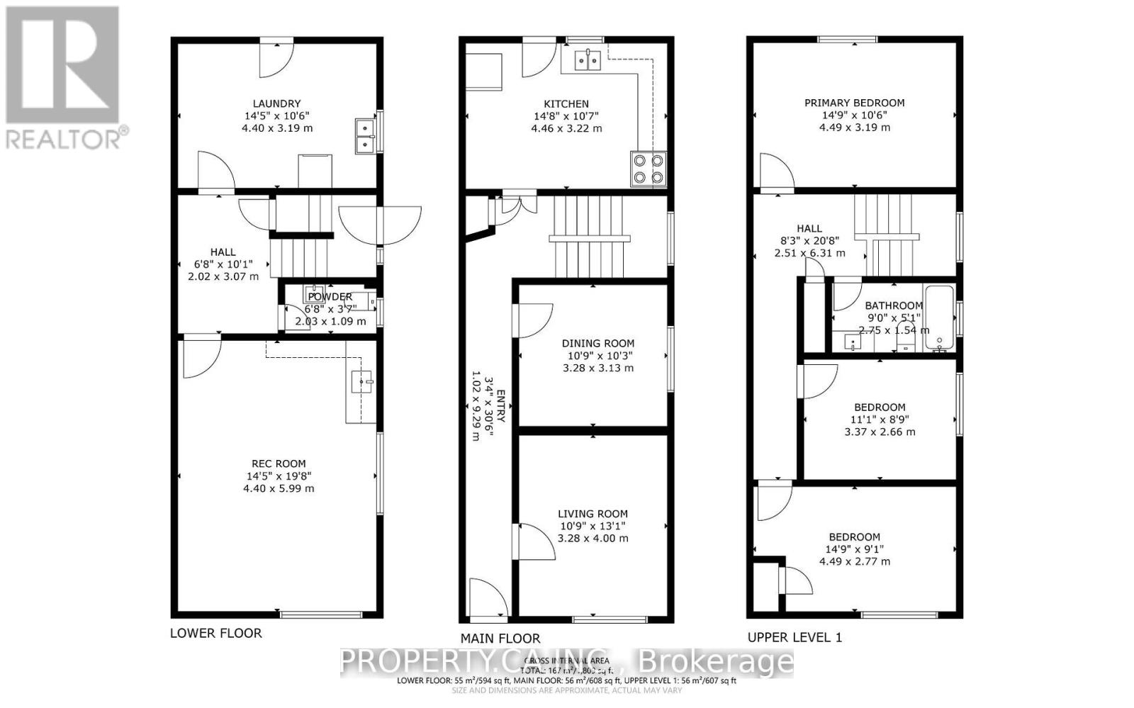
Welcome to 2098 Dufferin Street! This beautifully maintained two-storey detached home offers timeless charm and awaits your personal touch. The sun-drenched main floor boasts a spacious living room, a separate dining room, and an eat-in kitchen with a walk-out to an elevated terrace a perfect spot for morning coffee and soaking up the city vibe. Hardwood floors flow throughout LR,DR & upper level. Complemented by three well-appointed bedrooms and a recently renovated four-piece bathroom. A convenient two-piece powder rm' is located on the lower level. The finished basement features a large, inviting recreation room with a sep entrance, ideal for entertaining. Recent updates include a new roof and aluminum in 2020, and new windows in 2021. Enjoy the fully fenced front yard. Located in the heart of the city & conveniently close to Dufferin and Eglinton, the future Eglinton LRT, restaurants, shops, major hwys, and public trans. 2098 Dufferin is ready for you to make it your own. (41430014)

Location Description

Dufferin & Rogers Rd

Property Summary

Property Type
Single Family
Building Type
House
Storeys
2
Square Footage
1100 - 1500 sqft
Community Name
Caledonia-Fairbank
Title
Freehold
Land Size
25 x 125.2 FT
Annual Property Taxes
$4,215.35
Parking Type
Detached Garage, Garage
Time on REALTOR.ca
66 days

Building

Bedrooms
Above Grade
3
Bathrooms
Total
2
Partial
1
Interior Features
Appliances Included
Stove, Refrigerator
Flooring
Hardwood
Basement Features
Separate entrance
Basement Type
Finished
Building Features
Style
Detached
Rental Equipment
Water Heater
Heating & Cooling
Cooling
Central air conditioning
Heating Type
Forced air (Natural gas)
Utilities
Utility Sewer
Sanitary sewer
Water
Municipal water
Exterior Features
Exterior Finish
Brick
Parking
Parking Type
Detached Garage, Garage
Total Parking Spaces
2

Measurements

Square Footage
1100 - 1500 sqft

Rooms

MetricImperial
Main level
Living room
Dining room
Kitchen
Lower level
Recreational, Games room
Upper Level
Primary Bedroom
Bedroom 2
Bedroom 3

Land

Lot Features
Frontage
25 ft
Land Depth
125 ft ,2 in
Other Property Information
Zoning Description
Zoned CR2(c2,r2) Commercial/Residential Zoning
Are you interested in touring this listing?
Request a showing

Similar Listings

ADAM LINDEN