We use cookies and other technologies for functionality, security, and to provide you with a personalized experience on our online services. By continuing to use our online services, you agree to our Privacy Policy and Terms of Use. For information on how to adjust your privacy settings, visit our Cookie Policy.
Dismiss
Home AB Greater Calgary Division No. 6 Calgary Capitol Hill
1832 17 Avenue NW
Directions Print
1832 17 Avenue NW $2,890,000
$2,890,000
Hide
Favourite

1832 17 Avenue NW
Calgary, Alberta t2m0s2

MLS® Number: A2236306

Listing Description

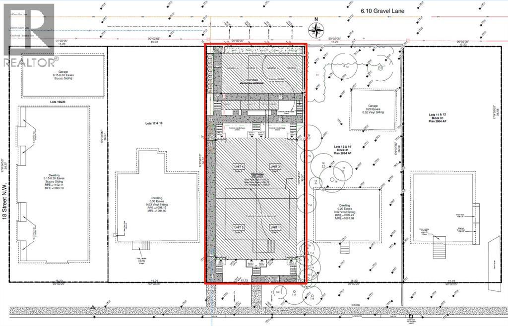
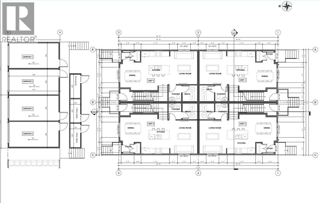
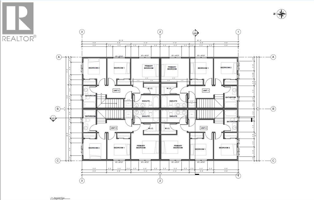
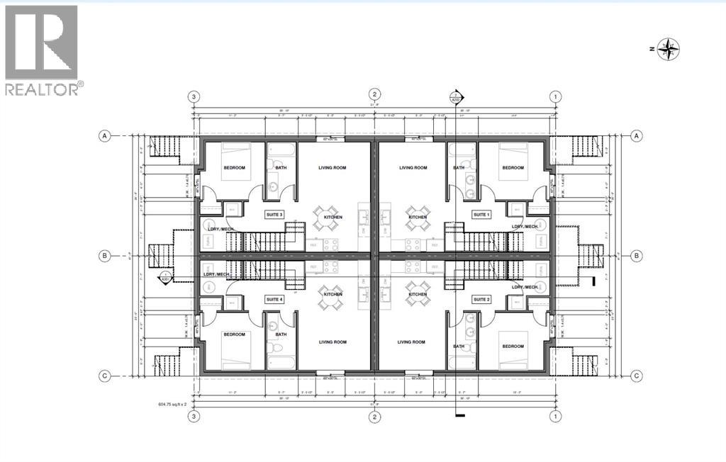
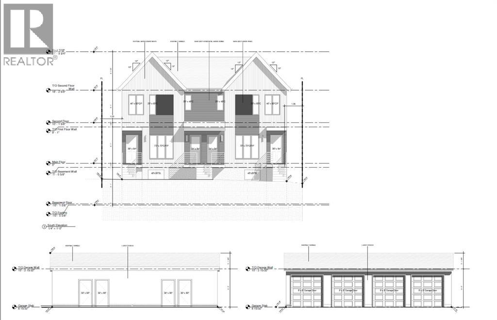
Enhance your real estate portfolio with this premier new construction rental development in Capitol Hill, one of Calgary’s most desirable inner-city communities. Scheduled for completion in the end of 2026, this purpose-built investment property consists of two buildings featuring a total of eight rental suites. Each building includes a spacious upper unit with three bedrooms and 2.5 bathrooms, as well as a well-appointed lower unit offering one bedroom with kitchen and full bathroom. A four-car detached garage with lane access provides added convenience and tenant appeal. Strategically located near downtown Calgary, 17th Avenue, parks, transit, and shopping, the property is ideally positioned to attract quality tenants and command above-average rents. Investors will appreciate the thoughtful design, superior construction, and long-term rental potential of these townhomes.The development is distinguished by its low-maintenance Hardy board exterior, high-efficiency HVAC systems, and durable finishes throughout—ensuring reduced operating costs and long-term durability. These modern, well-designed units are tailor-made for consistent cash flow and minimal upkeep. With estimated rents of $2,850 for upper suites and $1,450 for lower units Whether you're a seasoned investor or looking to diversify your holdings, this exceptional income-generating property offers the perfect blend of location, quality, and financial performance. For more information, contact us and take the next step toward securing a high-performing asset in Calgary’s thriving rental market. (30783138)

Property Summary

Property Type
Multi-family
Building Type
Multi-Family
Community Name
Capitol Hill
Subdivision Name
Capitol Hill
Title
Freehold
Land Size
557 m2|4,051 - 7,250 sqft
Built in
1950
Annual Property Taxes
$4,789
Total Parking Spaces
4
Time on REALTOR.ca
165 days

Building

Parking
Total Parking Spaces
4

Measurements

Square Footage
4462 sqft
Total Finished Area
4462 sqft

Land

Other Property Information
Zoning Description
R-CG
Data provided by: Pillar 9™
Are you interested in touring this listing?
Request a showing

403-471-8180
403-266-0941

Similar Listings

Wei Liao