We use cookies and other technologies for functionality, security, and to provide you with a personalized experience on our online services. By continuing to use our online services, you agree to our Privacy Policy and Terms of Use. For information on how to adjust your privacy settings, visit our Cookie Policy.
Dismiss
Home BC Greater Nanaimo Nanaimo Townsite
205 529 Terminal Ave
Directions Print
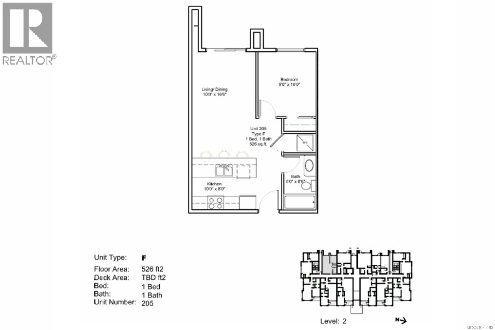
205 529 Terminal Ave $349,900
3 hours ago
$349,900
Hide
Favourite

205 529 Terminal Ave
Nanaimo, British Columbia V9S4K1

MLS® Number: 1025193
1
Bedrooms
1
Bathrooms
526
Square Feet

Listing Description

Introducing The Station, an exciting new West Coast-inspired condo community in vibrant Nanaimo, BC. The Station features a mix of micro studios, one and two-bedroom units, many with private balconies showcasing views of Newcastle Channel and Mount Benson. Each home comes equipped with high-quality finishes including premium appliance packages, in-suite laundry, and layouts designed for everyday comfort. Residents enjoy thoughtful amenities including a fitness facility, multipurpose flex room, secure underground parking with EV charging and bike storage, and a pet-friendly environment—making it easy to stay active, work from home, or entertain guests. The Station is just a short stroll to the Harbourfront Walkway, The E&N Trail with easy access to transit, ferries, trails, shops, restaurants, and recreation. Scheduled for completion in summer 2026, this limited opportunity invites you to secure a contemporary, quality-built condo in one of Vancouver Island’s most dynamic communities. (30350793)

Property Summary

Property Type
Single Family
Building Type
Apartment
Square Footage
526 sqft
Neighbourhood Name
Central Nanaimo
Title
Strata
Built in
2026
Annual Property Taxes
$0
Parking Type
Underground
Time on REALTOR.ca
3 hours

Building

Bathrooms
Total
1
Interior Features
Appliances Included
Microwave, Refrigerator, Stove, Washer, Dryer
Building Features
Architecture Style
Contemporary, Westcoast
Heating & Cooling
Cooling
None
Heating Type
Baseboard heaters, (Electric)
Neighbourhood Features
Community Features
Pets Allowed With Restrictions, Family Oriented
Parking
Parking Type
Underground
Total Parking Spaces
1

Measurements

Square Footage
526 sqft
Total Finished Area
526 sqft

Rooms

MetricImperial
Main level
Bathroom
Primary Bedroom
Living room/Dining room
Kitchen

Land

Other Property Information
Zoning Type
Residential
Are you interested in touring this listing?
Request a showing

Similar Listings

Derek Gillette