We use cookies and other technologies for functionality, security, and to provide you with a personalized experience on our online services. By continuing to use our online services, you agree to our Privacy Policy and Terms of Use. For information on how to adjust your privacy settings, visit our Cookie Policy.
Dismiss
Home ON Hastings Belleville
99 WIMS WAY
Directions Print
99 WIMS WAY $659,000
4 hours ago
$659,000
Hide
Favourite

99 WIMS WAY
Belleville (Thurlow Ward), Ontario K8N0H7

MLS® Number: X12758840
3
Bedrooms
3
Bathrooms
1500 - 2000
Square Feet

Listing Description

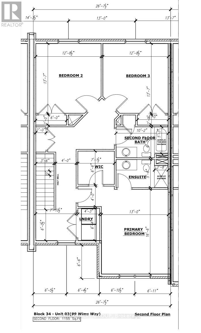
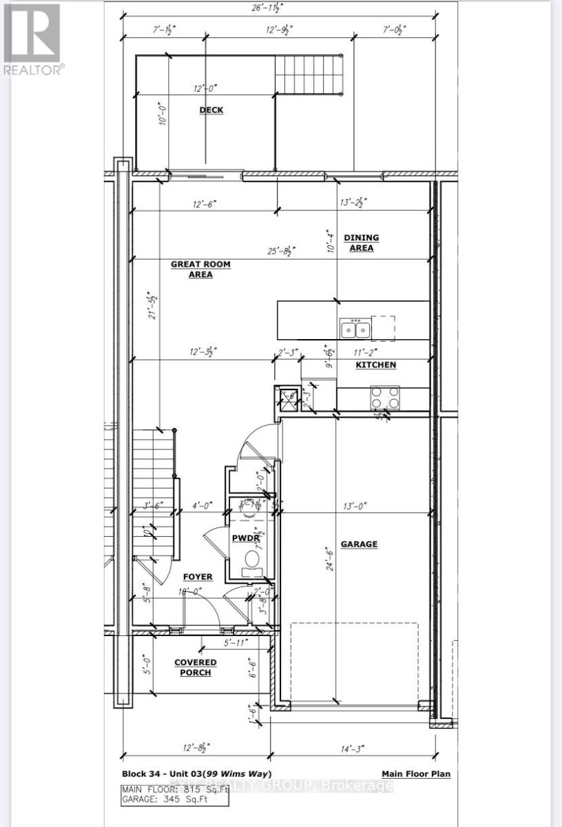
Brand new built two-storey brick townhome with 2000 sq ft by award winning Staikos Homes. We set out to create a townhome that gives families the space they need. Purchasing a townhome should not mean having to give up space. This new design has a main floor with wide open space and offers enough space for comfortable living. Upstairs we have included three oversized bedrooms. This includes the spacious primary suite with a large ensuite and walk-in closet. The layout also includes one of the most popular items, the second-floor laundry room. Located in the south after community Canniff Mill Estates. Canniff Mill Park located in the center of the community. Thurlow Dog Park located on the outside of the Community on the south end. Nature walking trail alongside the Moira River located at the east end of the community. Minutes to shopping, restaurants, golf courses, grocery stores & the 401. Harmony Public school district with bus pickup and drop off in the sub division. Some interior photos are samples of Staikos homes previous townhomes. Buyer can choose all their own interior finishes. Paved driveway, walkway, back deck and rear lot line privacy fence to be completed by the builder. (42083727)

Location Description

Cross Streets: Farnham Rd & Wims Way. ** Directions: Farnham Rd to Wims Way.

Property Summary

Property Type
Single Family
Building Type
Row / Townhouse
Storeys
2
Square Footage
1500 - 2000 sqft
Community Name
Thurlow Ward
Title
Freehold
Land Size
26.9 x 113.5 FT|under 1/2 acre
Age Of Building
New building
Annual Property Taxes
$0
Parking Type
Attached Garage, Garage
Time on REALTOR.ca
4 hours

Building

Bedrooms
Above Grade
3
Bathrooms
Total
3
Partial
1
Interior Features
Basement Type
Full
Building Features
Foundation Type
Concrete
Style
Attached
Heating & Cooling
Cooling
Central air conditioning
Heating Type
Forced air (Natural gas)
Utilities
Utility Sewer
Sanitary sewer
Water
Municipal water
Exterior Features
Exterior Finish
Brick
Neighbourhood Features
Community Features
Community Centre, School Bus
Amenities Nearby
Park, Place of Worship, Schools
Parking
Parking Type
Attached Garage, Garage
Total Parking Spaces
3

Measurements

Square Footage
1500 - 2000 sqft

Rooms

MetricImperial
Second level
Primary Bedroom
Bedroom 2
Bedroom 3
Ground level
Great room
Kitchen
Dining room

Land

Lot Features
Frontage
26 ft ,10 in
Land Depth
113 ft ,6 in
Are you interested in touring this listing?
Request a showing

Similar Listings

Kristin Georgiou