We use cookies and other technologies for functionality, security, and to provide you with a personalized experience on our online services. By continuing to use our online services, you agree to our Privacy Policy and Terms of Use. For information on how to adjust your privacy settings, visit our Cookie Policy.
Dismiss
Home ON Trent Hills
5039 COUNTY RD 25
Directions Print
5039 COUNTY RD 25 $525,000
7 hours ago
Next Open House
Feb
8
$525,000
Hide
Favourite

5039 COUNTY RD 25
Trent Hills (Warkworth), Ontario K0K3K0

MLS® Number: X12757212
2 + 1
Bedrooms
1
Bathrooms
1100 - 1500
Square Feet

Listing Description

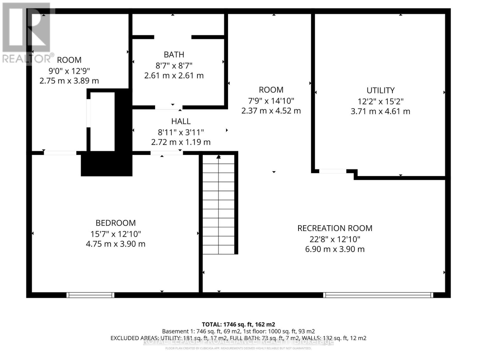
Welcome to this well built raised bungalow by Guildcrest Homes, set on a private, over one acre wooded lot just minutes from the charming village of Warkworth and its full range of amenities. This 1,125 sqft home offers a bright, open concept design filled with natural light and a layout that is both functional and inviting. The eat in kitchen features stainless steel appliances and direct access to the back deck, making it ideal for barbecuing and outdoor entertaining. The kitchen flows seamlessly into the spacious living room, perfect for hosting family and friends. The main level also includes convenient laundry, two generous sized bedrooms, and a four piece bathroom. The recently finished lower level adds excellent in law or multigenerational living potential. A subfloor with vinyl flooring throughout helps keep the space warm and comfortable, while large windows and pot lights create a bright, welcoming atmosphere. This level offers a spacious living area, wet bar, and a good sized bedroom with a walk in closet. The walk in closet could also easily function as a home office, offering added flexibility. A four piece bathroom has been roughed in on the lower level. The seller has already purchased a 60 inch vanity, a full shower enclosure with glass doors, and a toilet, all of which are included with the property. This allows a buyer to complete the bathroom to their own taste in a straightforward and cost effective manner. Built with efficiency in mind, this home is economical to operate, helping keep monthly utility costs manageable. With quality construction, flexible living space, and a peaceful private setting, this property is an excellent opportunity for first time buyers, families, or those seeking future in law potential. (42079790)

Location Description

County Rd 25/ Concession Rd 4 W

Open Houses

Feb 8
1-2:30 PM
Add to Calendar

Property Summary

Property Type
Single Family
Building Type
House
Storeys
1
Square Footage
1100 - 1500 sqft
Community Name
Warkworth
Title
Freehold
Land Size
150.3 x 305.7 FT
Age Of Building
6 to 15 years
Annual Property Taxes
$3,395.04
Parking Type
No Garage
Time on REALTOR.ca
7 hours

Building

Bedrooms
Above Grade
2
Below Grade
1
Bathrooms
Total
1
Interior Features
Appliances Included
Water Heater, Water softener, Dishwasher, Dryer, Microwave, Stove, Washer, Window Coverings, Refrigerator
Basement Type
Partially finished
Building Features
Features
Wooded area, Sloping
Foundation Type
Poured Concrete
Style
Detached
Architecture Style
Raised bungalow
Fire Protection
Smoke Detectors
Rental Equipment
Propane Tank
Structures
Deck, Porch, Shed
Heating & Cooling
Cooling
Central air conditioning, Air exchanger
Heating Type
Forced air (Propane)
Utilities
Utility Type
Electricity (Installed)
Utility Sewer
Septic System
Water
Drilled Well
Exterior Features
Exterior Finish
Vinyl siding
Parking
Parking Type
No Garage
Total Parking Spaces
7

Measurements

Square Footage
1100 - 1500 sqft

Rooms

MetricImperial
Main level
Living room
Kitchen
Dining room
Primary Bedroom
Bedroom 2
Lower level
Recreational, Games room
Kitchen
Bedroom
Utility room

Land

Lot Features
Frontage
150 ft ,3 in
Land Depth
305 ft ,8 in
Are you interested in touring this listing?
Request a showing

Similar Listings

JOHN HILL