We use cookies and other technologies for functionality, security, and to provide you with a personalized experience on our online services. By continuing to use our online services, you agree to our Privacy Policy and Terms of Use. For information on how to adjust your privacy settings, visit our Cookie Policy.
Dismiss
Home BC Central Kootenay B
1421 Erickson Road Unit# 21
Directions Print
1421 Erickson Road Unit# 21 $179,000
1 day ago
$179,000
Hide
Favourite

1421 Erickson Road Unit# 21
Creston, British Columbia V0B1G1

MLS® Number: 10374593
2
Bedrooms
1
Bathrooms
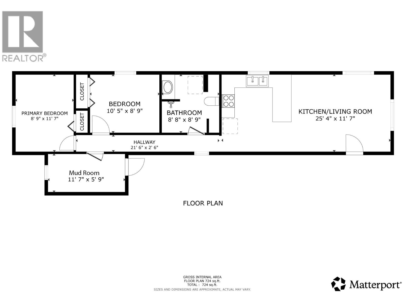
724
Square Feet

Listing Description

This 2 bedroom 1 bathroom mobile home in Scottie's Mobile Home Park has been completely redone from the studs up, with a new roof, new electrical, plumbing, and a host of other practical and aesthetic upgrades. If you're looking for a move in ready mobile in the quiet community of Erickson this may be the one for you! (39695088)

Property Summary

Property Type
Single Family
Building Type
Manufactured Home
Storeys
1
Square Footage
724 sqft
Neighbourhood Name
Creston
Title
Freehold
Land Size
under 1 acre
Built in
1972
Annual Property Taxes
$325.59
Time on REALTOR.ca
1 day

Building

Bathrooms
Total
1
Partial
0
Interior Features
Flooring
Vinyl
Heating & Cooling
Cooling
Wall unit
Heating Type
Forced air, See remarks
Utilities
Utility Sewer
Municipal sewage system
Water
Municipal water
Exterior Features
Roof Style
Asphalt shingle
Neighbourhood Features
Community Features
Seniors Oriented
Maintenance or Condo Information
Maintenance Fees
$395 Monthly
Maintenance Fees Include
Pad Rental

Measurements

Square Footage
724 sqft

Rooms

MetricImperial
Main level
Mud room
Bedroom
Full bathroom
Primary Bedroom
Living room
Kitchen
Are you interested in touring this listing?
Request a showing

Similar Listings

Karen Peck