We use cookies and other technologies for functionality, security, and to provide you with a personalized experience on our online services. By continuing to use our online services, you agree to our Privacy Policy and Terms of Use. For information on how to adjust your privacy settings, visit our Cookie Policy.
Dismiss
Home ON Greater Toronto Area Toronto Scarborough West Hill
21 AMIENS ROAD
Directions Print
21 AMIENS ROAD $790,000
1 day ago
$790,000
Hide
Favourite

21 AMIENS ROAD
Toronto (West Hill), Ontario M1E3S5

MLS® Number: E12750234
0
Bathrooms
0 - 699
Square Feet

Listing Description

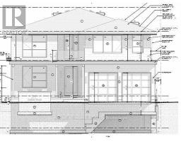
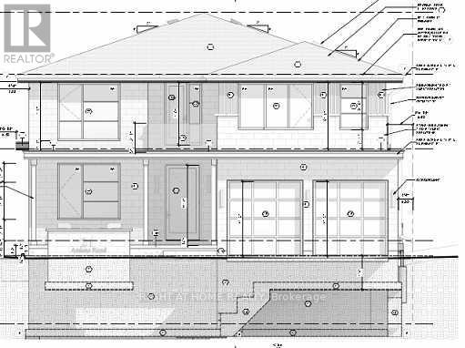
Attention builders, Construction project of a 3857 sq ft, 2 storey, 4-bedroom house. Foundation completed. Approved Drawings available to continue the project. Sold Under Power Of Sale Therefore As Is/Where Is Without Any Warranties From The Seller. (42064772)

Location Description

Morningside/Kingston Rd

Property Summary

Property Type
Vacant Land
Square Footage
0 - 699 sqft
Community Name
West Hill
Land Size
50 x 173 FT|under 1/2 acre
Annual Property Taxes
$3,062
Parking Type
No Garage
Time on REALTOR.ca
1 day

Building

Bathrooms
Total
0
Interior Features
Basement Type
None
Building Features
Foundation Type
Poured Concrete
Heating & Cooling
Cooling
None
Heating Type
Other
Utilities
Utility Type
Cable (Available), Electricity (Available), Sewer (Available)
Utility Sewer
Sanitary sewer
Water
Municipal water
Parking
Parking Type
No Garage
Total Parking Spaces
0

Measurements

Square Footage
0 - 699 sqft

Land

Lot Features
Frontage
50 ft
Land Depth
173 ft
Other Property Information
Zoning Description
residential
Are you interested in touring this listing?
Request a showing

Similar Listings

WALTER KOZIEJ