We use cookies and other technologies for functionality, security, and to provide you with a personalized experience on our online services. By continuing to use our online services, you agree to our Privacy Policy and Terms of Use. For information on how to adjust your privacy settings, visit our Cookie Policy.
Dismiss
Home BC Greater Kelowna Kelowna North Mission - Crawford
4495 Walker Road Unit# 1
Directions Print
4495 Walker Road Unit# 1 $1,799,000
1 day ago
$1,799,000
Hide
Favourite

4495 Walker Road Unit# 1
Kelowna, British Columbia V1W1G8

MLS® Number: 10374008
5
Bedrooms
5
Bathrooms
2239
Square Feet

Listing Description

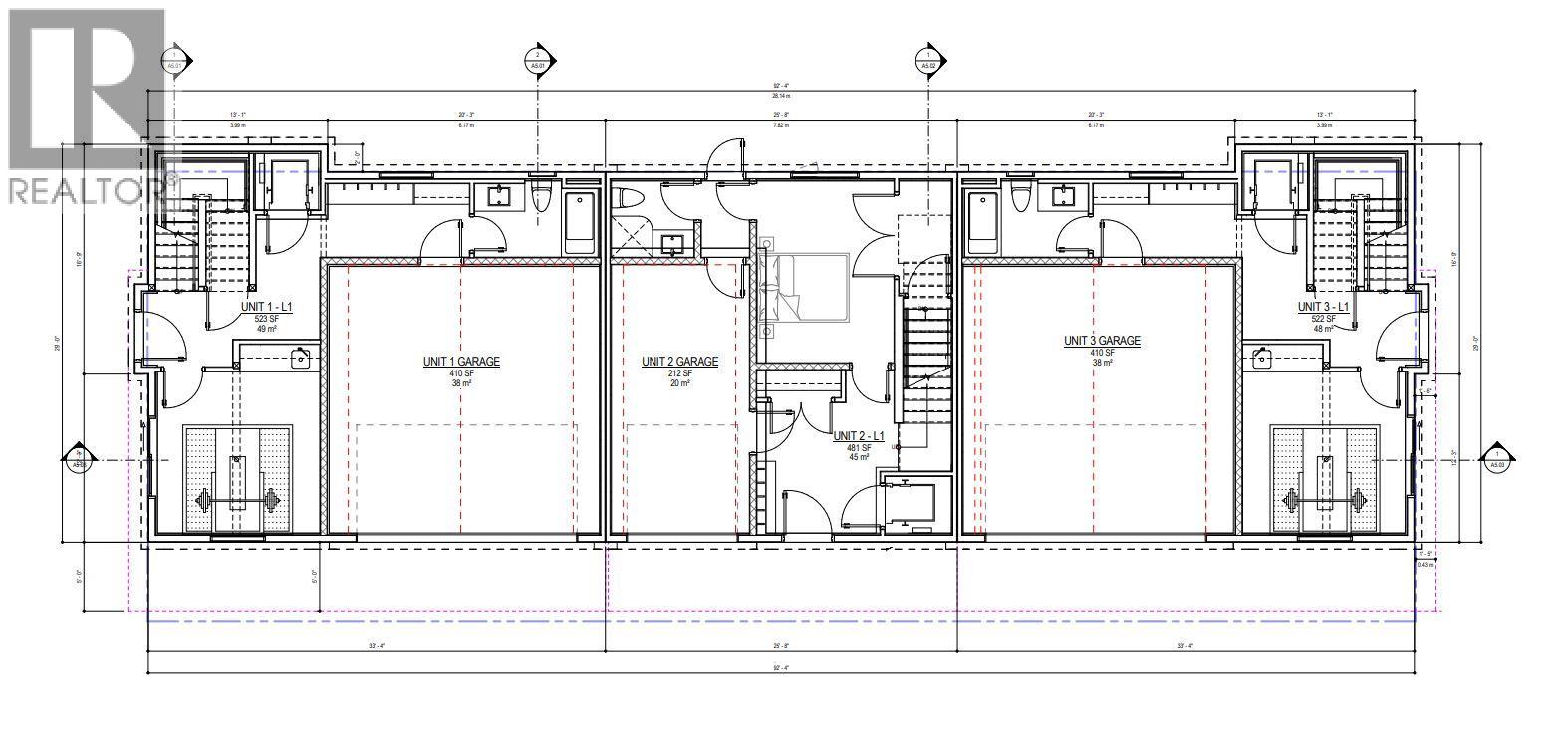
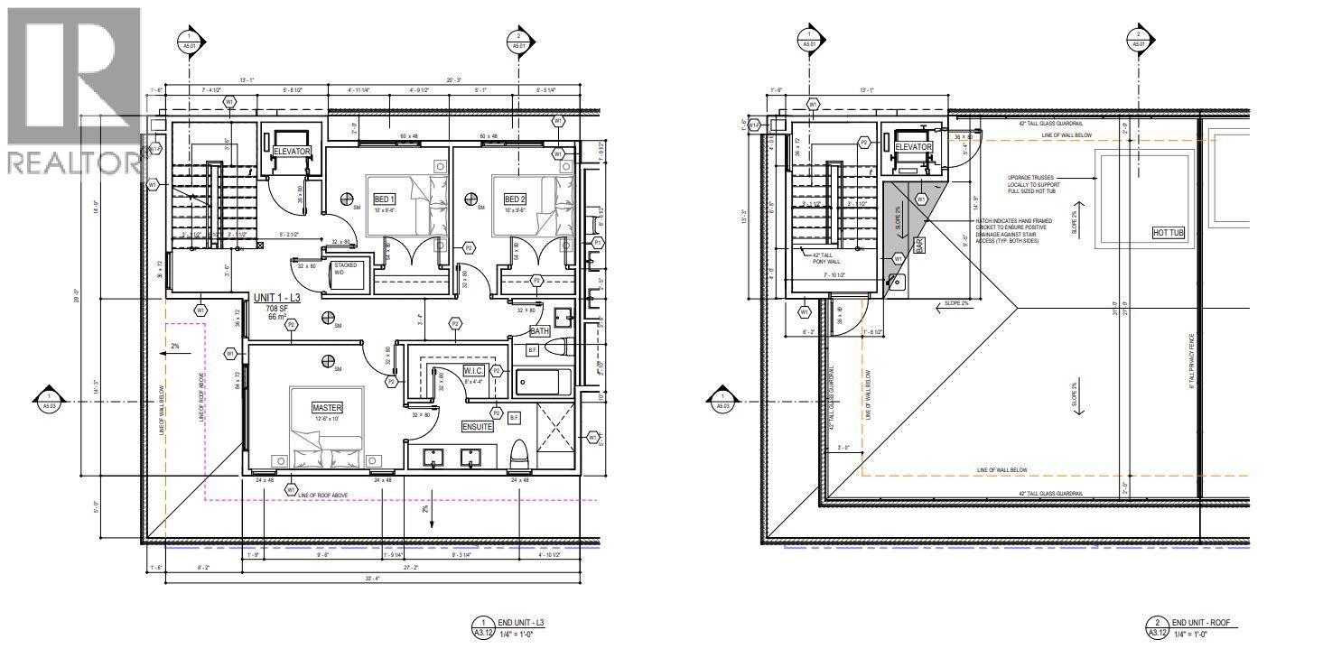
Introducing the pinnacle of luxury living!! This brand-new, spacious high-end townhome boasts 5 bedrooms, 5 bathrooms PLUS roof top deck! 3 floors of top quality finishing, every detail has been meticulously crafted. The gourmet kitchen boasts granite countertops, stainless steel appliances and island, ideal for entertaining. Exposed beams create a unique architectural statement by blending rustic charm with modern living. Gather with your guests on the roof top deck with easy access by elevator from the main floor right to the top. Take in the breathtaking lake, mountain and city view! Have your family bedrooms together on the 3rd floor. The primary bedroom includes a generous size ensuite with double vanity, custom tile shower and walk in closet. 2 additional bedrooms and 1 bathroom. Level 1 and 2 have additional flex/bedrooms and bathrooms ready for the extra guests or use the space for yourself! Additional features include laundry on the main floor, built-in Sonos speakers throughout the home and bar sink on the roof top deck. Take a short stroll to the lake and beautiful Sarsons Beach Park where you can bring your kayak, paddle board or just soak up the sun-kissed lake life. Located in the sought after Lower Mission area close to shops, restaurants, breweries and multiple outdoor trails, this stunning townhome is situated in a prime location! Buy now and personalize your dream home with your choice of finishing. Plus GST (39687617)

Property Summary

Property Type
Single Family
Building Type
Row / Townhouse
Storeys
3
Square Footage
2239 sqft
Community Name
Walk On Water
Neighbourhood Name
Lower Mission
Title
Strata
Land Size
under 1 acre
Built in
2026
Annual Property Taxes
$3,050.19
Parking Type
Attached Garage (2)
Time on REALTOR.ca
1 day

Building

Bathrooms
Total
5
Partial
1
Building Features
Style
Attached
Architecture Style
Contemporary
Heating & Cooling
Cooling
Heat Pump
Fireplace Type
Unknown (Gas)
Heating Type
Heat Pump, (Other)
Utilities
Utility Sewer
Municipal sewage system
Water
Municipal water
Parking
Parking Type
Attached Garage (2)
Total Parking Spaces
2

Measurements

Square Footage
2239 sqft

Rooms

MetricImperial
Main level
Full bathroom
Bedroom
Second level
2pc Bathroom
Full bathroom
Bedroom
Kitchen
Dining room
Living room
Third level
Full bathroom
Bedroom
Bedroom
Full ensuite bathroom
Primary Bedroom

Land

Lot Features
View
City view, Lake view, Mountain view
Are you interested in touring this listing?
Request a showing

Similar Listings

Wes Jones