We use cookies and other technologies for functionality, security, and to provide you with a personalized experience on our online services. By continuing to use our online services, you agree to our Privacy Policy and Terms of Use. For information on how to adjust your privacy settings, visit our Cookie Policy.
Dismiss
Home AB Greater Edmonton Edmonton Sifton Park
4130 134A AV NW
Directions Print
4130 134A AV NW $414,900
1 day ago
$414,900
Hide
Favourite

4130 134A AV NW
Edmonton, Alberta T5A2N5

MLS® Number: E4471868
4
Bedrooms
3
Bathrooms
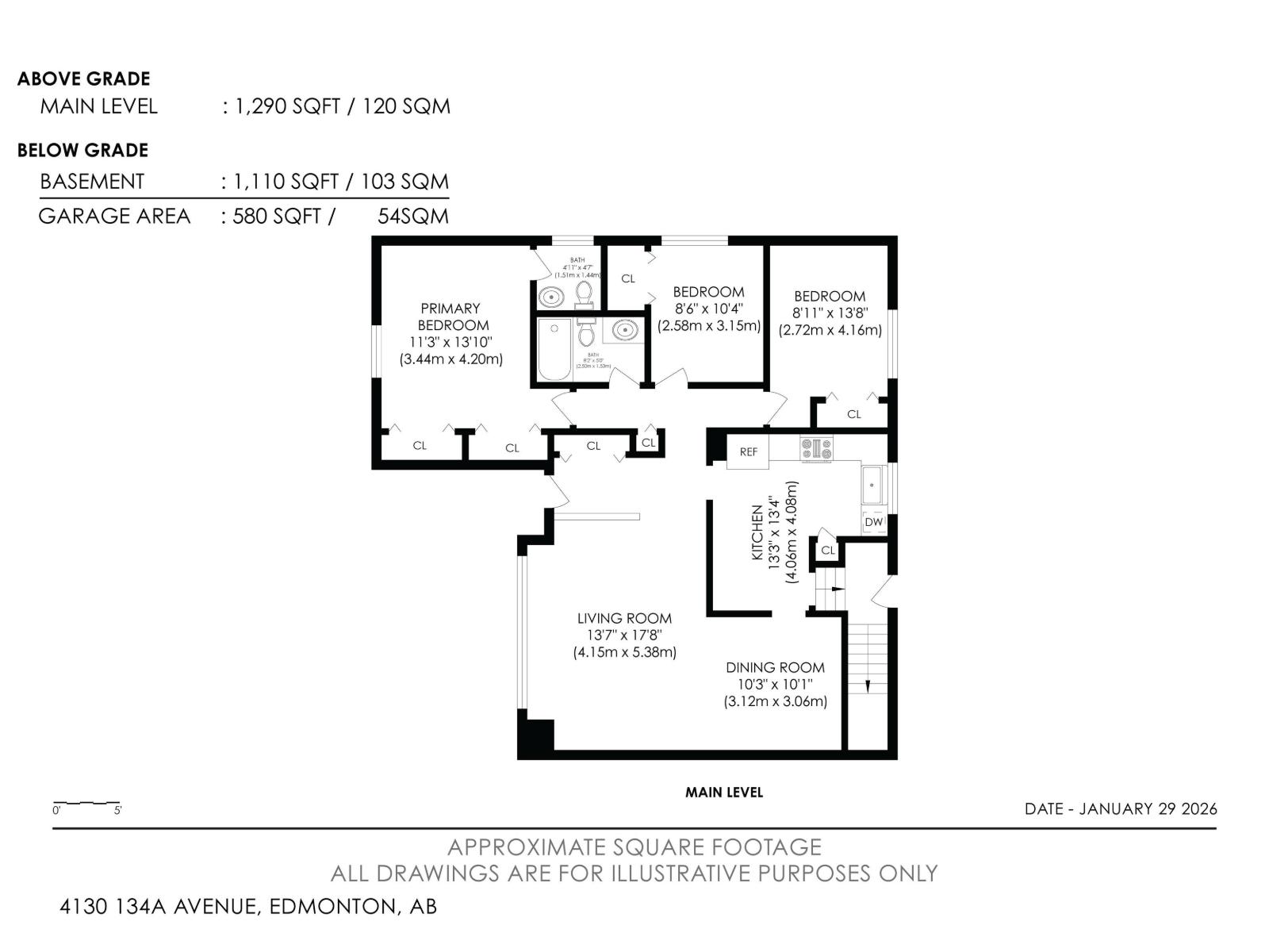
1292
Square Feet

Listing Description

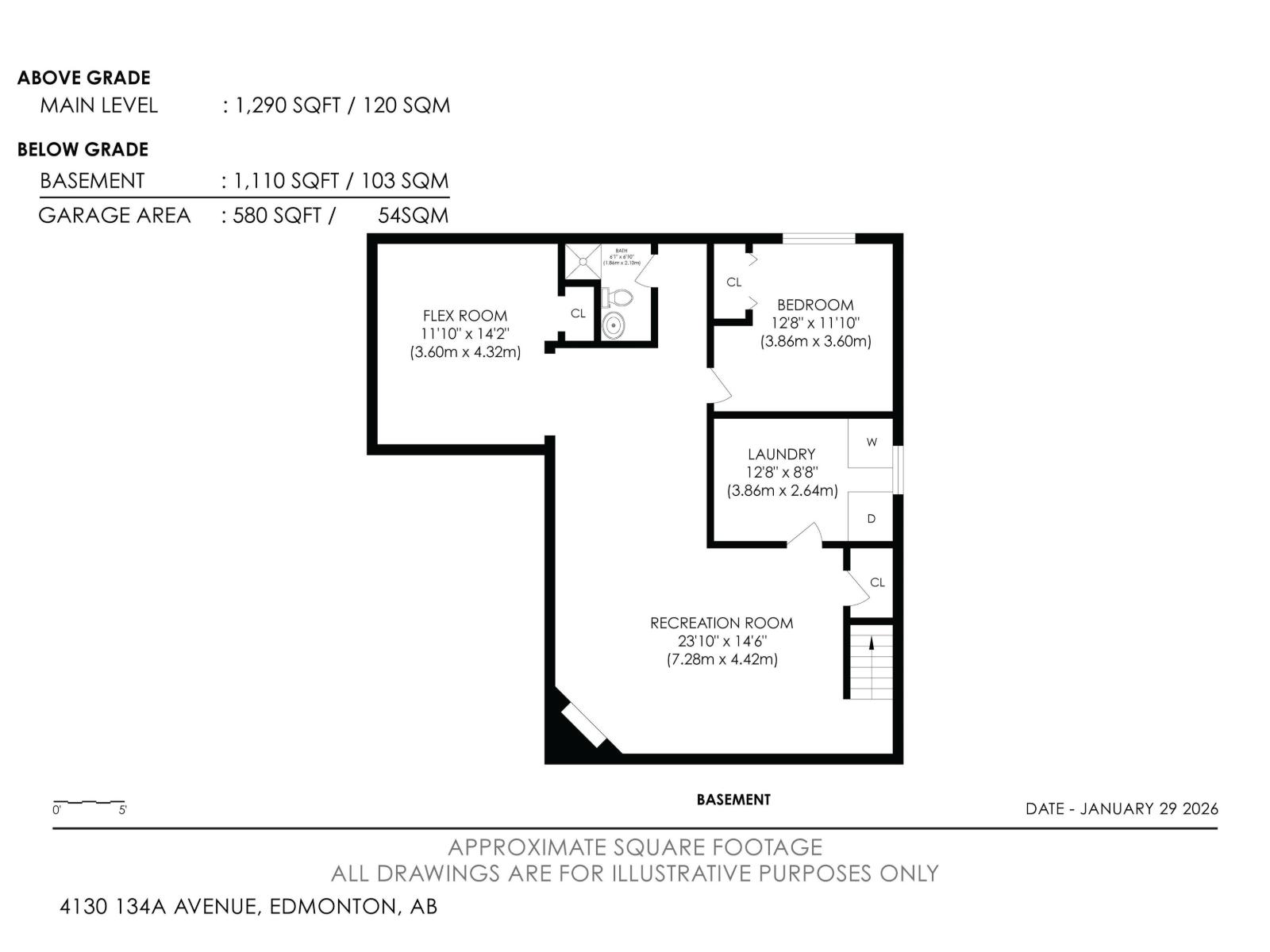
Solid bungalow located in the mature neighborhood of Sifton Park, offering excellent investment potential. The main floor features three bedrooms, including a primary with 2-piece ensuite, a spacious living room, dining area, kitchen, and a full 4-piece bath. The fully developed basement provides additional living space complete with a corner fireplace, wet bar, games area, an additional bedroom, and a 3-piece bathroom. Property includes a double detached heated garage and sits on a well-established lot. Key updates include a newer furnace and air conditioning, updated shingles, new concrete sidewalk and driveway, and some updated flooring—helping reduce immediate capital costs. A versatile property with solid bones in a desirable area, ideal for investors or value-focused buyers. (33784354)

Property Summary

Property Type
Single Family
Building Type
House
Storeys
1
Square Footage
1292 sqft
Neighbourhood Name
Sifton Park
Title
Freehold
Land Size
589.89 m2
Built in
1975
Parking Type
Detached Garage, Heated Garage, Parking Pad
Time on REALTOR.ca
1 day

Legal Description

Plan :- 4543TR Block :- 17 Lot :- 49

Building

Bathrooms
Total
3
Partial
1
Interior Features
Appliances Included
Dishwasher, Dryer, Garage door opener remote(s), Garage door opener, Hood Fan, Refrigerator, Storage Shed, Stove, Central Vacuum, Washer
Basement Type
Full (Finished)
Building Features
Features
Flat site
Style
Detached
Architecture Style
Bungalow
Structures
Fire Pit
Heating & Cooling
Cooling
Central air conditioning
Fireplace Type
Corner (Wood)
Heating Type
Forced air
Parking
Parking Type
Detached Garage, Heated Garage, Parking Pad

Measurements

Square Footage
1292 sqft

Rooms

Main level
Living room
Dining room
Kitchen
Primary Bedroom
Bedroom 2
Bedroom 3
Basement
Family room
Den
Bedroom 4

Land

Lot Features
Fencing
Fence
Are you interested in touring this listing?
Request a showing

Similar Listings

Raymond Hoetmer