We use cookies and other technologies for functionality, security, and to provide you with a personalized experience on our online services. By continuing to use our online services, you agree to our Privacy Policy and Terms of Use. For information on how to adjust your privacy settings, visit our Cookie Policy.
Dismiss
Home ON Greater Chatham-Kent Chatham-Kent Chatham
54 Moonstone CRESCENT
Directions Print
54 Moonstone CRESCENT $434,900
2 days ago
Next Open House
Feb
8
$434,900
Hide
Favourite

54 Moonstone CRESCENT
Chatham, Ontario N7M0S2

MLS® Number: 26000989
2
Bedrooms
2
Bathrooms
-
Square Feet

Listing Description

This 2021 brick and vinyl ranch sits on a quiet cul-de-sac with a backyard that's actually usable. Bigger than most on the street, and perfect if you want outdoor space without having to maintain a big yard.Two bedrooms. Two full bathrooms, including an ensuite. One-level living that doesn't feel cramped or compromised. The main floor gives you a real entertaining space and room to host without feeling like you're on top of your guests. And when you step outside to the back deck & gazebo, you'll notice a bigger than normal in the neighbourhood fenced-in backyard. An attached single garage means you're not scraping ice off your car in January. The unfinished basement gives you options. Storage for all the things that came from your bigger house! A workshop or a future rec room and a roughed-in bathroom for the future. Built in 2021, so you can move right in without having to do a bunch of repair work. And the remaining Tarion warranty is transferable. You're not inheriting someone else's to-do list. The brick-and-vinyl exterior means less upkeep. No painting every few years. No wood trim rotting. Just the kind of low-maintenance design that lets you actually enjoy your weekends on the golf course instead of spending them on house projects. The cul-de-sac location gives you the quiet without the isolation. And grocery stores, doctors, the city bus, and restaurants are all within easy reach. And here's what matters most. This house was designed for how people actually want to live at this stage. Everything on one floor. No wasted space. No rooms you'll never use. Just the right amount of house in the right kind of neighbourhood. This is the house downsizers say they want but rarely find. One level. Low maintenance. Actual curb appeal. Space that works for how you live now, not how you lived 20 years ago. If you're tired of climbing stairs, heating rooms you don't use, and managing more house than you need, this one's worth seeing. Call listing agent for showing. (55312483)

Location Description

From Park Avenue West, turn south onto Howard Road, turn west onto Manning Drive. The first street on the right is Moonstone Crescent. #54 is on the right side in the first cul-de-sac.

Open Houses

Feb 8
1-3 PM
Add to Calendar

Property Summary

Property Type
Single Family
Building Type
House
Storeys
1
Title
Freehold
Land Size
31.43 X IRREGULAR / 0.13 AC|under 1/4 acre
Built in
2021
Annual Property Taxes
$4,945.52
Parking Type
Attached Garage, Garage, Inside Entry
Time on REALTOR.ca
2 days

Building

Bedrooms
Above Grade
2
Bathrooms
Total
2
Interior Features
Appliances Included
Dishwasher, Dryer, Microwave Range Hood Combo, Refrigerator, Stove, Washer
Flooring
Carpeted, Cushion/Lino/Vinyl
Building Features
Features
Double width or more driveway, Concrete Driveway
Foundation Type
Concrete
Style
Detached
Architecture Style
Bungalow, Ranch
Heating & Cooling
Cooling
Central air conditioning, Fully air conditioned
Heating Type
Forced air, Furnace, (Natural gas)
Exterior Features
Exterior Finish
Aluminum/Vinyl, Brick
Parking
Parking Type
Attached Garage, Garage, Inside Entry

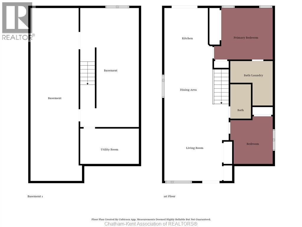
Rooms

MetricImperial
Main level
4pc Bathroom
3pc Ensuite bath
Primary Bedroom
Eating area
Bedroom
Kitchen
Living room
Basement
Utility room
Storage
Storage

Land

Other Property Information
Zoning Description
RL5
Are you interested in touring this listing?
Request a showing

Similar Listings

BRIDGET BLONDE