We use cookies and other technologies for functionality, security, and to provide you with a personalized experience on our online services. By continuing to use our online services, you agree to our Privacy Policy and Terms of Use. For information on how to adjust your privacy settings, visit our Cookie Policy.
Dismiss
Home AB Greater Calgary Calgary Nolan Hill
88 Nolanfield Crescent NW
Directions Print
88 Nolanfield Crescent NW $779,900
1 day ago
$779,900
Hide
Favourite

88 Nolanfield Crescent NW
Calgary, Alberta T3R0L6

MLS® Number: A2279678
3
Bedrooms
3
Bathrooms
2397
Square Feet

Listing Description

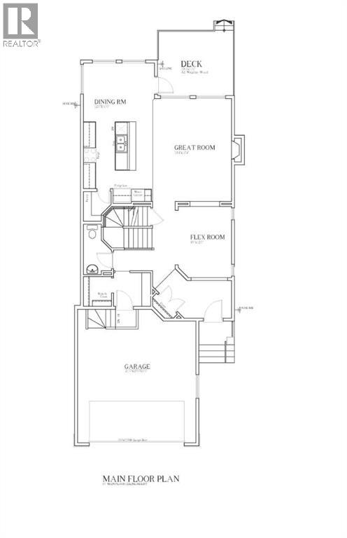
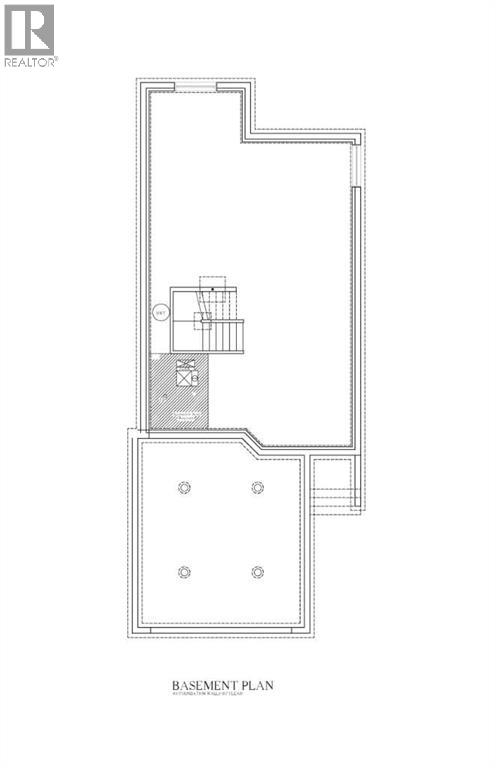
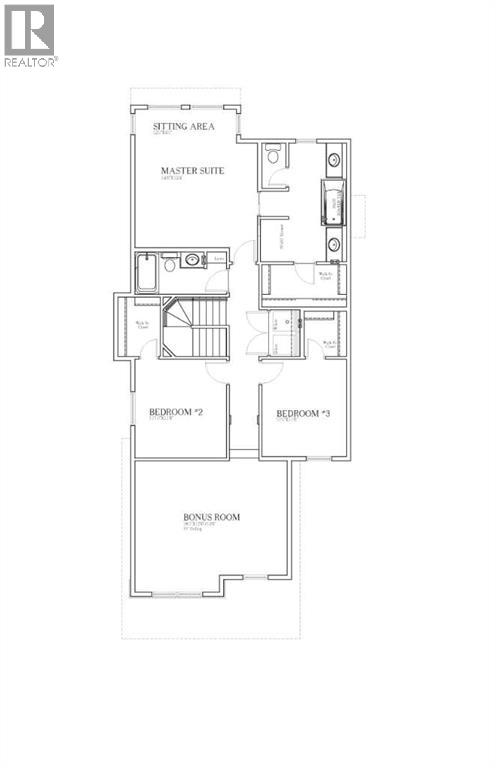
Designed for comfort, style, and energy efficiency, this modern 2-storey smart home built by Morrison in Nolan Hill is loaded with premium upgrades throughout. Offering almost 2,400 sq. ft., the home features 3 bedrooms, 2.5 bathrooms, a main-floor office, and an oversized double garage. A solar panel system provides significant long-term savings (an estimated ~$1,200/year in solar credits) and powers a Level 2 EV charger. Additional highlights include central A/C, a fully fenced, low-maintenance south-facing stone backyard, high-efficiency two-zone furnace, radon mitigation system, recirculating hot water pump, whole-home dechlorination, and a security system. Proudly maintained by the original owner, this home shows 10/10: bright and move-in ready. The open-concept main floor boasts 9-ft ceilings, upgraded hardwood and tile flooring, a versatile den/home office, and a stunning chef’s kitchen with stainless steel appliances (oversized fridge), full-height cabinetry, granite countertops, large island, reverse-osmosis drinking water system, upgraded hood fan, and walk-in pantry. The space flows effortlessly into the spacious living area with a gas fireplace and the dining area, which opens onto a south-facing deck and backyard with gas BBQ hookup—perfect for summer entertaining. A convenient 2-piece powder room completes the main level. Upstairs offers upgraded carpet, upper-level laundry, a spacious primary retreat with walk-in closet and 5-piece ensuite, two additional bedrooms with walk-in closets, a full bath, and an expansive bonus room ideal for family movie nights. The unfinished basement with large windows awaits your personal touch. Further upgrades include Hunter Douglas blinds, Kinetico water softener, new water heater (2024), new roof (2025), and a new updated garage door(2025). Ideally located near parks, pathways, schools, Sage Hill shopping and dining, and major roadways, this home offers exceptional energy-smart living in a prime NW location. Book you r showing today and experience this remarkable home for yourself. (31591149)

Property Summary

Property Type
Single Family
Building Type
House
Storeys
2
Square Footage
2397 sqft
Community Name
Nolan Hill
Subdivision Name
Nolan Hill
Title
Freehold
Land Size
412 m2|4,051 - 7,250 sqft
Built in
2013
Annual Property Taxes
$5,067
Parking Type
Attached Garage (2)
Time on REALTOR.ca
1 day

Building

Bedrooms
Above Grade
3
Bathrooms
Total
3
Partial
1
Interior Features
Appliances Included
Washer, Dishwasher, Stove, Dryer, Microwave, Hood Fan, Window Coverings, Garage door opener
Flooring
Carpeted, Hardwood, Tile
Basement Type
Full (Unfinished)
Building Features
Foundation Type
Poured Concrete
Style
Detached
Construction Material
Wood frame
Building Amenities
Clubhouse
Structures
Deck
Heating & Cooling
Cooling
Central air conditioning
Fireplace
1
Heating Type
Forced air, (Natural gas)
Neighbourhood Features
Amenities Nearby
Park, Playground, Recreation Nearby, Schools, Shopping
Parking
Parking Type
Attached Garage (2)
Total Parking Spaces
4

Measurements

Square Footage
2397 sqft
Total Finished Area
2397 sqft

Rooms

MetricImperial
Main level
Living room
Kitchen
Dining room
2pc Bathroom
Other
Other
Upper Level
Primary Bedroom
5pc Bathroom
Other
Bedroom
Other
Bedroom
Other
4pc Bathroom
Laundry room
Bonus Room

Land

Lot Features
Fencing
Fence
Frontage
12.22 m
Landscape Features
Landscaped
Other Property Information
Zoning Description
R-G
Data provided by: Pillar 9™
Are you interested in touring this listing?
Request a showing

Similar Listings

Sarah Wu Graham