We use cookies and other technologies for functionality, security, and to provide you with a personalized experience on our online services. By continuing to use our online services, you agree to our Privacy Policy and Terms of Use. For information on how to adjust your privacy settings, visit our Cookie Policy.
Dismiss
Home ON Greater Toronto Area Oakville Westmount
401 - 2486 OLD BRONTE ROAD
Directions Print
401 - 2486 OLD BRONTE ROAD $2,075/Monthly
4 days ago
$2,075/Monthly
Hide
Favourite

401 - 2486 OLD BRONTE ROAD
Oakville (WM Westmount), Ontario L6M9Y5

MLS® Number: W12744258
1
Bedrooms
1
Bathrooms
500 - 599
Square Feet

Listing Description

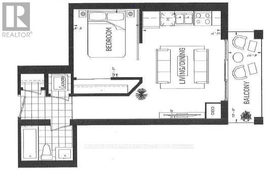
Beautiful open concept 1 bedroom condo located in prestigious Mint complex in Bronte Creek. Freshly installed quartz countertops, vinyl plank flooring and paint. Suite includes 1 underground parking/storage locker and in suite laundry. Amenities include gym, party room and rooftop. No smoking or pets permitted. Close to highways, shopping, hospital and Go Station. AAA credit only and Rental App, credit report and employment confirmation required. Hydro only utility paid by tenant. (42052568)

Location Description

Dundas Street to Old Bronte Road

Property Summary

Property Type
Single Family
Building Type
Apartment
Square Footage
500 - 599 sqft
Community Name
1019 - WM Westmount
Title
Condominium/Strata
Parking Type
Underground, Garage
Time on REALTOR.ca
4 days

Building

Bedrooms
Above Grade
1
Bathrooms
Total
1
Interior Features
Appliances Included
Intercom, Dishwasher, Dryer, Microwave, Stove, Washer, Refrigerator
Basement Type
None
Building Features
Features
Balcony, In suite Laundry
Building Amenities
Storage - Locker
Heating & Cooling
Heating Type
Other
Exterior Features
Exterior Finish
Brick, Stucco
Neighbourhood Features
Community Features
Pets Allowed With Restrictions
Maintenance or Condo Information
Maintenance Management Company
Wilson Blanchard
Parking
Parking Type
Underground, Garage
Total Parking Spaces
1

Measurements

Square Footage
500 - 599 sqft

Rooms

MetricImperial
Main level
Bedroom
Living room
Laundry room
Bathroom
Kitchen
Are you interested in touring this listing?
Request a showing

Similar Listings

CONRAD GUY ZURINI