We use cookies and other technologies for functionality, security, and to provide you with a personalized experience on our online services. By continuing to use our online services, you agree to our Privacy Policy and Terms of Use. For information on how to adjust your privacy settings, visit our Cookie Policy.
Dismiss
Home NB Greater Moncton Riverview
16 Flagstone Court
Directions Print
16 Flagstone Court $599,900
4 days ago
$599,900
Hide
Favourite

16 Flagstone Court
Riverview, New Brunswick E1B0R8

MLS® Number: NB132921
2 + 2
Bedrooms
3
Bathrooms
2558
Square Feet

Listing Description

Welcome to your dream home in the upscale Fairways subdivision of Riverview, where luxury living meets the tranquility of a golf course community. This property is the epitome of modern elegance. Main Level: Boasting 9-foot ceilings and a spacious foyer, the main level immediately welcomes you with an open and airy ambiance. The open-concept kitchen and living room area are perfect for entertaining. The kitchen features a beautiful quartz countertop on the island, making it a focal point for gatherings and culinary delights. The main floor offers a spacious primary bedroom suite complete with an ensuite bathroom and a walk-in closet, providing the perfect retreat at the end of the day. A second well-appointed bedroom, a 4-pc family bathroom and main floor laundry complete this level. The basement boasts a large family room, 2 additional bedrooms and a full bathroom making this home perfect for families of any size! Expected completion date end of March 2026. PAVING AND LANDSCAPING (TOP SOIL AND HYDROSEED IS INCLUDED and is done as a favor and has no warranty). HST rebate to the builder. NB Power rebate to the builder. 8 year LUX home warranty is included. SELLER is a licensed real estate salesperson in the province of NB. (29439158)

Location Description

From Gunningsville Blvd., turn onto Pinewood then left onto Flagstone.

Property Summary

Property Type
Single Family
Storeys
1
Square Footage
2558 sqft
Title
Freehold
Land Size
577 m2
Built in
2025
Annual Property Taxes
$1,549
Parking Type
Attached Garage
Time on REALTOR.ca
4 days

Price and Sale History

Date Status Price
Sep 5, 2025 Sale Closed $74,900
Jul 8, 2022 Sale Closed $59,000

Building

Bedrooms
Above Grade
2
Below Grade
2
Bathrooms
Total
3
Partial
0
Interior Features
Flooring
Ceramic, Hardwood
Basement Type
Full
Building Features
Features
Balcony/Deck/Patio
Foundation Type
Concrete
Architecture Style
Bungalow
Heating & Cooling
Cooling
Heat Pump
Heating Type
Baseboard heaters, Heat Pump, (Electric)
Utilities
Utility Sewer
Municipal sewage system
Water
Municipal water
Exterior Features
Exterior Finish
Stone, Vinyl
Parking
Parking Type
Attached Garage

Measurements

Square Footage
2558 sqft
Above Grade Finished
1395 sqft
Total Finished Area
2558 sqft

Rooms

MetricImperial
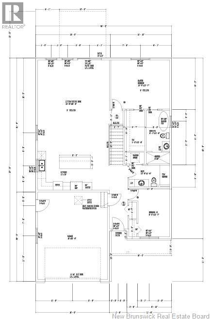
Main level
Other
Bedroom
Kitchen
Dining room
Living room
4pc Bathroom
Primary Bedroom
Foyer
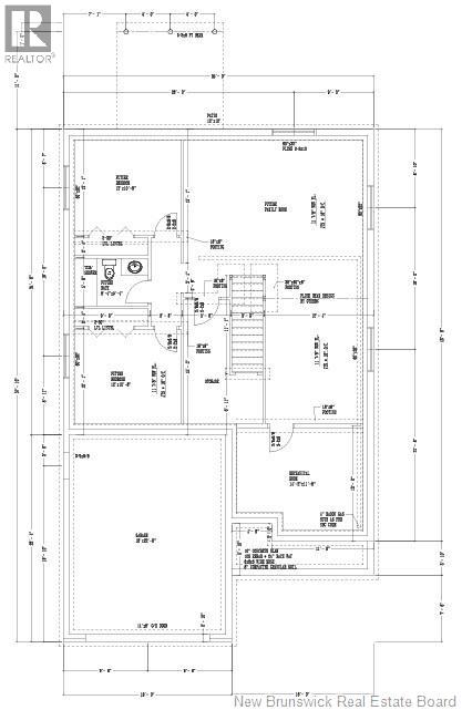
Basement
Bedroom
4pc Bathroom
Bedroom
Storage
Utility room
Family room

Land

Lot Features
Landscape Features
Landscaped
Other Property Information
Access
Year-round access, Public Road
Data provided by: New Brunswick REALTORS®
Are you interested in touring this listing?
Request a showing

Similar Listings

Justin Mattatall