We use cookies and other technologies for functionality, security, and to provide you with a personalized experience on our online services. By continuing to use our online services, you agree to our Privacy Policy and Terms of Use. For information on how to adjust your privacy settings, visit our Cookie Policy.
Dismiss
Home ON Greater London Strathroy-Caradoc
215 SCOTT STREET W
Directions Print
More Photos + 2
215 SCOTT STREET W $589,900
5 days ago
$589,900
Hide
Favourite

215 SCOTT STREET W
Strathroy-Caradoc (SW), Ontario N7G1J9

MLS® Number: X12742606
3
Bedrooms
3
Bathrooms
1500 - 2000
Square Feet

Listing Description

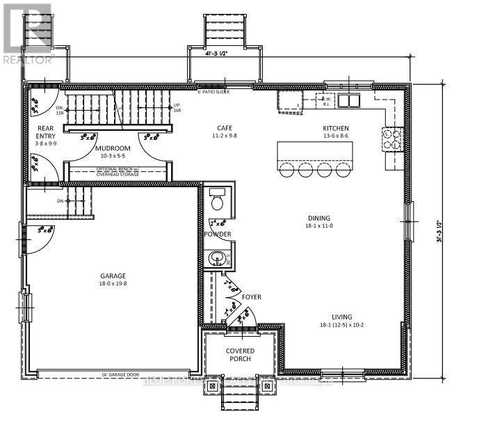
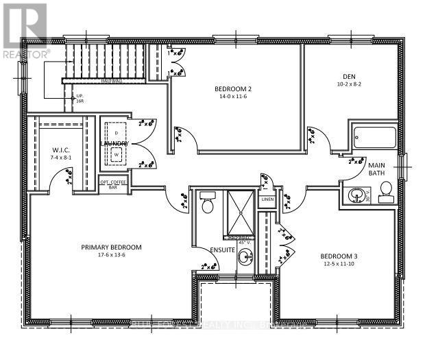
Welcome to this beautifully designed new-build home, thoughtfully crafted for modern living.The open-concept main floor features a spacious kitchen with a large island, flowing seamlessly into the dining and living areas, ideal for everyday living and entertaining. A bright café area with patio sliders offers the perfect spot for morning coffee, casual meals, or a cozy sitting nook, while the mudroom with rear entry, powder room, and direct garage access provides everyday convenience. Upstairs includes three generous bedrooms plus a versatile den, ideal for a home office or playroom. The primary suite retreat features a walk-in closet and private 3-pc ensuite, complemented by second-floor laundry, a 4-pc main bath, and ample storage. Still to be built, this home offers the opportunity to select your own finishes if you act early! (42048830)

Location Description

Cross Streets: Milliner St. ** Directions: Between Mckellar and Milliner St.

Property Summary

Property Type
Single Family
Building Type
House
Storeys
2
Square Footage
1500 - 2000 sqft
Community Name
SW
Title
Freehold
Land Size
47.9 x 75.5 FT
Age Of Building
New building
Annual Property Taxes
$0
Parking Type
Garage
Time on REALTOR.ca
5 days

Building

Bedrooms
Above Grade
3
Bathrooms
Total
3
Partial
1
Interior Features
Appliances Included
Water Heater
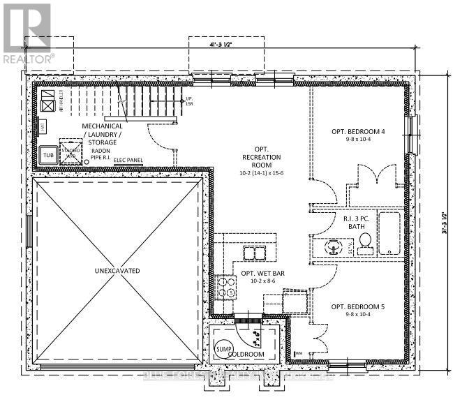
Basement Type
Full (Unfinished)
Building Features
Features
Sump Pump
Foundation Type
Poured Concrete
Style
Detached
Rental Equipment
Water Heater
Heating & Cooling
Cooling
Central air conditioning
Heating Type
Forced air (Natural gas)
Utilities
Utility Sewer
Sanitary sewer
Water
Municipal water
Exterior Features
Exterior Finish
Vinyl siding
Parking
Parking Type
Garage
Total Parking Spaces
6

Measurements

Square Footage
1500 - 2000 sqft

Land

Lot Features
Frontage
47 ft ,10 in
Land Depth
75 ft ,6 in
Other Property Information
Zoning Description
R1
Are you interested in touring this listing?
Request a showing

Similar Listings

KLAUD CZESLAWSKI