We use cookies and other technologies for functionality, security, and to provide you with a personalized experience on our online services. By continuing to use our online services, you agree to our Privacy Policy and Terms of Use. For information on how to adjust your privacy settings, visit our Cookie Policy.
Dismiss
Home SK Greater Saskatoon Saskatoon Rosewood
319 Flynn MANOR
Directions Print
319 Flynn MANOR $1,295,000
5 days ago
$1,295,000
Hide
Favourite

319 Flynn MANOR
Saskatoon, Saskatchewan S7V0Z4

MLS® Number: SK027545
3
Bedrooms
3
Bathrooms
2490
Square Feet

Listing Description

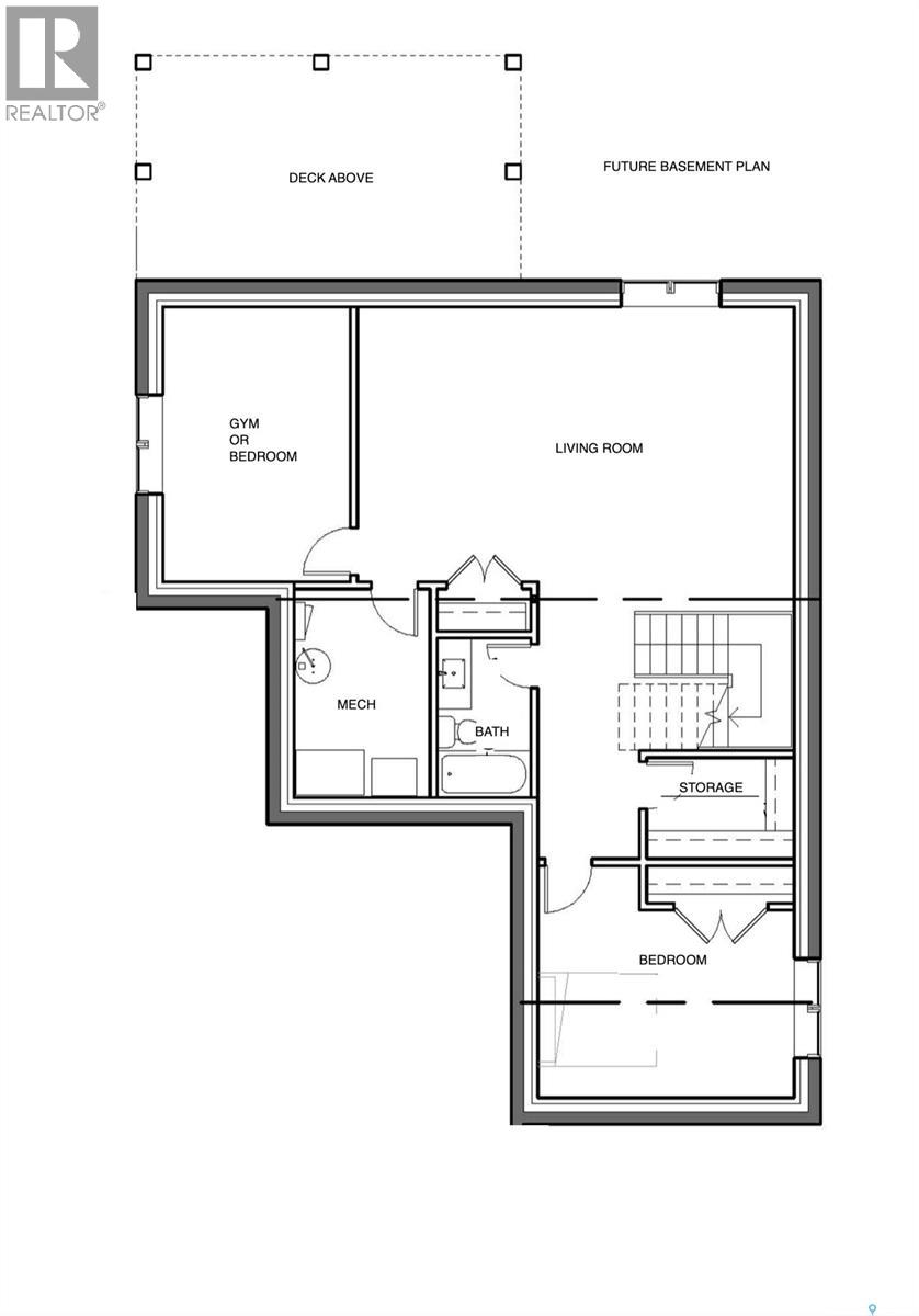
Please note that images are concepts only, as this home is not built yet. Lexis Homes is re-creating their popular Eclipse floor plan on this extra-wide walkout lot in Rosewood. All rooms are generously sized in this 2490 sq ft floor plan. 12-foot-high ceilings in the living room. Designer kitchen with walk through pantry. Wet bar located beside the dining room. Main floor office. Functional mudroom that looks fantastic. Large rear deck that is partially covered. The 2nd floor features a bonus room and 3 bedrooms. The primary bedroom is stunning with its bold colours and accents. The ensuite is amazing with a large shower and free-standing bathtub. Upgraded insulation in the walls for a more comfortable and energy-efficient home. The triple garage also features a bonus space for storage or a workshop area. Don’t miss this incredible opportunity to own a premium home in a highly sought-after location in the park and near schools! Alternate exterior options are available for this home. Lexis Homes offers the flexibility to create an alternate floor plan tailored to your unique design preferences. We also have other walkout lots available. (29328750)

Property Summary

Property Type
Single Family
Building Type
House
Storeys
2
Square Footage
2490 sqft
Neighbourhood Name
Rosewood
Title
Freehold
Land Size
7500 sqft
Built in
2026
Parking Type
Gravel, Heated Garage, Parking Space(s) (6)
Time on REALTOR.ca
5 days

Building

Bathrooms
Total
3
Interior Features
Appliances Included
Washer, Refrigerator, Dishwasher, Dryer, Microwave, Oven - Built-In, Humidifier, Garage door opener remote(s), Hood Fan, Stove
Basement Type
Full (Partially finished)
Building Features
Features
Irregular lot size, Sump Pump
Architecture Style
2 Level
Structures
Deck
Heating & Cooling
Cooling
Central air conditioning, Air exchanger
Fireplace Type
Conventional (Gas)
Heating Type
Forced air
Parking
Parking Type
Gravel, Heated Garage, Parking Space(s) (6)

Measurements

Square Footage
2490 sqft

Rooms

MetricImperial
Main level
Living room
Dining room
Kitchen
2pc Bathroom
Mud room
Office
Second level
Bedroom
Bedroom
Primary Bedroom
Bonus Room
5pc Ensuite bath
4pc Bathroom
Laundry room

Land

Lot Features
Fencing
Partially fenced
Are you interested in touring this listing?
Request a showing

Similar Listings

Timothy Koehn