We use cookies and other technologies for functionality, security, and to provide you with a personalized experience on our online services. By continuing to use our online services, you agree to our Privacy Policy and Terms of Use. For information on how to adjust your privacy settings, visit our Cookie Policy.
Dismiss
Home NB Greater Moncton Dieppe
96 Damien Unit# 4
Directions Print
96 Damien Unit# 4 $309,900
5 days ago
$309,900
Hide
Favourite

96 Damien Unit# 4
Dieppe, New Brunswick E1A0H3

MLS® Number: NB132543
2
Bedrooms
2
Bathrooms
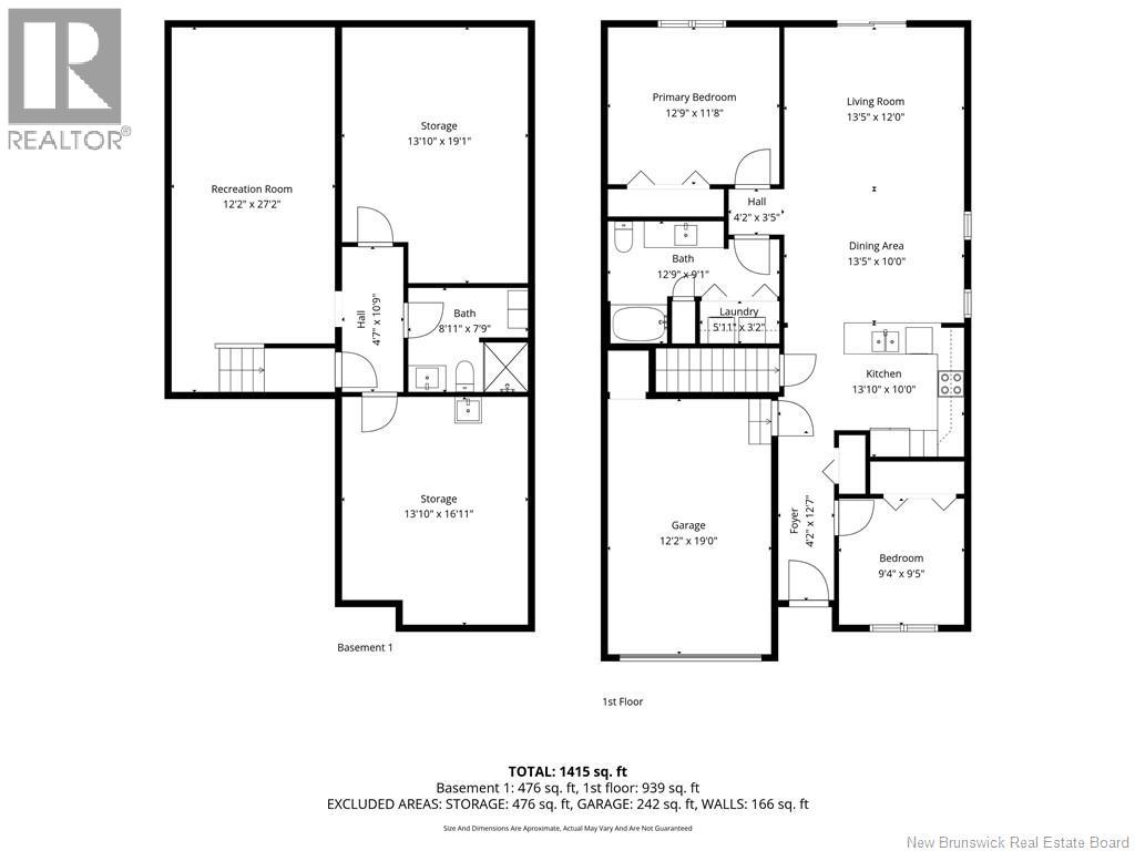
1415
Square Feet

Listing Description

Absolutely beautiful corner-unit condo with attached garage, located in a highly sought-after condo community in Dieppe. This immaculate property offers a private backyard and exceptional living space throughout. Upon arrival, youll be welcomed by a spacious entryway leading to a bright kitchen featuring stunning white cabinetry and ample countertop space. The open-concept dining and living room area provides an inviting layout with patio doors offering access to the private back deck, perfect for relaxing or entertaining. The main level includes two generously sized bedrooms and a full bathroom with laundry, along with the convenience of central vacuum. The professionally finished basement adds valuable living space, featuring a large family room, a full bathroom, and two large storage rooms, ideal for additional storage or organization. Outside, enjoy a paved driveway, attached garage, mature trees providing added privacy, and a well-maintained private backyard. Condo fees are $350/month and include snow removal, lawn care, water, sewer, exterior maintenance, and condo insurance (excluding interior contents). Call today for more information or to schedule your private showing. (29433401)

Location Description

Take a right off Centrale in Dieppe

Property Summary

Property Type
Single Family
Storeys
1
Square Footage
1415 sqft
Title
Condominium
Land Size
0
Annual Property Taxes
$2,948.77
Parking Type
Attached Garage
Time on REALTOR.ca
5 days

Price and Sale History

Date Status Price
Oct 12, 2018 Sale Closed $160,000

Building

Bedrooms
Above Grade
2
Bathrooms
Total
2
Partial
0
Interior Features
Flooring
Laminate, Hardwood
Building Features
Features
Level lot
Foundation Type
Concrete
Architecture Style
Bungalow
Heating & Cooling
Cooling
Heat Pump
Heating Type
Baseboard heaters, Heat Pump, (Electric)
Utilities
Utility Sewer
Municipal sewage system
Water
Municipal water
Exterior Features
Exterior Finish
Vinyl
Parking
Parking Type
Attached Garage

Measurements

Square Footage
1415 sqft
Above Grade Finished
939 sqft
Total Finished Area
1415 sqft

Rooms

MetricImperial
Main level
Primary Bedroom
4pc Bathroom
Laundry room
Living room
Dining room
Kitchen
Bedroom
Foyer
Basement
Storage
Family room
3pc Bathroom
Storage

Land

Lot Features
Landscape Features
Landscaped
Other Property Information
Access
Year-round access, Public Road
Data provided by: New Brunswick REALTORS®
Are you interested in touring this listing?
Request a showing

Similar Listings

Nicole LeBlanc