We use cookies and other technologies for functionality, security, and to provide you with a personalized experience on our online services. By continuing to use our online services, you agree to our Privacy Policy and Terms of Use. For information on how to adjust your privacy settings, visit our Cookie Policy.
Dismiss
Home BC Greater Kelowna Kelowna North Mission - Crawford
440 Eldorado Road
Directions Print
440 Eldorado Road $1,499,000
6 days ago
$1,499,000
Hide
Favourite

440 Eldorado Road
Kelowna, British Columbia V1W1G8

MLS® Number: 10374042
4
Bedrooms
4
Bathrooms
1839
Square Feet

Listing Description

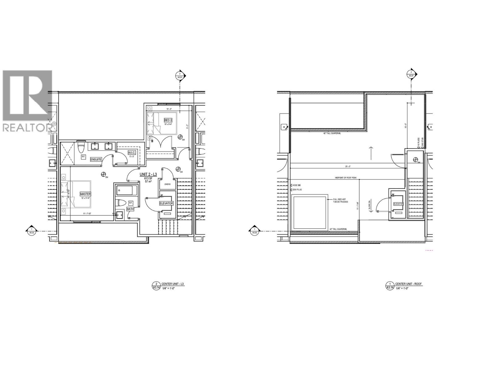
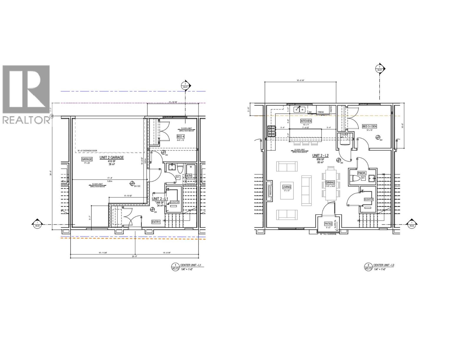
Welcome to this stunning, 4 bedroom modern townhouse, where luxury meets convenience in an unbeatable location just steps from the lake. Spanning multiple levels with elevator access to each floor including the rooftop deck, this beautiful home offers exceptional attention to detail. Open-concept layout featuring high ceilings, hardwood floors, and an abundance of natural light. The gourmet kitchen is a chef’s dream, with stainless steel appliances, custom cabinetry, and a spacious island ideal for both entertaining and everyday living. Enjoy the ultimate in convenience with your own private elevator, offering seamless access to all levels. The master suite is a true retreat, with a spa-inspired ensuite, double sinks and walk-in closet. 3 additional bedrooms and bathrooms provide ample space for family or guests. Step outside and discover a spectacular rooftop patio, perfect for hosting dinner parties, relaxing in the sun, or enjoying breathtaking views of the lake. Entertaining or unwinding, this outdoor space elevates your lifestyle to new heights. Additional features include a private garage, covered barbeque deck off the kitchen and storage throughout. Every aspect of this home has been meticulously designed to offer comfort and elegance. Located in the prominent Lower Mission, steps to the beach, with easy access to dining, shopping, and top notch school catchment, this luxury end unit townhouse offers an opportunity to live in style with unparalleled sophistication. (39672401)

Property Summary

Property Type
Single Family
Building Type
Row / Townhouse
Storeys
3
Square Footage
1839 sqft
Community Name
Walker Eldorado
Neighbourhood Name
Lower Mission
Title
Strata
Land Size
under 1 acre
Built in
2026
Annual Property Taxes
$0
Parking Type
Attached Garage (2)
Time on REALTOR.ca
6 days

Building

Bathrooms
Total
4
Partial
1
Building Features
Style
Attached
Heating & Cooling
Cooling
Central air conditioning
Heating Type
Forced air
Utilities
Utility Sewer
Municipal sewage system
Water
Municipal water
Exterior Features
Roof Style
Asphalt shingle
Neighbourhood Features
Community Features
Family Oriented, Pets Allowed
Amenities Nearby
Public Transit, Schools, Shopping
Parking
Parking Type
Attached Garage (2)
Total Parking Spaces
2

Measurements

Square Footage
1839 sqft

Rooms

MetricImperial
Main level
4pc Bathroom
Bedroom
Second level
Partial bathroom
Bedroom
Dining room
Living room
Kitchen
Third level
4pc Ensuite bath
4pc Bathroom
Bedroom
Primary Bedroom
Are you interested in touring this listing?
Request a showing

Similar Listings

Paul Neufeld