We use cookies and other technologies for functionality, security, and to provide you with a personalized experience on our online services. By continuing to use our online services, you agree to our Privacy Policy and Terms of Use. For information on how to adjust your privacy settings, visit our Cookie Policy.
Dismiss
Home ON Greater Toronto Area Toronto North York St. Andrew
11 MONTRESSOR DRIVE
Directions Print
11 MONTRESSOR DRIVE $7,300,000
7 days ago
$7,300,000
Hide
Favourite

11 MONTRESSOR DRIVE
Toronto (St. Andrew-Windfields), Ontario M2P1Y9

MLS® Number: C12733814
6 + 1
Bedrooms
10
Bathrooms
5000 - 100000
Square Feet

Listing Description

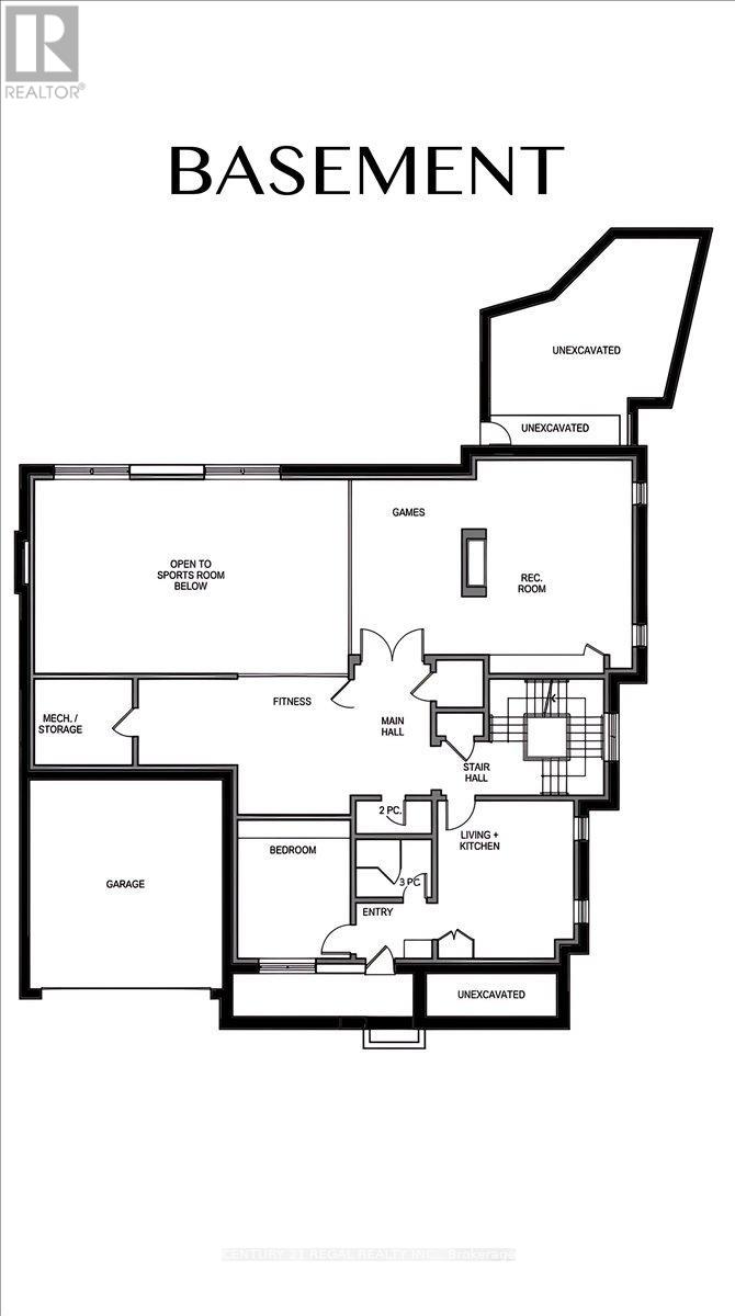
An exceptional opportunity to purchase a brand new, custom-built luxury home in the prestigious St. Andrew-Windfields neighbourhood, situated on a rare ravine-backed lot of approximately 12,800 sq. ft. This offering allows a buyer to acquire the property as a fully designed and approved new build, with all architectural plans, engineering, and approvals already completed and a reputable builder prepared to deliver the home. The approved design features over 7,600 sq. ft. of living space, thoughtfully planned to maximize scale, natural light, and the ravine setting. All major pre-construction work has been completed, including architectural design by Contempo Studio, HVAC and grading design, and building permit submission-providing a streamlined path from purchase to construction. Buyers benefit from significantly reduced timelines and risk compared to starting a custom build from scratch. The home design includes grand principal rooms, high ceilings, elevator provision, expansive outdoor terraces, and a backyard concept ideal for entertaining and enjoying the natural surroundings. Finishes may be customized within the builder's specifications, offering a balance of personalization and certainty. A rare chance to secure a brand new luxury residence without the typical delays associated with design, approvals, and permitting. Full drawings, specifications, and build details available upon request. (42029092)

Location Description

Cross Streets: Bayview / York Mills. ** Directions: West of Bayview.

Property Summary

Property Type
Single Family
Building Type
House
Storeys
3
Square Footage
5000 - 100000 sqft
Community Name
St. Andrew-Windfields
Title
Freehold
Land Size
65.3 x 153 FT
Annual Property Taxes
$14,252
Parking Type
Garage
Time on REALTOR.ca
7 days

Building

Bedrooms
Above Grade
6
Below Grade
1
Bathrooms
Total
10
Partial
1
Interior Features
Basement Features
Walk-up
Basement Type
Other, See Remarks
Building Features
Style
Detached
Heating & Cooling
Cooling
Central air conditioning
Heating Type
Forced air (Natural gas)
Utilities
Utility Sewer
Sanitary sewer
Water
Municipal water
Exterior Features
Exterior Finish
Brick
Parking
Parking Type
Garage
Total Parking Spaces
8

Measurements

Square Footage
5000 - 100000 sqft

Land

Lot Features
Frontage
65 ft ,3 in
Land Depth
153 ft
Are you interested in touring this listing?
Request a showing

Similar Listings

JUSTIN STRACHAN