We use cookies and other technologies for functionality, security, and to provide you with a personalized experience on our online services. By continuing to use our online services, you agree to our Privacy Policy and Terms of Use. For information on how to adjust your privacy settings, visit our Cookie Policy.
Dismiss
Home ON Greater Toronto Area Brampton Creditview
53 FINEGAN CIRCLE
Directions Print
53 FINEGAN CIRCLE $779,900
$779,900
Hide
Favourite

53 FINEGAN CIRCLE
Brampton (Northwest Brampton), Ontario L7A4Z8

MLS® Number: W12730766
3
Bedrooms
3
Bathrooms
1500 - 2000
Square Feet

Listing Description

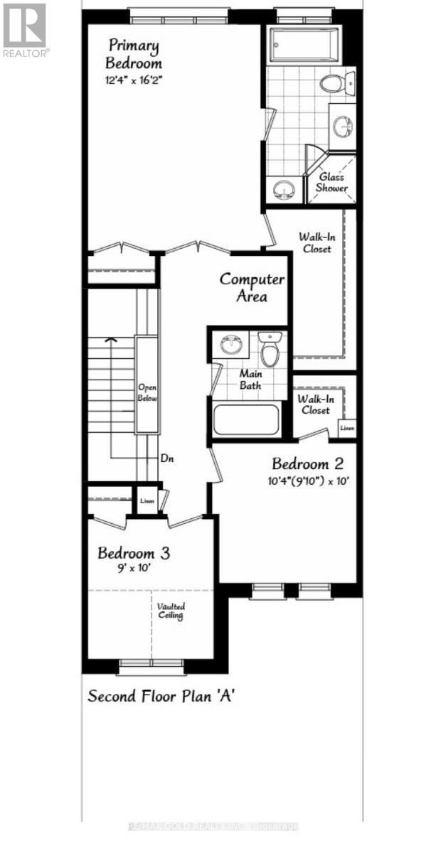
Welcome to this Upgraded House which Features Upgraded Hardwood Flooring Throughout & Oak Staircase, Kitchen With SS Appliances, Back Splash , Quartz Countertops ,Extended Kitchen Cabinets, fresh painted, Lovely Master Bedroom With Gorgeous Ensuite And Walk In Closet,2ndGood Size Bedroom With W/I Closet, Upper Floor Den, Good Size Driveway With No Walkway In Front Of House, fenced Private Backyard, access from garage. (42022203)

Location Description

Wanless Dr/Mississauga Rd

Property Summary

Property Type
Single Family
Building Type
Row / Townhouse
Storeys
2
Square Footage
1500 - 2000 sqft
Community Name
Northwest Brampton
Title
Freehold
Land Size
20 x 90.2 FT
Annual Property Taxes
$5,390.89
Parking Type
Garage
Time on REALTOR.ca
8 days

Building

Bedrooms
Above Grade
3
Bathrooms
Total
3
Partial
1
Interior Features
Appliances Included
Window Coverings
Flooring
Hardwood
Basement Type
Full (Unfinished)
Building Features
Features
Carpet Free
Foundation Type
Poured Concrete
Style
Attached
Rental Equipment
Water Heater
Heating & Cooling
Cooling
Central air conditioning
Heating Type
Forced air (Natural gas)
Utilities
Utility Sewer
Sanitary sewer
Water
Municipal water
Exterior Features
Exterior Finish
Brick, Stone
Neighbourhood Features
Amenities Nearby
Park, Public Transit
Parking
Parking Type
Garage
Total Parking Spaces
3

Measurements

Square Footage
1500 - 2000 sqft

Rooms

MetricImperial
Main level
Great room
Dining room
Kitchen
Second level
Bedroom
Bedroom 2
Bedroom 3
Loft

Land

Lot Features
Frontage
20 ft
Land Depth
90 ft ,2 in
View
View
Are you interested in touring this listing?
Request a showing

Similar Listings

KAPIL HITKARI