We use cookies and other technologies for functionality, security, and to provide you with a personalized experience on our online services. By continuing to use our online services, you agree to our Privacy Policy and Terms of Use. For information on how to adjust your privacy settings, visit our Cookie Policy.
Dismiss
Home ON Greater Toronto Area Toronto York Weston
1794A WESTON ROAD
Directions Print
1794A WESTON ROAD $2,700/Monthly
$2,700/Monthly
Hide
Favourite

1794A WESTON ROAD
Toronto (Weston), Ontario M9N1V8

MLS® Number: W12724394
3
Bedrooms
1
Bathrooms
700 - 1100
Square Feet

Listing Description

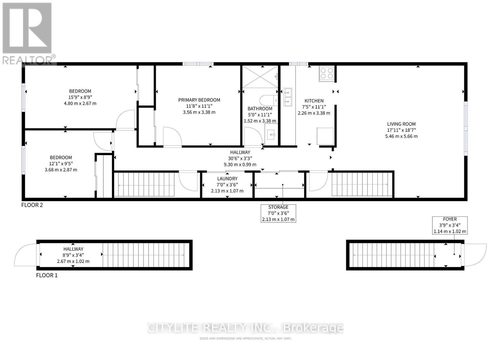
Fully Renovated 3 Bedroom Sun Filled Apartment with Private Entrance. It features laminate floors throughout the main floor, an open-concept living and dining room, a modern kitchen, and a granite countertop. Spacious Primary Bedroom. Modern 3 Pcs Ensuite bathroom. Convenient location Steps to Weston GO Station, TTC, 401, 400 & 427. Easy Access to Airport. Close to Shops, Schools, Parks, and Bike Trails. 2 Parking Spot. (42008253)

Location Description

Cross Streets: Lawrence Ave W & Weston Rd. ** Directions: Above Variety store.

Property Summary

Property Type
Single Family
Building Type
Other
Square Footage
700 - 1100 sqft
Community Name
Weston
Parking Type
No Garage
Time on REALTOR.ca
11 days

Building

Bedrooms
Above Grade
3
Bathrooms
Total
1
Interior Features
Appliances Included
Microwave, Range, Stove, Refrigerator
Flooring
Laminate, Porcelain Tile, Ceramic
Basement Type
None
Building Features
Foundation Type
Concrete
Heating & Cooling
Cooling
None
Heating Type
Forced air (Electric)
Utilities
Utility Sewer
Sanitary sewer
Water
Municipal water
Exterior Features
Exterior Finish
Concrete, Brick
Parking
Parking Type
No Garage
Total Parking Spaces
2

Measurements

Square Footage
700 - 1100 sqft

Rooms

MetricImperial
Main level
Living room
Dining room
Kitchen
Primary Bedroom
Bedroom 2
Bedroom 3
Bathroom
Are you interested in touring this listing?
Request a showing

Similar Listings

MIKE TABATABAEI