We use cookies and other technologies for functionality, security, and to provide you with a personalized experience on our online services. By continuing to use our online services, you agree to our Privacy Policy and Terms of Use. For information on how to adjust your privacy settings, visit our Cookie Policy.
Dismiss
Home ON Greater Toronto Area Peel Region Brampton Madoc
(MAIN-UPPER) - 129 GREENE DRIVE
Directions Print
(MAIN-UPPER) - 129 GREENE DRIVE $2,500/Monthly
Price Change on 02/03/2026
$2,500/Monthly
-$499/Monthly
$2,999/Monthly
Hide
Favourite

(MAIN-UPPER) - 129 GREENE DRIVE
Brampton (Madoc), Ontario L6V2P2

MLS® Number: W12723284
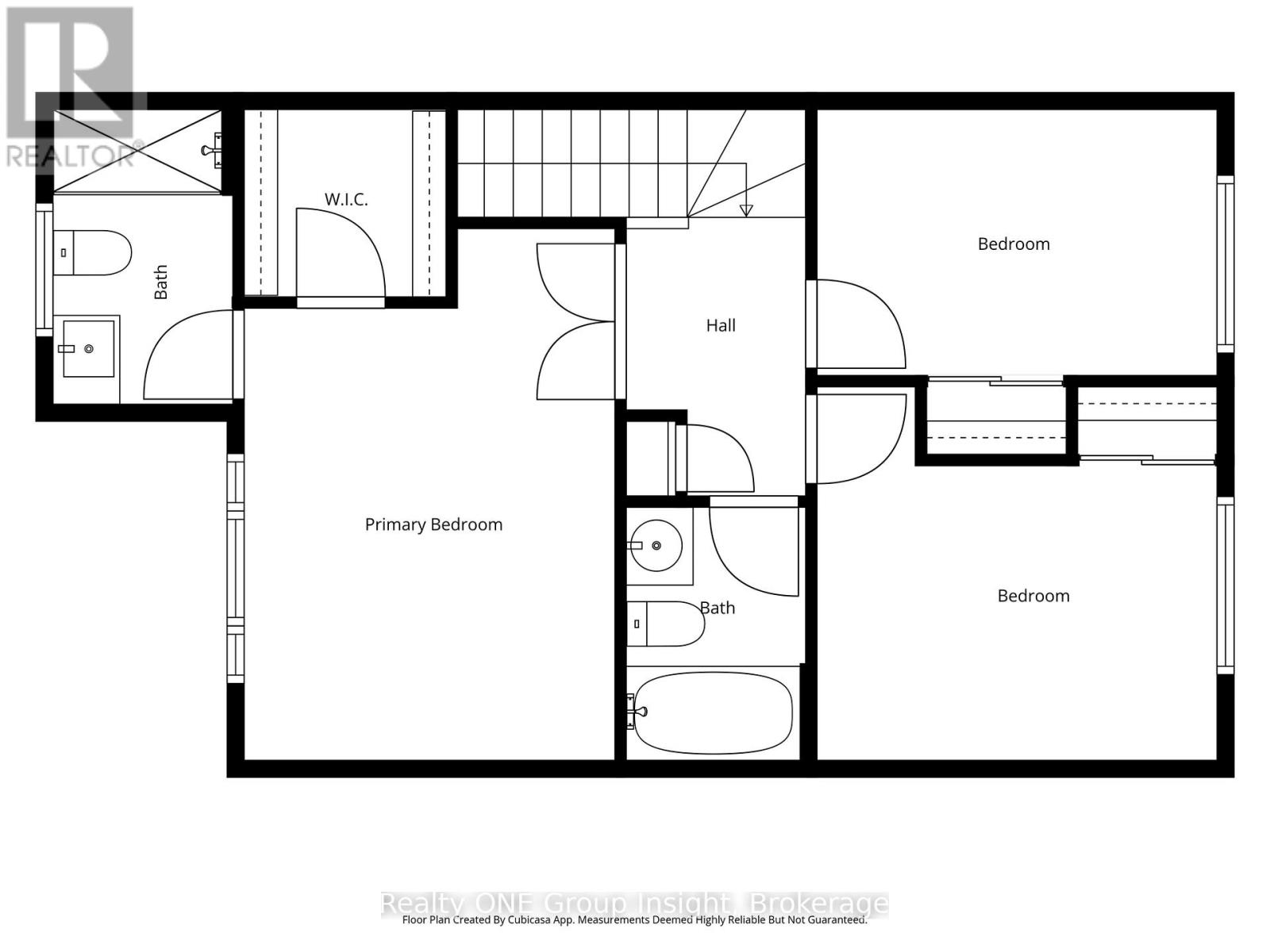
3
Bedrooms
3
Bathrooms
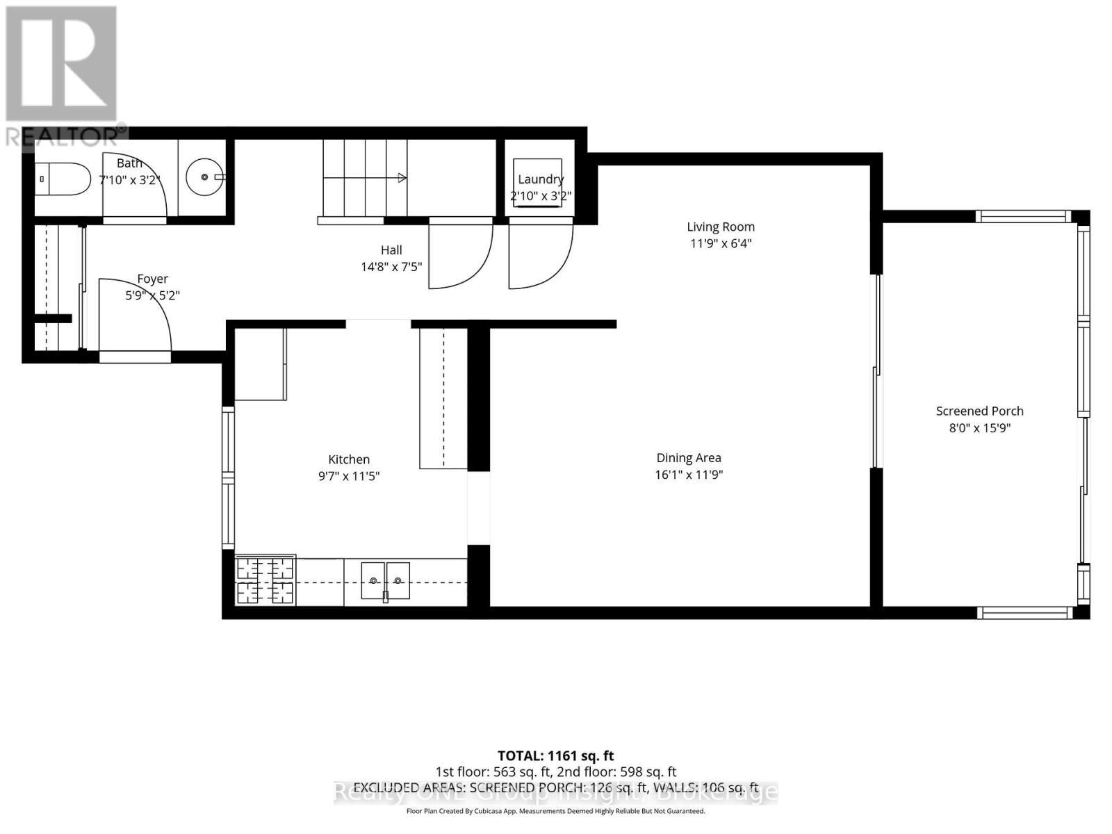
1100 - 1500
Square Feet

Listing Description

Bright, Spacious & Newly Renovated Townhome - 3 Lg Bdrms & 3 Bath (Brand New 3pc Ensuite in Primary Bdrm) & Sunroom located on the main floor which can be used as a relaxing Den, Office, or Additional Living Space. Prime Location: Situated Minutes to Major Highways, Public Transportation, Grocery, Restaurants, Amenities, Schools and More. Personal In-Suite Laundry. Upper Tenants' have sole use of the Private Backyard. This home has everything you want! Some images have been virtually staged and are for illustrative and/or visualization purposes only. Thank you for your interest! (42005955)

Location Description

Cross Streets: Williams Pkwy/Kennedy Rd N. ** Directions: North on Hurontario or 410 to Queen St, North Hansen Rd N, Left on Greene Dr.

Property Summary

Property Type
Single Family
Building Type
Row / Townhouse
Storeys
2
Square Footage
1100 - 1500 sqft
Community Name
Madoc
Title
Freehold
Land Size
20 x 150 FT
Parking Type
Garage, Tandem
Time on REALTOR.ca
11 days

Building

Bedrooms
Above Grade
3
Bathrooms
Total
3
Partial
1
Interior Features
Appliances Included
Water Heater - Tankless, Dishwasher, Dryer, Hood Fan, Stove, Washer, Refrigerator
Basement Features
Separate entrance, Walk-up, Apartment in basement
Building Features
Features
Carpet Free, In suite Laundry
Foundation Type
Block
Style
Attached
Construction Status
Insulation upgraded
Heating & Cooling
Cooling
Central air conditioning
Heating Type
Forced air (Natural gas)
Utilities
Utility Type
Cable (Available), Electricity (Available), Sewer (Installed)
Utility Sewer
Sanitary sewer
Water
Municipal water
Exterior Features
Exterior Finish
Brick, Aluminum siding
Parking
Parking Type
Garage, Tandem
Total Parking Spaces
3

Measurements

Square Footage
1100 - 1500 sqft

Land

Lot Features
Frontage
20 ft
Land Depth
150 ft
Are you interested in touring this listing?
Request a showing

Similar Listings

MELISSA OAG