We use cookies and other technologies for functionality, security, and to provide you with a personalized experience on our online services. By continuing to use our online services, you agree to our Privacy Policy and Terms of Use. For information on how to adjust your privacy settings, visit our Cookie Policy.
Dismiss
Home NS Kings County Berwick
20 Gala Drive
Directions Print
20 Gala Drive $479,000
$479,000
Hide
Favourite

20 Gala Drive
Berwick, Nova Scotia B0P1E0

MLS® Number: 202601268
3
Bedrooms
2
Bathrooms
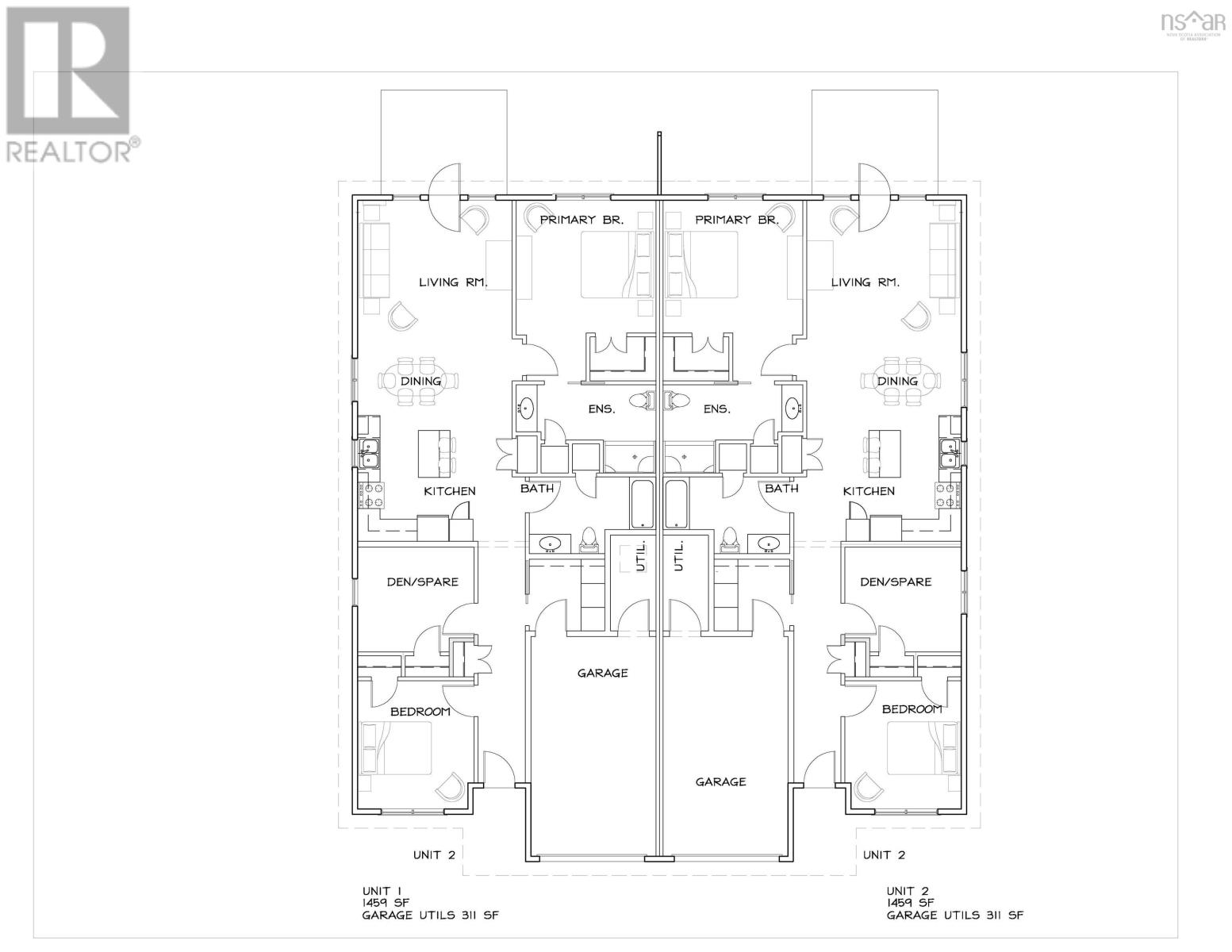
1459
Square Feet

Listing Description

Welcome to this modern 3-bedroom, 2-bath side-by-side semi-detached home in the heart of vibrant Berwick. Designed for efficient, low-maintenance living, this newly constructed one-level home offers a functional layout and contemporary finishes throughout. The open-concept kitchen, living, and dining area is ideal for both everyday living and entertaining. The interior will feature upgraded kitchens and bathrooms, complemented by high-end, energy-efficient Samsung appliances, whisper-quiet bathroom fans, and a large, high-quality heat pump for year-round comfort. The home has been constructed using the ZIP System building envelope, enhancing air sealing, moisture control, and overall energy efficiency. The exterior will be further enhanced with decorative stone accents, adding curb appeal and architectural interest. Additional bedrooms and a full bath provide flexible space for family, guests, or a home office. Step outside to enjoy the deck, with a privacy fence for added comfort. All of this is within walking distance of Berwicks shops, restaurants, community amenities, and popular recreation centre. Estimated completion: April. (231877234)

Location Description

Main St to Beckwith Dr, left on Gala

Property Summary

Property Type
Single Family
Building Type
House
Storeys
1
Square Footage
1459 sqft
Community Name
Berwick
Title
Freehold
Land Size
0.2303 ac
Parking Type
Garage, Attached Garage, Paved Yard
Time on REALTOR.ca
14 days

Building

Bedrooms
Above Grade
3
Bathrooms
Total
2
Partial
0
Interior Features
Appliances Included
Stove, Dishwasher, Microwave Range Hood Combo, Refrigerator
Flooring
Laminate
Basement Type
None
Building Features
Foundation Type
Concrete Slab
Style
Semi-detached
Heating & Cooling
Cooling
Heat Pump
Utilities
Utility Sewer
Municipal sewage system
Water
Drilled Well
Exterior Features
Exterior Finish
Stone, Vinyl
Neighbourhood Features
Community Features
Recreational Facilities, School Bus
Amenities Nearby
Golf Course, Park, Playground, Public Transit, Shopping, Place of Worship
Parking
Parking Type
Garage, Attached Garage, Paved Yard
Accessibility Features
Entry and Access
32in min Entry Doorways, Entry less than 3 steps
Interior Navigation
32in min Doorways

Measurements

Square Footage
1459 sqft
Source: Other
Total Finished Area
1459 sqft

Rooms

MetricImperial
Main level
Bedroom
Bedroom
Laundry room
Kitchen
Dining room
Living room
Primary Bedroom
Ensuite (# pieces 2-6)
Bath (# pieces 1-6)

Land

Lot Features
Landscape Features
Landscaped
Are you interested in touring this listing?
Request a showing

Similar Listings

Margaret MacKay