We use cookies and other technologies for functionality, security, and to provide you with a personalized experience on our online services. By continuing to use our online services, you agree to our Privacy Policy and Terms of Use. For information on how to adjust your privacy settings, visit our Cookie Policy.
Dismiss
Home ON Greater Toronto Area Durham Region Pickering Bay Ridges
2108 - 1455 CELEBRATION DRIVE
Directions Print
2108 - 1455 CELEBRATION DRIVE $2,700/Monthly
$2,700/Monthly
Hide
Favourite

2108 - 1455 CELEBRATION DRIVE
Pickering (Bay Ridges), Ontario L1W0C3

MLS® Number: E12716648
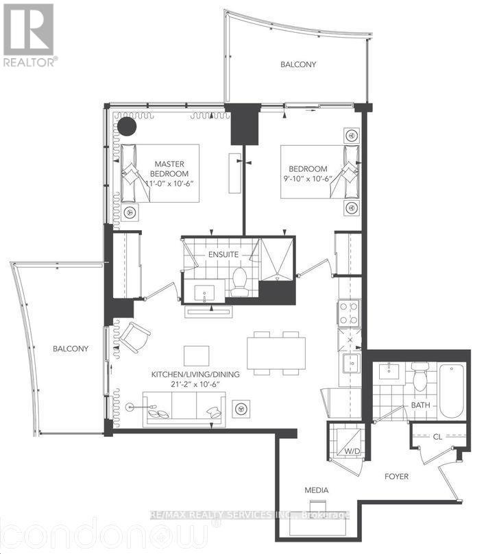
2 + 1
Bedrooms
2
Bathrooms
800 - 899
Square Feet

Listing Description

Discover unparalleled luxury in this brand-new, 2-bedroom Plus Den suite at Universal City 2 Towers, Centrally Located In Pickering. Embrace The Warmth Of Natural Light In This Bright West-Facing Corner Unit, With Two Balconies overlooking the Pool and Patio, Creating A Welcoming Ambiance. Explore Nearby Parks For An Outdoor Escape Or Indulge In Shopping At Stores Just Minutes Away. Immerse Yourself In A World Of Opulence With 24-Hour Concierge Services, An Exquisite Lounge, An Inviting Outdoor Pool, A Billiard Room, A World-Class Gym, Guest Suites For Entertaining, And A Games Room. Convenience Is Key, With Proximity To Pickering Town Centre, The GO Station, Highway 401, Restaurants, AndGrocery Stores. Experience The Epitome Of Luxury Living In This Pristine Residence(Photos are from last year)| 1 Parking & 1 Locke (41991050)

Location Description

Liverpool & Bayly

Property Summary

Property Type
Single Family
Building Type
Apartment
Square Footage
800 - 899 sqft
Community Name
Bay Ridges
Title
Condominium/Strata
Age Of Building
0 to 5 years
Parking Type
Underground, No Garage
Time on REALTOR.ca
13 days

Building

Bedrooms
Above Grade
2
Below Grade
1
Bathrooms
Total
2
Interior Features
Appliances Included
Dishwasher, Dryer, Microwave, Stove, Washer, Window Coverings, Refrigerator
Flooring
Laminate
Basement Type
None
Building Features
Features
Elevator, Balcony
Building Amenities
Security/Concierge, Exercise Centre, Recreation Centre, Storage - Locker
Heating & Cooling
Cooling
Central air conditioning
Heating Type
Forced air (Natural gas)
Utilities
Utility Communications
High Speed Internet
Exterior Features
Exterior Finish
Brick
Pool Type
Outdoor pool
Neighbourhood Features
Community Features
Pets Allowed With Restrictions
Amenities Nearby
Public Transit
Maintenance or Condo Information
Maintenance Management Company
Percel Property Management
Parking
Parking Type
Underground, No Garage
Total Parking Spaces
1

Measurements

Square Footage
800 - 899 sqft

Rooms

MetricImperial
Flat
Living room
Kitchen
Primary Bedroom
Bedroom 2

Land

Other Property Information
Easements
None
Are you interested in touring this listing?
Request a showing

Similar Listings

ASHISH GROVER