We use cookies and other technologies for functionality, security, and to provide you with a personalized experience on our online services. By continuing to use our online services, you agree to our Privacy Policy and Terms of Use. For information on how to adjust your privacy settings, visit our Cookie Policy.
Dismiss
Home ON Ottawa - Gatineau United Counties of Prescott and Russell Clarence-Rockland
2517 GRAY CRESCENT
Directions Print
2517 GRAY CRESCENT $536,990
Next Open House
Feb
8
$536,990
Hide
Favourite

2517 GRAY CRESCENT
Clarence-Rockland, Ontario K4K0H3

MLS® Number: X12715310
3
Bedrooms
2
Bathrooms
1500 - 2000
Square Feet

Listing Description

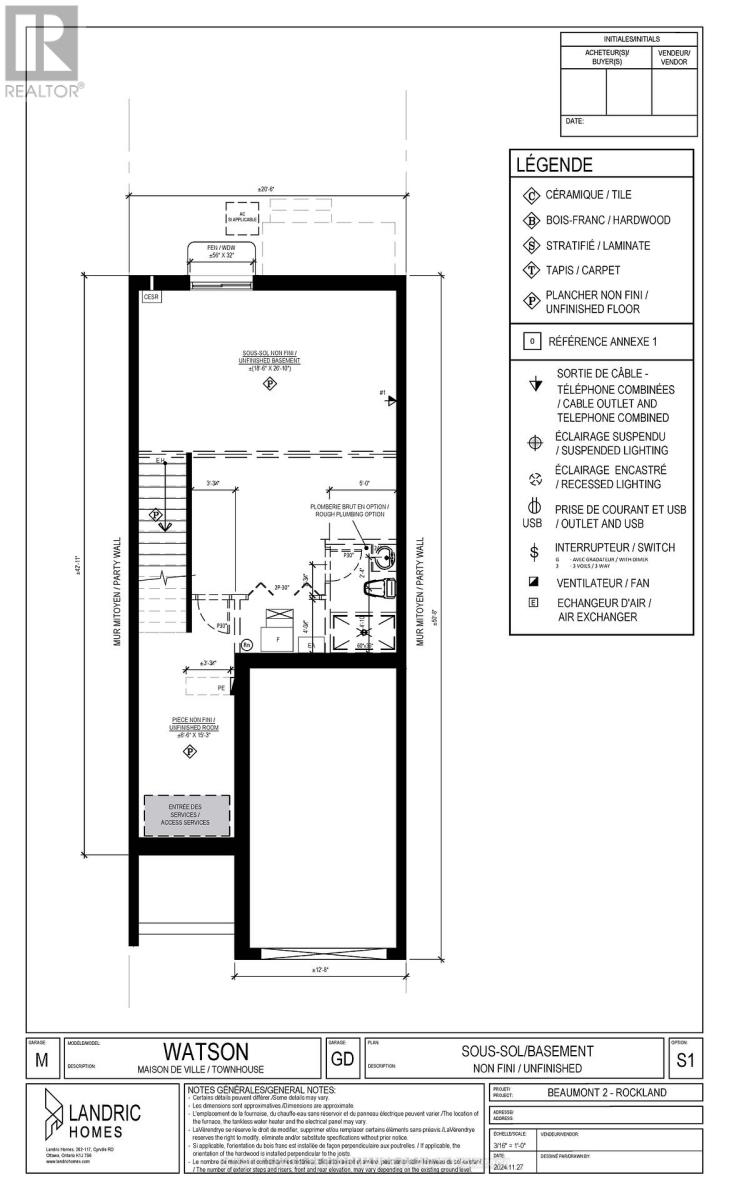
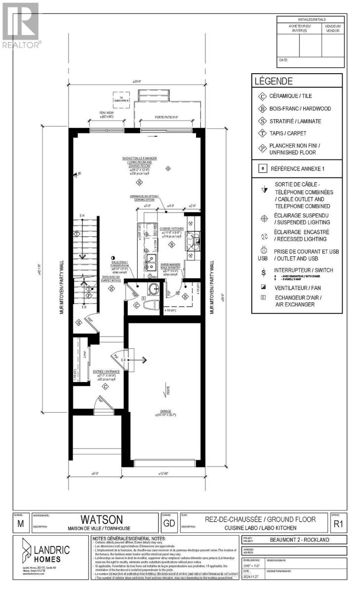
**OPEN HOUSE SUNDAY FROM 2 - 4 PM @ 235 BOURDEAU BD, LIMOGES**Welcome to Beaumont, Morris Village - Townhouses! Discover a higher standard of living with these to-be-built luxury townhomes by Landric Homes (aka: the multi-award-winning 'Construction LaVérendrye' in QC). Renowned for high-quality builds, thoughtful designs, and attention to detail - Landric Homes delivers homes that truly stand apart. This middle-unit townhome offer an immense 1,690 sq. ft. above ground, tall 9' ceilings, oversized 8' patio doors, concrete block party wall (superior sound proofing), and abundant natural light throughout. The main floor features an open-concept layout with a spacious living / dining area, and a chef-inspired kitchen, complete with walk-in pantry and designer-selected high-end finishes. The 2nd level hosts 3 generous bedrooms, 1 full bathroom (added ensuite optional), and a convenient laundry room. The primary bedroom impresses with an oversized walk-in closet, and cheater access to the luxurious 4-piece bathroom (featuring a standalone bathtub, and glass shower). The unfinished basement awaits your personal touch (fully finished basement optional). Possession dates as early as summer 2026 (all depending on date of signature of the APS, and fulfillment of conditions). Model home tours available in Limoges. Price, specs & details may be subject to change without notice. 3D renderings & photos are of previously built townhouses (exact specs, layout & finishes may differ). Various lots available (ample middle-units & end-units to choose from). (41988046)

Location Description

Cross Streets: Docteur Corbeil Blvd. & St Jean St. ** Directions: From Laurier Street, turn onto St-Jean, left onto Docteur Corbeil Blvd, left onto Marble Cres, and left onto Gray Cres.

Open Houses

Feb 8
2-4 PM
Add to Calendar

Property Summary

Property Type
Single Family
Building Type
Row / Townhouse
Storeys
2
Square Footage
1500 - 2000 sqft
Community Name
606 - Town of Rockland
Title
Freehold
Annual Property Taxes
$0
Parking Type
Attached Garage, Garage
Time on REALTOR.ca
14 days

Building

Bedrooms
Above Grade
3
Bathrooms
Total
2
Partial
1
Interior Features
Appliances Included
Water Heater - Tankless, Hood Fan
Basement Type
Full (Unfinished)
Building Features
Foundation Type
Poured Concrete
Style
Attached
Rental Equipment
Water Heater, Water Heater - Tankless
Structures
Deck
Heating & Cooling
Cooling
None, Air exchanger
Heating Type
Forced air (Natural gas)
Utilities
Utility Sewer
Sanitary sewer
Water
Municipal water
Exterior Features
Exterior Finish
Brick, Vinyl siding
Parking
Parking Type
Attached Garage, Garage
Total Parking Spaces
2

Measurements

Square Footage
1500 - 2000 sqft
Data provided by: Ottawa Real Estate Board
Are you interested in touring this listing?
Request a showing

Similar Listings

Eric Fournier