We use cookies and other technologies for functionality, security, and to provide you with a personalized experience on our online services. By continuing to use our online services, you agree to our Privacy Policy and Terms of Use. For information on how to adjust your privacy settings, visit our Cookie Policy.
Dismiss
Home BC Metro Vancouver Greater Vancouver Surrey South Surrey King George Corridor
307 3585 146A STREET
Directions Print
307 3585 146A STREET $3,150/Monthly
$3,150/Monthly
Hide
Favourite

307 3585 146A STREET
Surrey, British Columbia V4P0G9

MLS® Number: R3081555
2
Bedrooms
2
Bathrooms
1305
Square Feet

Listing Description

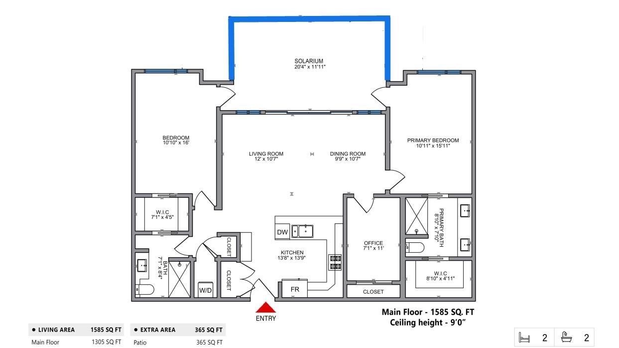
Spacious open concept two bed, two bath condo at Forest Ridge! This unit provides high-quality kitchen cabinets, counter tops and laminate flooring throughout. With bedrooms located on opposite sides of the unit, and each having it's own full bathroom, this condo provides the occupants with privacy and comfort. The Primary bedroom has great mountain views, as well as an en-suite with heated bathroom floors and walk-in closet. The large den (11x7 feet) has a full closet, allowing for multiple uses. Open the patio doors to connect the 280 sqft Solarium and living room to create an amazing space to entertain friends and family! TWO side by side parking, connecting with TWO personal large storage rooms with electrical outlets. Natural gas hookup on the patio for BBQ, and A/C throughout the h (32353917)

Property Summary

Property Type
Single Family
Building Type
Apartment
Square Footage
1305 sqft
Time on REALTOR.ca
14 days

Price and Sale History

Date Status Price
Oct 31, 2025 Sale Closed $796,000

Building

Bathrooms
Total
2
Interior Features
Appliances Included
Dishwasher, Microwave, Refrigerator, Storage Shed, Stove
Building Features
Style
Attached
Heating & Cooling
Cooling
Air Conditioned
Fireplace
1

Measurements

Square Footage
1305 sqft

Land

Lot Features
View
Mountain view
Are you interested in touring this listing?
Request a showing

604-786-7157

Similar Listings

Geoff Cutler