We use cookies and other technologies for functionality, security, and to provide you with a personalized experience on our online services. By continuing to use our online services, you agree to our Privacy Policy and Terms of Use. For information on how to adjust your privacy settings, visit our Cookie Policy.
Dismiss
Home ON Greater Windsor Essex County Windsor Fontainbleu
2572 TOURANGEAU ROAD
Directions Print
2572 TOURANGEAU ROAD $424,900
$424,900
Hide
Favourite

2572 TOURANGEAU ROAD
Windsor, Ontario N8W4N9

MLS® Number: 26001502
3
Bedrooms
1
Bathrooms
-
Square Feet

Listing Description

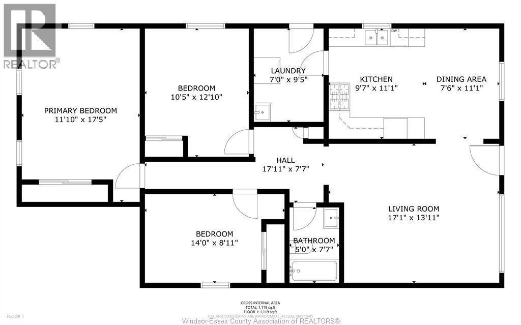
Charming and move-in ready! This 3 bdrm bungalow is nestled in a great neighbourhood of Fountain Blue, right in between EC Row and Tecumseh Rd, making commuting super convenient. Thoughtfully updated with modern, on-trend finishes, the home blends style and comfort with easy one-level living. Walk into bright liv rm, updated kit w/ample cabinets and stainless steel apps, 3 big bdrms, updated 4pc bath, hrdwds and great architecture, convenient laundry room/drop zone. Perfect for first time buyers through to retirees. Fully fenced yard w/patio. A fantastic opportunity in an unbeatable location. Bus route super close, perfect for Chrysler workers - bike to work! (55271413)

Property Summary

Property Type
Single Family
Building Type
House
Storeys
1
Title
Freehold
Land Size
40.15 X 98.07 FT
Built in
1957
Time on REALTOR.ca
14 days

Building

Bedrooms
Above Grade
3
Bathrooms
Total
1
Interior Features
Appliances Included
Dishwasher, Dryer, Refrigerator, Stove, Washer
Flooring
Ceramic/Porcelain, Hardwood, Laminate
Building Features
Features
Finished Driveway, Front Driveway
Foundation Type
Block
Style
Detached
Architecture Style
Bungalow, Ranch
Heating & Cooling
Cooling
Central air conditioning
Heating Type
Forced air, Furnace, (Natural gas)
Exterior Features
Exterior Finish
Aluminum/Vinyl

Rooms

Main level
4pc Bathroom
Laundry room
Bedroom
Bedroom
Primary Bedroom
Kitchen/Dining room
Eating area
Living room

Land

Lot Features
Fencing
Fence
Other Property Information
Zoning Description
RD1.2
Are you interested in touring this listing?
Request a showing

519-944-5955
519-944-3387

Similar Listings

KRISTA KLUNDERT