We use cookies and other technologies for functionality, security, and to provide you with a personalized experience on our online services. By continuing to use our online services, you agree to our Privacy Policy and Terms of Use. For information on how to adjust your privacy settings, visit our Cookie Policy.
Dismiss
Home AB Greater Calgary Division No. 6 Calgary Greenwood-Greenbriar
215 Greenwich Drive NW
Directions Print
215 Greenwich Drive NW $765,000
$765,000
Hide
Favourite

215 Greenwich Drive NW
Calgary, Alberta T3B6N9

MLS® Number: A2277964
3
Bedrooms
3
Bathrooms
2048
Square Feet

Listing Description

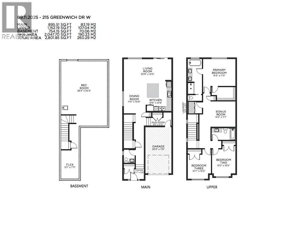
For those who work hard and play harder, this brand-new paired home in Upper Greenwich is the perfect blend of style, comfort, and convenience.Step inside and feel the calm wash over you – tall ceilings and wide-plank luxury flooring create a light, airy vibe. The chef-inspired kitchen is a showstopper with warm wood grain on the island, soft white cabinetry, quartz countertops, and a backsplash fittingly named White Brick Road. Whether you’re grabbing a quick breakfast before heading out the door or hosting friends on a night off, this space is made for real life. Upstairs, your primary suite is a private escape after long shifts. Soak away the stress of the day in the freestanding tub, or refresh under the frameless glass walk-in shower with tile surround and adjustable-height faucet. Dual sinks, a private water closet, and elegant finishes give it a spa-like feel. Two more bedrooms and a bonus room mean there’s space for guests, a Peloton corner, or a quiet reading nook. Your commute? 20 minutes to downtown Calgary. Your weekend? 45 minutes to the mountains. Walk to the Calgary Farmers’ Market for fresh ingredients, hit the pickleball courts, or follow the nearby paths to the Bow River for a run, paddle, or just a moment of stillness. Winsport and the Calgary Climbing Centre are practically in your backyard, keeping your active lifestyle within easy reach. This isn’t just a house – it’s a home designed for your pace, your goals, and your well-earned downtime. (31545502)

Property Summary

Property Type
Single Family
Building Type
Duplex
Storeys
2
Square Footage
2048 sqft
Community Name
Greenwood/Greenbriar
Subdivision Name
Greenwood/Greenbriar
Title
Freehold
Land Size
287 m2|0-4,050 sqft
Built in
2024
Annual Property Taxes
$2,178
Parking Type
Concrete, Attached Garage (1)
Time on REALTOR.ca
15 days

Building

Bedrooms
Above Grade
3
Bathrooms
Total
3
Partial
1
Interior Features
Appliances Included
Washer, Refrigerator, Cooktop - Electric, Dishwasher, Dryer, Microwave, Oven - Built-In, Hood Fan, Garage door opener
Flooring
Carpeted, Ceramic Tile, Vinyl Plank
Basement Type
Full (Unfinished)
Building Features
Features
PVC window, No Smoking Home, Gas BBQ Hookup
Foundation Type
Poured Concrete
Style
Semi-detached
Construction Material
Wood frame
Structures
None
Heating & Cooling
Cooling
See Remarks
Heating Type
Forced air
Exterior Features
Exterior Finish
Brick, Composite Siding
Neighbourhood Features
Community Features
Fishing
Amenities Nearby
Park, Playground, Recreation Nearby, Shopping
Parking
Parking Type
Concrete, Attached Garage (1)
Total Parking Spaces
2

Measurements

Square Footage
2048 sqft
Total Finished Area
2048 sqft

Rooms

MetricImperial
Main level
Kitchen
Dining room
Living room
Foyer
2pc Bathroom
Second level
Bonus Room
Primary Bedroom
Bedroom
Bedroom
4pc Bathroom
5pc Bathroom
Laundry room
Basement
Other
Lower level
Recreational, Games room

Land

Lot Features
Fencing
Partially fenced
Frontage
7.75 m
Other Property Information
Zoning Description
DC
Data provided by: Pillar 9™
Are you interested in touring this listing?
Request a showing

Similar Listings

Julie C. Dempsey