We use cookies and other technologies for functionality, security, and to provide you with a personalized experience on our online services. By continuing to use our online services, you agree to our Privacy Policy and Terms of Use. For information on how to adjust your privacy settings, visit our Cookie Policy.
Dismiss
Home ON Greater Hamilton Halton Region Burlington Rural
2 CEDAR STREET - 4449 MILBUROUGH LINE
Directions Print
2 CEDAR STREET - 4449 MILBUROUGH LINE $549,900
$549,900
Hide
Favourite

2 CEDAR STREET - 4449 MILBUROUGH LINE
Burlington, Ontario L7P0C5

MLS® Number: W12703464
2
Bedrooms
2
Bathrooms
700 - 1100
Square Feet

Listing Description

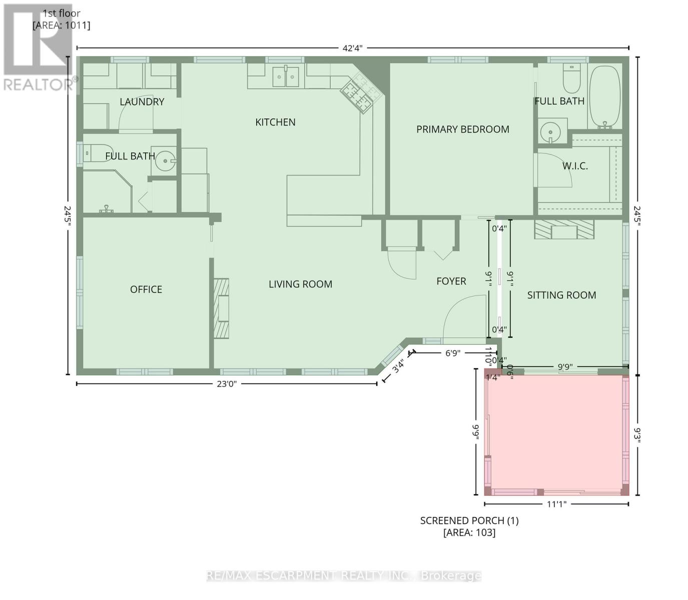
2 Cedar Street is a gem, set on a prime corner lot in Lost Forest Park backing onto forested conservation. This General Coach custom model boasts an open layout with thoughtful upgrades throughout. The spacious eat-in kitchen features neutral cabinetry, pull-out drawers, a pantry, black stainless steel appliances, Corian countertops, pendant lights, and under-cabinet lighting. The large living room showcases a stunning floor-to-ceiling stone Napoleon electric fireplace. The primary bedroom includes a walk-in closet and a 4-piece ensuite, while the home also features a second bedroom, an additional 3-piece bath, and a roomy laundry area with full-size washer and dryer. Pocket French door entry to the bright den/sunroom with large windows to unwind and enjoy the forest view. The sunroom also features access to the professionally enclosed porch for 3-season enjoyment. California shutters, vaulted ceilings, pot lights, and ceiling fans add charm throughout. A Generac generator ensures peace of mind, and the landscaped lot shines with a flagstone patio, low-maintenance artificial grass, mature trees, perennials, storage shed and a custom built raised garden bed. Enjoy entertaining in your private backyard and the tranquility of nature. Parking for two cars on the oversized double driveway! Lost Forest Park is a gated 100-acre community with amenities like a pool and walking trails, and a monthly fee of approximately $782 covers the land lease, maintenance, and more. Conveniently located in north Burlington and a short distance to Waterdown's shops and restaurants, this rare find is truly one-of-a-kind. (41962959)

Location Description

Cross Streets: Milburough/6 Conc. ** Directions: Concession 6 to Milburough Line.

Property Summary

Property Type
Single Family
Building Type
Modular
Storeys
1
Square Footage
700 - 1100 sqft
Community Name
Rural Burlington
Land Size
51 x 50 FT
Annual Property Taxes
$511.32
Parking Type
No Garage
Time on REALTOR.ca
18 days

Building

Bedrooms
Above Grade
2
Bathrooms
Total
2
Interior Features
Appliances Included
Water Heater - Tankless, Water Heater, Water softener, Dishwasher, Dryer, Microwave, Stove, Washer, Window Coverings, Refrigerator
Basement Type
None
Building Features
Features
Cul-de-sac, Wooded area, Backs on greenbelt, Flat site, Conservation/green belt, Carpet Free
Foundation Type
Slab
Other Style
Manufactured
Architecture Style
Bungalow
Building Amenities
Fireplace(s)
Rental Equipment
Propane Tank
Structures
Patio(s), Porch, Shed
Heating & Cooling
Cooling
Central air conditioning
Fireplace
1
Heating Type
Forced air (Propane)
Utilities
Utility Sewer
Septic System
Water
Shared Well
Exterior Features
Exterior Finish
Vinyl siding
Neighbourhood Features
Community Features
Community Centre
Amenities Nearby
Golf Nearby
Parking
Parking Type
No Garage
Total Parking Spaces
2

Measurements

Square Footage
700 - 1100 sqft

Rooms

MetricImperial
Main level
Kitchen
Living room
Den
Primary Bedroom
Bedroom 2
Sunroom

Land

Lot Features
Frontage
51 ft
Land Depth
50 ft
Landscape Features
Landscaped
View
View
Other Property Information
Zoning Description
NEC DEV CONTROL AREA
Are you interested in touring this listing?
Request a showing

Similar Listings

CHERYL LYNNE LEDAMUN