We use cookies and other technologies for functionality, security, and to provide you with a personalized experience on our online services. By continuing to use our online services, you agree to our Privacy Policy and Terms of Use. For information on how to adjust your privacy settings, visit our Cookie Policy.
Dismiss
Home AB Greater Calgary Division No. 6 Calgary Livingston
106, 40 Livingston Parade NE
Directions Print
106, 40 Livingston Parade NE $369,000
4 hours ago
$369,000
Hide
Favourite

106, 40 Livingston Parade NE
Calgary, Alberta T4B3P6

MLS® Number: A2275977
2
Bedrooms
3
Bathrooms
1210
Square Feet

Listing Description

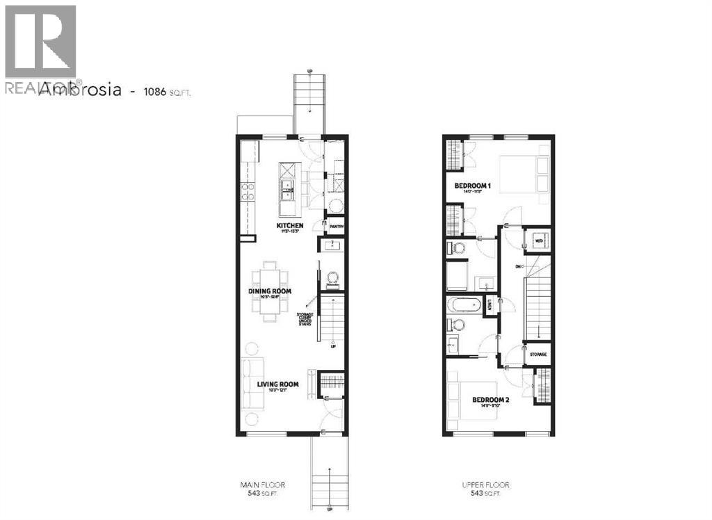
Welcome to the Ambrosia by Avalon Master Builder, a stunning 2-bedroom, 2.5-bathroom two-story townhome designed for modern living. This EnerGuide-certified home features open-concept living with a spacious kitchen island, perfect for entertaining, and luxurious vinyl plank (LVP) flooring throughout the main level and bathrooms. Each bedroom boasts its own private ensuite for added comfort and convenience, while upper-floor laundry provides maximum functionality. Built to 2030 and beyond building code standards, it features superior insulation, triple-pane windows, and advanced construction techniques that keep energy costs low and comfort high. Every square foot of this home is thoughtfully designed to maximize functionality, energy efficiency and style. Photos are representative. (31477154)

Property Summary

Property Type
Single Family
Building Type
Row / Townhouse
Storeys
2
Square Footage
1210 sqft
Community Name
Livingston
Subdivision Name
Livingston
Title
Condominium/Strata
Land Size
Unknown
Built in
2025
Annual Property Taxes
$0
Total Parking Spaces
1
Time on REALTOR.ca
4 hours

Building

Bedrooms
Above Grade
2
Bathrooms
Total
3
Partial
1
Interior Features
Appliances Included
Washer, Refrigerator, Dishwasher, Range, Dryer, Microwave
Flooring
Carpeted, Vinyl Plank
Basement Type
None
Building Features
Features
No Animal Home, No Smoking Home, Level
Foundation Type
Poured Concrete
Style
Attached
Construction Material
Wood frame
Structures
None
Heating & Cooling
Cooling
None
Heating Type
Forced air, (Natural gas)
Neighbourhood Features
Community Features
Pets Allowed
Amenities Nearby
Park, Playground, Schools, Shopping
Maintenance or Condo Information
Maintenance Fees
$248 Monthly
Maintenance Fees Include
Insurance, Ground Maintenance, Property Management, Reserve Fund Contributions
Maintenance Management Company
EMERALD MANAGEMENT & REALTY LT
Parking
Total Parking Spaces
1

Measurements

Square Footage
1210 sqft
Total Finished Area
1210 sqft

Rooms

MetricImperial
Main level
Living room
Dining room
Kitchen
2pc Bathroom
Upper Level
Primary Bedroom
3pc Bathroom
4pc Bathroom
Bedroom

Land

Lot Features
Fencing
Not fenced
Other Property Information
Zoning Description
TBD
Data provided by: Pillar 9™
Are you interested in touring this listing?
Request a showing

Similar Listings

David Lofthaug