We use cookies and other technologies for functionality, security, and to provide you with a personalized experience on our online services. By continuing to use our online services, you agree to our Privacy Policy and Terms of Use. For information on how to adjust your privacy settings, visit our Cookie Policy.
Dismiss
Home MB Greater Winnipeg Division No. 13 West St. Paul
178 RED PINE Drive
Directions Print
178 RED PINE Drive $469,900
4 hours ago
$469,900
Hide
Favourite

178 RED PINE Drive
West St Paul, Manitoba R4A0G1

MLS® Number: 202529887
3
Bedrooms
3
Bathrooms
1523
Square Feet

Listing Description

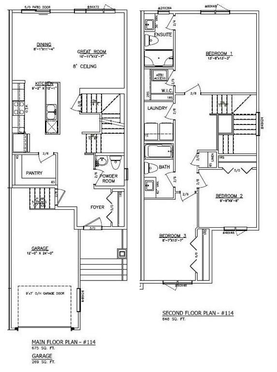
R15//West St Paul/This brand new, large (1,523 square feet) side by side duplex unit is ready for possession NOW! Entering the large front Foyer, there is lots of storage, access to the attached 12' x 24' garage, and a main floor Powder Room. Continue to the open concept main living area which includes a large Great Room, Dining area and Kitchen with a large Island, and a huge walk-in Pantry. Upstairs, the large Primary Bedroom includes a walk-in closet and private Ensuite with glass doored shower. The main Bathroom has a tub/shower, to service the other two good sized Bedrooms. Laundry has its own room on the 2nd floor. Upgrades included are: Quartz countertops in the Kitchen and all Bathrooms. Has a large backyard space with Developer fence along the rear and no houses behind. New Home Warranty of 1-2-5-10 years. (231726905)

Property Summary

Property Type
Single Family
Building Type
House
Storeys
2
Square Footage
1523 sqft
Community Name
West St Paul
Neighbourhood Name
West St Paul
Title
Freehold
Land Size
25 x 131
Built in
2025
Annual Property Taxes
$1,130.30
Parking Type
Attached Garage
Time on REALTOR.ca
4 hours

Building

Bathrooms
Total
3
Partial
1
Interior Features
Appliances Included
Microwave Built-in, Central Vacuum - Roughed In, Garage door opener, Garage door opener remote(s), Microwave
Flooring
Wall-to-wall carpet, Vinyl, Vinyl Plank
Building Features
Features
Flat site, Closet Organizers, Exterior Walls- 2x6", Sump Pump
Fire Protection
Smoke Detectors
Heating & Cooling
Heating Type
Heat Recovery Ventilation (HRV), High-Efficiency Furnace, Forced air (Electric)
Utilities
Utility Sewer
Municipal sewage system
Water
Municipal water
Neighbourhood Features
Amenities Nearby
Golf Nearby, Playground, Shopping
Parking
Parking Type
Attached Garage
Total Parking Spaces
3

Measurements

Square Footage
1523 sqft

Rooms

MetricImperial
Main level
Kitchen
Dining room
Great room
Upper Level
Primary Bedroom
Bedroom
Bedroom

Land

Lot Features
Frontage
25 ft
Land Depth
131 ft
Landscape Features
Not landscaped
Are you interested in touring this listing?
Request a showing

204-941-1639

Similar Listings

Chris Magas