We use cookies and other technologies for functionality, security, and to provide you with a personalized experience on our online services. By continuing to use our online services, you agree to our Privacy Policy and Terms of Use. For information on how to adjust your privacy settings, visit our Cookie Policy.
Dismiss
Home BC Greater Prince George Prince George North Nechako
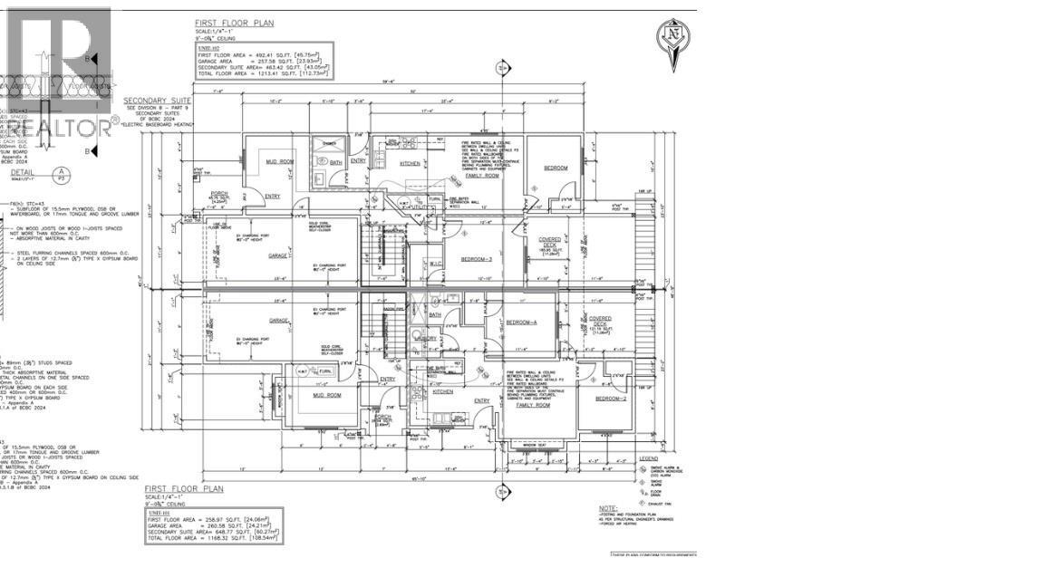
2716 EDGEWATER CRESCENT
Directions Print
2716 EDGEWATER CRESCENT $679,900
Price Change on 12/19/2025
$679,900
+$100,000
$579,900
Hide
Favourite

2716 EDGEWATER CRESCENT
Prince George, British Columbia V2K0B9

MLS® Number: R3074474
1
Bedrooms
0
Bathrooms
2161
Square Feet

Listing Description

. (32269632)

Property Summary

Property Type
Single Family
Building Type
Duplex
Storeys
1
Square Footage
2161 sqft
Title
Freehold
Built in
2026
Annual Property Taxes
$1,266.55
Parking Type
Garage (1)
Time on REALTOR.ca
1 day

Building

Bathrooms
Total
0
Interior Features
Basement Type
Finished
Building Features
Foundation Type
Concrete Perimeter
Style
Attached
Architecture Style
Basement entry
Heating & Cooling
Heating Type
Forced air, (Natural gas)
Utilities
Water
Municipal water
Exterior Features
Roof Style
Conventional (Asphalt shingle)
Exterior Finish
Composite Siding
Parking
Parking Type
Garage (1)

Measurements

Square Footage
2161 sqft
Total Finished Area
2161 sqft

Rooms

MetricImperial
Main level
Bedroom 2
Data provided by: BC Northern Real Estate Board
Are you interested in touring this listing?
Request a showing

Similar Listings

Darcy Porsnuk