We use cookies and other technologies for functionality, security, and to provide you with a personalized experience on our online services. By continuing to use our online services, you agree to our Privacy Policy and Terms of Use. For information on how to adjust your privacy settings, visit our Cookie Policy.
Dismiss
Home ON Greater Toronto Area Toronto Old Toronto Davisville
2307 - 125 REDPATH AVENUE
Directions Print
2307 - 125 REDPATH AVENUE $2,500/Monthly
1 day ago
$2,500/Monthly
Hide
Favourite

2307 - 125 REDPATH AVENUE
Toronto (Mount Pleasant West), Ontario M4S0B5

MLS® Number: C12641232
1 + 1
Bedrooms
1
Bathrooms
600 - 699
Square Feet

Listing Description

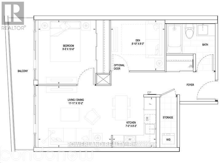
One Bedroom + Den At Prime Midtown, Menkes' The Eglinton. Minutes Walk To Subway, Loblaws, Lcbo, Shops & Restaurants & Future Lrt. Gym, Billiards, Party Room, Theatre, Outdoor Garden, 24-Hr Concierge, Etc. Great Functional Layout, Den Can Be Used As 2nd Br (With Door),Unobstructed View, Upgraded B/I Appliances, Quartz Counter, Track Lights, Etc. (41835706)

Location Description

Mt Pleasant & Eglinton

Property Summary

Property Type
Single Family
Building Type
Apartment
Square Footage
600 - 699 sqft
Community Name
Mount Pleasant West
Title
Condominium/Strata
Parking Type
Underground, Garage
Time on REALTOR.ca
1 day

Building

Bedrooms
Above Grade
1
Below Grade
1
Bathrooms
Total
1
Interior Features
Appliances Included
Dishwasher, Dryer, Microwave, Hood Fan, Stove, Washer, Refrigerator
Basement Type
None
Building Features
Features
Balcony, Carpet Free
Building Amenities
Security/Concierge, Exercise Centre, Visitor Parking, Storage - Locker
Heating & Cooling
Cooling
Central air conditioning
Heating Type
Forced air (Natural gas)
Exterior Features
Exterior Finish
Concrete
Neighbourhood Features
Community Features
Pets not Allowed
Maintenance or Condo Information
Maintenance Management Company
Menres
Parking
Parking Type
Underground, Garage
Total Parking Spaces
0

Measurements

Square Footage
600 - 699 sqft

Rooms

MetricImperial
Flat
Living room
Dining room
Kitchen
Primary Bedroom
Den

Land

Lot Features
View
City view
Are you interested in touring this listing?
Request a showing

Similar Listings

ROBERT LAN DA CAO