We use cookies and other technologies for functionality, security, and to provide you with a personalized experience on our online services. By continuing to use our online services, you agree to our Privacy Policy and Terms of Use. For information on how to adjust your privacy settings, visit our Cookie Policy.
Dismiss
Home ON Ottawa - Gatineau Ottawa Kanata Kanata Lakes - Marchwood Lakeside - Morgan's Grant - Kanata North Business Park
415 SILVERBERRY PRIVATE
Directions Print
415 SILVERBERRY PRIVATE $2,475/Monthly
13 hours ago
$2,475/Monthly
Hide
Favourite

415 SILVERBERRY PRIVATE
Ottawa, Ontario K2T0R8

MLS® Number: X12640072
2
Bedrooms
2
Bathrooms
1100 - 1500
Square Feet

Listing Description

Be the first to live in this newly built stacked townhome offering modern design and comfortable living. This thoughtfully designed home features 2 spacious bedrooms and 1.5 bathrooms, perfect for professionals, couples, or small families. The open-concept main floor boasts a bright living and dining area, complemented by a contemporary kitchen with modern finishes and ample storage. A convenient main-floor powder room adds functionality for everyday living and entertaining. Upstairs, you'll find two well-sized bedrooms with generous closet space and a full bathroom finished with sleek, modern touches. Located in a desirable and growing community close to shopping, transit, parks, and other amenities. Ideal for tenants seeking comfort, style, and convenience. (41833507)

Location Description

Cross Streets: Campeau Drive and Feedmill Private. ** Directions: Campeau to Feedmill Private, Turn right off Feedmill Private onto Silverberry Private.

Property Summary

Property Type
Single Family
Building Type
Row / Townhouse
Storeys
3
Square Footage
1100 - 1500 sqft
Community Name
9007 - Kanata - Kanata Lakes/Heritage Hills
Title
Freehold
Age Of Building
New building
Parking Type
Garage
Time on REALTOR.ca
13 hours

Building

Bedrooms
Above Grade
2
Bathrooms
Total
2
Partial
1
Interior Features
Basement Type
None
Building Features
Foundation Type
Concrete
Style
Attached
Heating & Cooling
Cooling
Central air conditioning, Air exchanger
Heating Type
Forced air (Natural gas)
Utilities
Utility Sewer
Sanitary sewer
Water
Municipal water
Exterior Features
Exterior Finish
Brick, Vinyl siding
Parking
Parking Type
Garage
Total Parking Spaces
2

Measurements

Square Footage
1100 - 1500 sqft

Rooms

MetricImperial
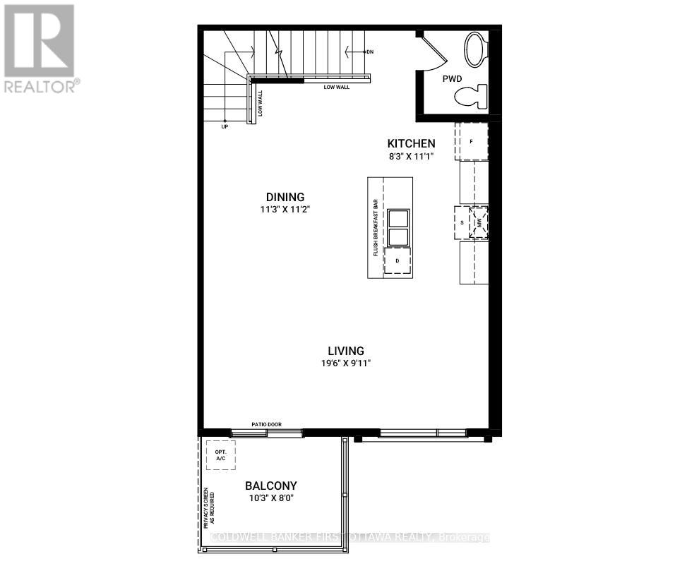
Second level
Kitchen
Third level
Bedroom
Bedroom 2
Bathroom
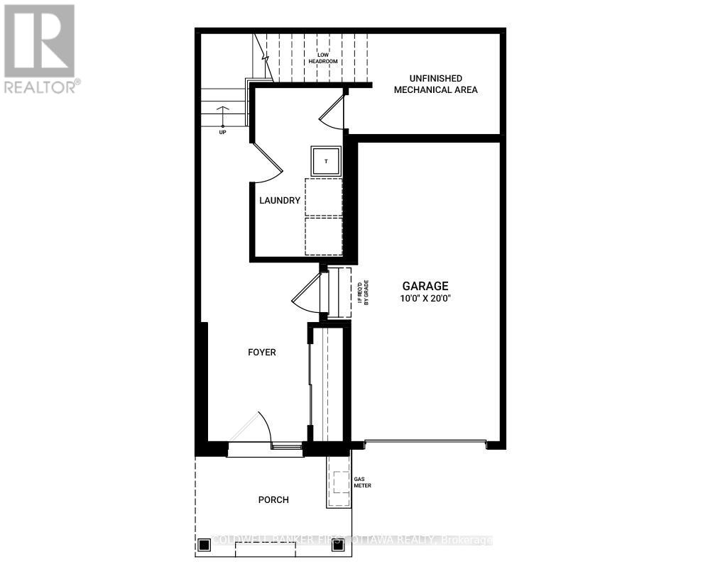
Ground level
Foyer
Laundry room
Data provided by: Ottawa Real Estate Board
Are you interested in touring this listing?
Request a showing

Similar Listings

Adam Donnelly