We use cookies and other technologies for functionality, security, and to provide you with a personalized experience on our online services. By continuing to use our online services, you agree to our Privacy Policy and Terms of Use. For information on how to adjust your privacy settings, visit our Cookie Policy.
Dismiss
Home ON Tiny
8254 93 HIGHWAY
Directions Print
8254 93 HIGHWAY $524,900
3 days ago
$524,900
Hide
Favourite

8254 93 HIGHWAY
Tiny (Wyebridge), Ontario L0K2E0

MLS® Number: S12639534
3
Bedrooms
2
Bathrooms
700 - 1100
Square Feet

Listing Description

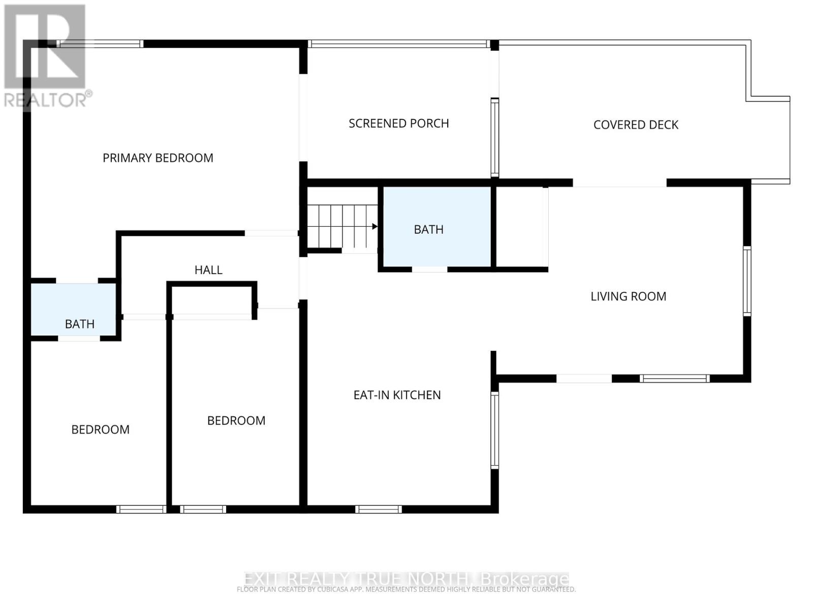
Welcome to this 3-bedroom, 2-bathroom raised bungalow in the heart of Wyebridge. Situated on a large lot with excellent visibility along Highway 93, this property offers both comfortable living and incredible business potential. The main floor features a bright, practical layout with inviting living areas, well-suited for daily life or a home-based office. Walk out from the primary bedroom to a private, fully fenced backyard with a covered porch, ideal for entertaining or simply relaxing outdoors. A backup generator provides peace of mind, while ample parking and direct highway exposure make this an excellent choice for an at-home business. Conveniently located just minutes from Midland, Georgian Bay and local amenities, this home presents a rare chance to combine lifestyle and work in one property. Don't let this amazing opportunity pass you by! (41832273)

Location Description

Cross Streets: Hwy 93 and Marsh Lane. ** Directions: Hwy 12 to Hwy 93; SOP.

Property Summary

Property Type
Single Family
Building Type
House
Storeys
1
Square Footage
700 - 1100 sqft
Community Name
Wyebridge
Title
Freehold
Land Size
82.5 x 132 FT
Annual Property Taxes
$1,926
Parking Type
No Garage
Time on REALTOR.ca
3 days

Building

Bedrooms
Above Grade
3
Bathrooms
Total
2
Partial
1
Interior Features
Appliances Included
Water Heater, Dryer, Microwave, Stove, Washer, Refrigerator
Basement Type
Partial (Unfinished)
Building Features
Features
Cul-de-sac, Level lot, Flat site, Dry, Level
Foundation Type
Stone, Poured Concrete
Style
Detached
Architecture Style
Raised bungalow
Construction Status
Insulation upgraded
Structures
Deck, Porch
Heating & Cooling
Cooling
Central air conditioning
Heating Type
Forced air (Natural gas)
Utilities
Utility Type
Cable (Installed), Electricity (Installed)
Utility-Hydro
Generator
Utility Sewer
Septic System
Water
Municipal water, Sand point
Exterior Features
Exterior Finish
Vinyl siding
Neighbourhood Features
Community Features
Community Centre
Amenities Nearby
Hospital
Parking
Parking Type
No Garage
Total Parking Spaces
8

Measurements

Square Footage
700 - 1100 sqft

Rooms

MetricImperial
Main level
Living room
Kitchen
Primary Bedroom
Bedroom 2
Bedroom 3

Land

Lot Features
Frontage
82 ft ,6 in
Land Depth
132 ft
Other Property Information
Zoning Description
Highway Commercial C5-3
Are you interested in touring this listing?
Request a showing

Similar Listings

RYAN ALLARY