We use cookies and other technologies for functionality, security, and to provide you with a personalized experience on our online services. By continuing to use our online services, you agree to our Privacy Policy and Terms of Use. For information on how to adjust your privacy settings, visit our Cookie Policy.
Dismiss
Home NL Division No. 6 Bishop's Falls
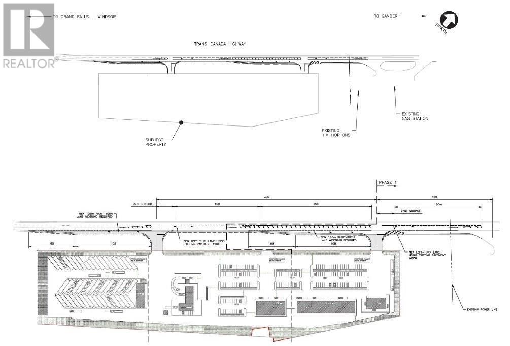
92-106 Trans-Canada Highway
Directions Print
92-106 Trans-Canada Highway $49,900
5 hours ago
$49,900
Hide
Favourite

92-106 Trans-Canada Highway
Bishop's Falls, Newfoundland & Labrador A0H1C0

MLS® Number: 1293328

Listing Description

PRIME COMMERCIAL REAL ESTATE! Centrally located in the province of Newfoundland are these 1 acre lots in a high traffic area along the TCH located in the scenic Town of Bishop's Falls! With so much activity currently going on along the Exploits River this location would be ideal for any fast food chain or other service business. These lots are next to an established Tim Horton's and Irving Truck stop. Highway Commercial zoning allows many uses. Lots are being sold in 1 acre lots, as is and are not serviced. Owner is also open to sub dividing lots if buyer would like to buy more than one lot (30484589)

Property Summary

Property Type
Vacant Land
Title
Freehold
Land Size
1 ACRE|1 - 3 acres
Annual Property Taxes
$0
Time on REALTOR.ca
5 hours

Building

Utilities
Utility Sewer
No sewage system
Water
None

Land

Other Property Information
Access
Year-round access
Zoning Description
Commercial
Data provided by: Newfoundland & Labrador Association of REALTORS®
Are you interested in touring this listing?
Request a showing

709-293-2085
709-393-9001

Similar Listings

CHRISTOPHER ELLIS