We use cookies and other technologies for functionality, security, and to provide you with a personalized experience on our online services. By continuing to use our online services, you agree to our Privacy Policy and Terms of Use. For information on how to adjust your privacy settings, visit our Cookie Policy.
Dismiss
Home MB Greater Winnipeg Taché
145 Harvest Crescent
Directions Print
More Photos + 1
145 Harvest Crescent $579,900
1 day ago
$579,900
Hide
Favourite

145 Harvest Crescent
Lorette, Manitoba R5K0T3

MLS® Number: 202530021
4
Bedrooms
3
Bathrooms
1708
Square Feet

Listing Description

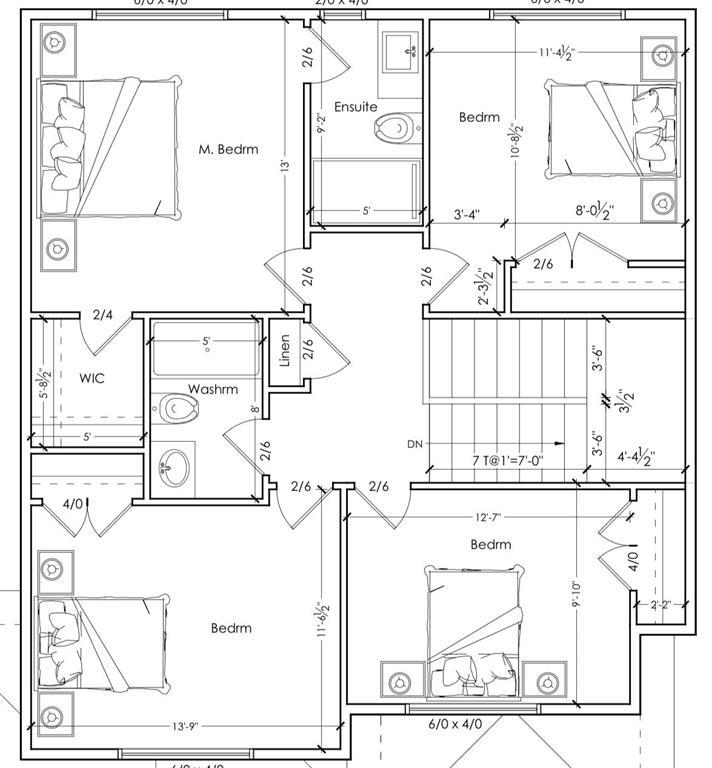
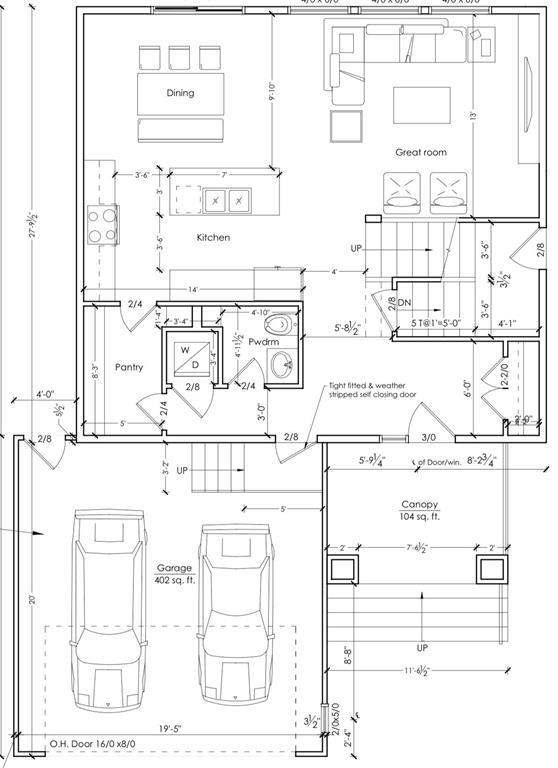
R05//Lorette/BRAND NEW 2-Storey Home in "Oak Terrace", Lorette MB's most desirable new development! This 4 Bed/2.5 Bath 2-storey home has a great family-friendly floorplan & is built to last. As you enter, you'll find a large foyer w/large coat closet, mudroom w/main floor laundry, 2-pc bath, walkthrough butlers pantry & access to the double-attached garage! The main floor also offers a large custom kitchen w/island, walk-through pantry, quartz countertops & soft close cabinets. The living room & dining room are located at the back of the house w/large windows & patio door that overlooks the backyard. Upstairs you'll find a full 4-pc bath + 4 large bedrooms incl the spacious master bedroom w/large walk-in closet & 3-pc ensuite bath w/standing shower! The price incl: the lot, GST, concrete driveway, piled foundation, central A/C, & 10 year new home warranty! Call today for more details, discuss the build, the floor plans, & to make this home your own! Always happy to help! (231721245)

Property Summary

Property Type
Single Family
Building Type
House
Storeys
2
Square Footage
1708 sqft
Community Name
R05
Neighbourhood Name
R05
Title
Freehold
Land Size
50 x 95
Built in
2026
Annual Property Taxes
$0
Parking Type
Attached Garage, Other, Other, Other
Time on REALTOR.ca
1 day

Building

Bathrooms
Total
3
Partial
1
Interior Features
Appliances Included
Hood Fan
Flooring
Wall-to-wall carpet, Vinyl Plank
Building Features
Features
No back lane, Park/reserve, Exterior Walls- 2x6", Central Exhaust, Sump Pump
Fire Protection
Smoke Detectors
Heating & Cooling
Cooling
Central air conditioning
Heating Type
Heat Recovery Ventilation (HRV), High-Efficiency Furnace, Forced air (Natural gas)
Utilities
Utility Sewer
Municipal sewage system
Water
Municipal water
Parking
Parking Type
Attached Garage, Other

Measurements

Square Footage
1708 sqft

Rooms

MetricImperial
Main level
Dining room
Kitchen
Great room
Upper Level
Bedroom
Bedroom
Primary Bedroom
Bedroom

Land

Lot Features
Frontage
50 ft
Land Depth
95 ft
Road Type
Paved road
Are you interested in touring this listing?
Request a showing

Similar Listings

Jennifer Baylis