We use cookies and other technologies for functionality, security, and to provide you with a personalized experience on our online services. By continuing to use our online services, you agree to our Privacy Policy and Terms of Use. For information on how to adjust your privacy settings, visit our Cookie Policy.
Dismiss
Home AB Greater Calgary Division No. 6 Calgary Inglewood
2916 17 Street SE
Directions Print
2916 17 Street SE $549,000
12 hours ago
$549,000
Hide
Favourite

2916 17 Street SE
Calgary, Alberta T2G3W3

MLS® Number: A2275237
1
Bedrooms
1
Bathrooms
1218
Square Feet

Listing Description

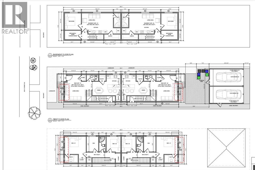
Attention Builders, Developers & Investors! Exceptional DP APPROVED for 4 UNITS, infill opportunity in Inglewood, one of Calgary’s most iconic and in-demand inner-city communities. Approved for a back-to-back duplex with two legal basement suites (4 units total), this project is truly shovel-ready. Utilities have been disconnected, the demolition permit is approved, and the interior of the existing home has already been stripped down to the studs — no asbestos remediation required. Build immediately and capitalize this season. Situated just 8 minutes from downtown, Inglewood is renowned for its vibrant character, strong rental demand, and long-term appreciation. The neighbourhood offers an unbeatable lifestyle with river pathways, parks, schools, breweries, boutiques, music venues, and some of Calgary’s top restaurants, all within walking distance. Easy access to transit and major roadways further enhances appeal for both end-users and tenants. This is a rare opportunity to develop in a high-barrier, mature inner-city location where new inventory is limited. Ideal for strong resale value, long-term rental hold, or investor exit, in a community that consistently outperforms. Don’t miss your chance to build in one of Calgary’s most established and sought-after neighbourhoods. (31462315)

Property Summary

Property Type
Single Family
Building Type
House
Storeys
1.5
Square Footage
1218 sqft
Community Name
Inglewood
Subdivision Name
Inglewood
Title
Freehold
Land Size
279 m2|0-4,050 sqft
Built in
1913
Annual Property Taxes
$2,435
Parking Type
Detached Garage (1)
Time on REALTOR.ca
12 hours

Building

Bedrooms
Above Grade
1
Bathrooms
Total
1
Partial
0
Interior Features
Appliances Included
None
Flooring
Other
Basement Type
Full (Unfinished)
Building Features
Features
See remarks
Foundation Type
Poured Concrete
Style
Detached
Structures
None
Heating & Cooling
Cooling
None
Neighbourhood Features
Amenities Nearby
Schools, Shopping
Parking
Parking Type
Detached Garage (1)
Total Parking Spaces
1

Measurements

Square Footage
1218 sqft
Total Finished Area
1218 sqft

Rooms

MetricImperial
Main level
Kitchen
Second level
Bedroom
3pc Bathroom

Land

Lot Features
Fencing
Partially fenced
Frontage
7.62 m
Land Depth
36.66 m
Other Property Information
Zoning Description
R-CG
Data provided by: Pillar 9™
Are you interested in touring this listing?
Request a showing

587-797-7777
403-474-8333

Similar Listings

Farhod Shamsiyev