We use cookies and other technologies for functionality, security, and to provide you with a personalized experience on our online services. By continuing to use our online services, you agree to our Privacy Policy and Terms of Use. For information on how to adjust your privacy settings, visit our Cookie Policy.
Dismiss
Home NL Greater St. John's Paradise
15 Port Rexton Place
Directions Print
More Photos + 1
15 Port Rexton Place $569,000
18 hours ago
$569,000
Hide
Favourite

15 Port Rexton Place
Paradise, Newfoundland & Labrador A1A0N5

MLS® Number: 1293278
3 + 2
Bedrooms
4
Bathrooms
2780
Square Feet

Listing Description

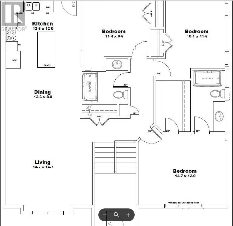
This is a mere listing. (Private Sale) If you are viewing this listing on realtor.ca and would like additional information and/or arrange a viewing, please click on the "MORE INFORMATION" button immediately below the "PROPERTY SUMMARY" to obtain the developer's contact information. Welcome to 15 Port Rexton Place, a well-appointed two-apartment home located in the desirable community of Paradise. This property represents the last remaining new build on a quiet cul-de-sac, offering a rare opportunity in an established and family-friendly neighbourhood. The main unit features a bright, open-concept layout with spacious living, dining, and kitchen areas designed for both comfort and functionality. The home includes three well-sized bedrooms and two and a half bathrooms, providing ample space for family living. The basement level offers a dedicated rec room with a powder room as part of the main unit, adding valuable additional living space. A self-contained two-bedroom basement apartment provides excellent income potential or flexible options for extended family living. Conveniently located close to schools, walking trails, and amenities, this property is well suited for owner-occupiers, investors, or multi-generational households seeking a new construction home in a quiet setting. Presently Under Construction - Ready In 120 Days (30479525)

Property Summary

Property Type
Single Family
Building Type
Two Apartment House
Square Footage
2780 sqft
Title
Freehold
Land Size
716 sqM|7,251 - 10,889 sqft
Built in
2025
Annual Property Taxes
$0
Time on REALTOR.ca
18 hours

Building

Bedrooms
Above Grade
3
Below Grade
2
Bathrooms
Total
4
Partial
1
Interior Features
Appliances Included
Dishwasher, Refrigerator, Microwave, Stove
Flooring
Mixed Flooring
Building Features
Foundation Type
Concrete
Style
Detached
Split Level Style
Split level
Heating & Cooling
Heating Type
(Electric)
Utilities
Utility Sewer
Municipal sewage system
Water
Municipal water
Exterior Features
Exterior Finish
Vinyl siding

Measurements

Square Footage
2780 sqft

Rooms

MetricImperial
Main level
Bath (# pieces 1-6)
Ensuite
Bedroom
Bedroom
Primary Bedroom
Living room
Dining room
Kitchen
Basement
Recreation room
Bath (# pieces 1-6)
Bath (# pieces 1-6)
Bedroom
Bedroom
Living room
Dining room
Kitchen

Land

Other Property Information
Zoning Description
Res.
Data provided by: Newfoundland & Labrador Association of REALTORS®
Are you interested in touring this listing?
Request a showing

Similar Listings

GARLAND MOULAND