We use cookies and other technologies for functionality, security, and to provide you with a personalized experience on our online services. By continuing to use our online services, you agree to our Privacy Policy and Terms of Use. For information on how to adjust your privacy settings, visit our Cookie Policy.
Dismiss
Home ON Greater Toronto Area Toronto North York Clanton Park Dublin Heights
31 - 851 SHEPPARD AVENUE W
Directions Print
31 - 851 SHEPPARD AVENUE W $2,900/Monthly
$2,900/Monthly
Hide
Favourite

31 - 851 SHEPPARD AVENUE W
Toronto (Bathurst Manor), Ontario M3H0G2

MLS® Number: C12600758
2
Bedrooms
3
Bathrooms
1000 - 1199
Square Feet

Listing Description

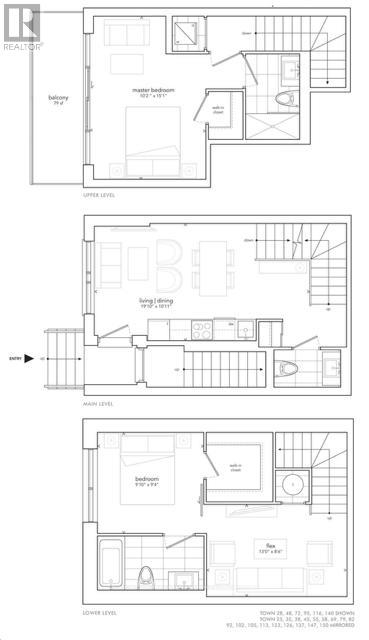
Introducing Greenwich Village Towns, a contemporary townhome development by Crown Communities, ideally located just steps from Sheppard West Subway Station. This stylish 1,010 sq. ft. home offers 2 generous bedrooms, 2.5 bathrooms, and a 79 sq. ft. balcony. The open-concept layout features a European inspired kitchen with sleek cabinetry, quartz countertops, a stylish backsplash, and stainless steel appliances. Laminate flooring, 9' ceilings, and a wood staircase enhance the home's modern appeal. The building also offers bike storage and visitor parking. Enjoy easy transit access to York University, with Yorkdale Shopping Center and Downsview Park just minutes away by car. (41762730)

Location Description

Cross Streets: Sheppard Ave. W / East of Dufferin St. ** Directions: Sheppard Ave. W / Faywood Blvd.

Property Summary

Property Type
Single Family
Building Type
Row / Townhouse
Storeys
3
Square Footage
1000 - 1199 sqft
Community Name
Bathurst Manor
Title
Condominium/Strata
Age Of Building
0 to 5 years
Parking Type
Underground, Garage
Time on REALTOR.ca
10 days

Building

Bedrooms
Above Grade
2
Bathrooms
Total
3
Partial
1
Interior Features
Appliances Included
Dishwasher, Furniture, Microwave, Stove, Window Coverings, Refrigerator
Flooring
Laminate
Basement Type
None
Building Features
Features
Balcony, Carpet Free, In suite Laundry
Building Amenities
Storage - Locker
Rental Equipment
Water Heater
Heating & Cooling
Cooling
Central air conditioning
Heating Type
Forced air (Natural gas)
Exterior Features
Exterior Finish
Brick
Neighbourhood Features
Community Features
Pets not Allowed
Maintenance or Condo Information
Maintenance Management Company
Crossbridge Property Management
Parking
Parking Type
Underground, Garage
Total Parking Spaces
1

Measurements

Square Footage
1000 - 1199 sqft

Rooms

MetricImperial
Main level
Living room
Lower level
Family room
Bedroom
Upper Level
Primary Bedroom
Are you interested in touring this listing?
Request a showing

Similar Listings

Peter J Brown