We use cookies and other technologies for functionality, security, and to provide you with a personalized experience on our online services. By continuing to use our online services, you agree to our Privacy Policy and Terms of Use. For information on how to adjust your privacy settings, visit our Cookie Policy.
Dismiss
Home ON Greater Oshawa Durham Region Oshawa Samac
310 ORMOND DRIVE
Directions Print
310 ORMOND DRIVE $629,000
$629,000
Hide
Favourite

310 ORMOND DRIVE
Oshawa (Samac), Ontario L1K1J2

MLS® Number: E12599564
2 + 2
Bedrooms
2
Bathrooms
2000 - 2500
Square Feet

Listing Description

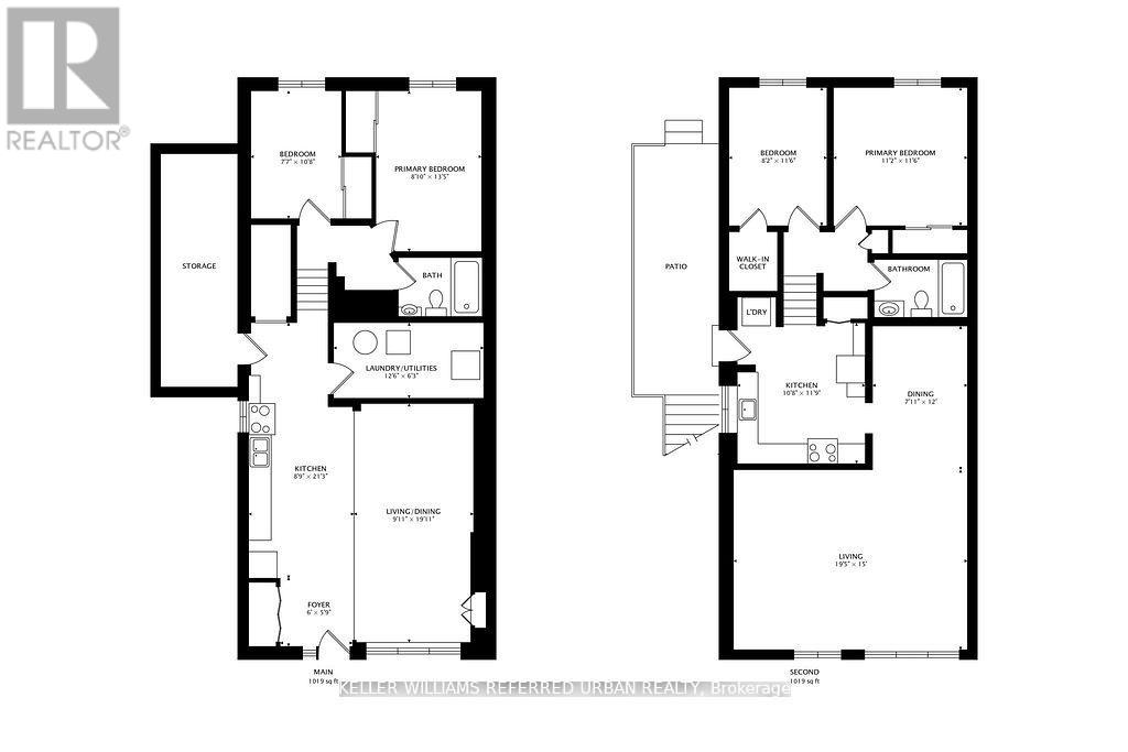
Welcome to 310 Ormond Dr. This charming duplex offers a unique opportunity for both investors and homeowners alike. With its convenient location, spacious layout, and attractive rental income, this duplex presents an excellent investment opportunity in the Durham real estate market. The property is designated as a duplex and consist of 2 self-contained units. Each unit features 2 spacious bedrooms, ensuite laundry, well laid out living spaces with large window for excellent light exposure, parking space, and large yard. Combine this with the convenience to highway, stores, parks and transit this property is not to be missed. Oshawa's real estate market continues to show promising growth, making this duplex an excellent investment opportunity. Whether you're a seasoned investor or a first-time buyer looking to build equity, this property offers long-term potential for capital appreciation. (41760411)

Location Description

Ritson Rd N & Ormond Drive

Property Summary

Property Type
Multi-family
Building Type
Duplex
Square Footage
2000 - 2500 sqft
Community Name
Samac
Land Size
35 x 91 FT
Annual Property Taxes
$4,538
Parking Type
No Garage
Time on REALTOR.ca
11 days

Building

Bedrooms
Above Grade
2
Below Grade
2
Bathrooms
Total
2
Interior Features
Appliances Included
All, Dryer, Two stoves, Washer, Two Refrigerators
Flooring
Ceramic, Hardwood, Laminate
Basement Features
Separate entrance
Basement Type
Finished
Building Features
Foundation Type
Unknown
Split Level Style
Backsplit
Rental Equipment
Water Heater
Heating & Cooling
Cooling
None
Heating Type
Forced air (Natural gas)
Utilities
Utility Type
Cable (Available), Electricity (Installed), Sewer (Installed)
Utility Sewer
Sanitary sewer
Water
Municipal water
Exterior Features
Exterior Finish
Brick
Neighbourhood Features
Amenities Nearby
Park, Public Transit, Schools
Parking
Parking Type
No Garage
Total Parking Spaces
2

Measurements

Square Footage
2000 - 2500 sqft

Rooms

MetricImperial
Main level
Kitchen
Living room
Dining room
Bedroom
Bedroom 2
Upper Level
Kitchen
Dining room
Living room
Bedroom
Bedroom

Land

Lot Features
Frontage
35 ft
Land Depth
91 ft
Are you interested in touring this listing?
Request a showing

Similar Listings

TUAN TRAN