We use cookies and other technologies for functionality, security, and to provide you with a personalized experience on our online services. By continuing to use our online services, you agree to our Privacy Policy and Terms of Use. For information on how to adjust your privacy settings, visit our Cookie Policy.
Dismiss
Home NS Greater Halifax Halifax County Halifax Dartmouth
GW-13 92 Gardenia Way
Directions Print
GW-13 92 Gardenia Way $921,900
$921,900
Hide
Favourite

GW-13 92 Gardenia Way
Dartmouth, Nova Scotia B2X0C8

MLS® Number: 202528764
3 + 1
Bedrooms
4
Bathrooms
3116
Square Feet

Listing Description

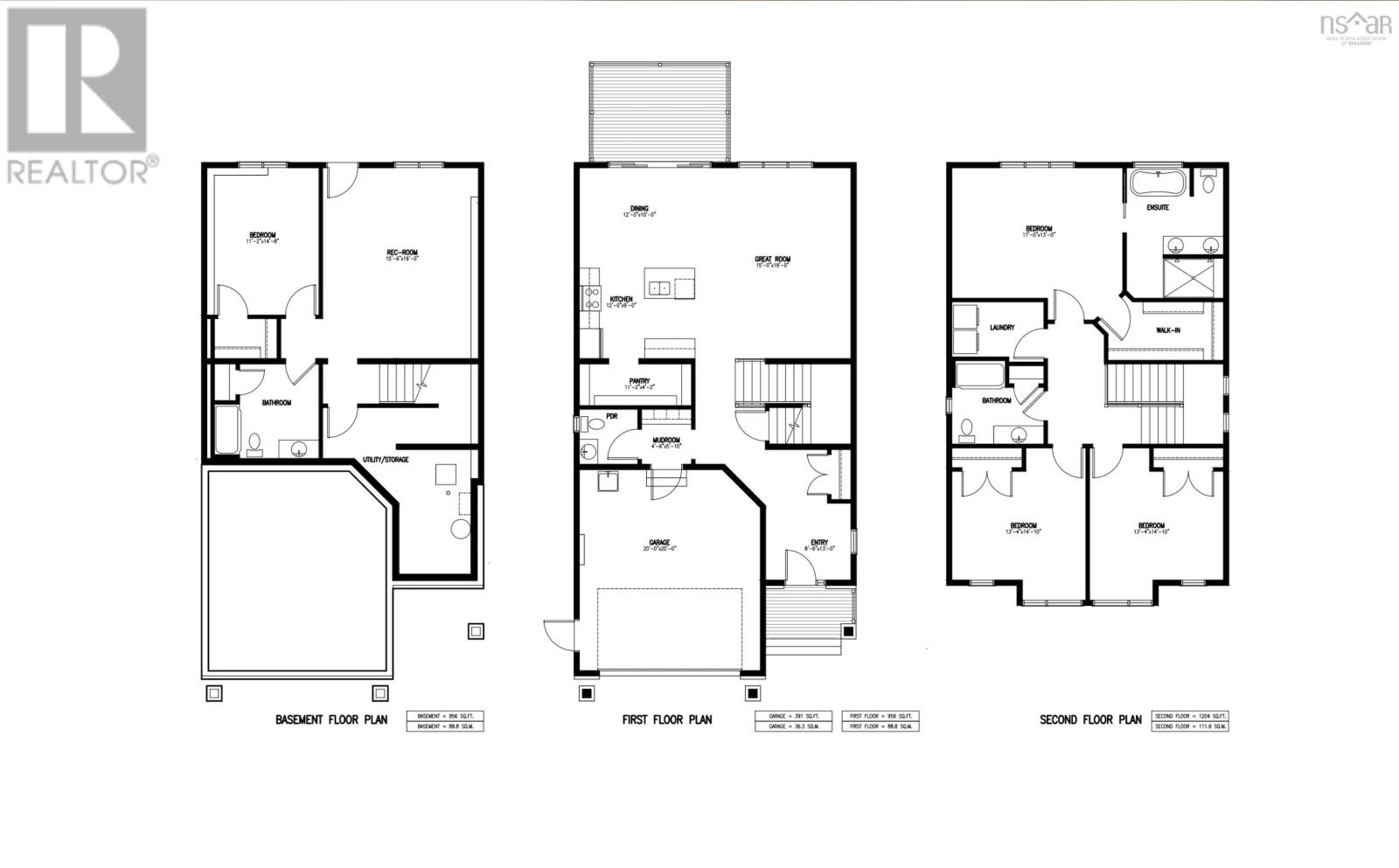
Meet "Morgan" A Stunning 2-Storey Home in The Parks of Lake Charles! Rooftight Homes presents the Morgan, a beautifully designed 4-bedroom, 3.5-bathroom home that blends modern elegance with functional living on Gardenia Way. There are two facade choices for this model and colours for exterior are customizable. The upper level features three spacious bedrooms, a main bathroom, and a convenient large laundry room. The primary suite is a true retreat, complete with a walk-in closet and a spa-like ensuite, including dual vanities, walk-in shower, and a luxurious soaker tub. On the main level, youll find a welcoming front entry, and access to/from the attached garage, a powder room, and a bright open-concept kitchen, dining, and living areaperfect for entertaining with direct access to the back deck. The walkout basement expands your living space with a fourth bedroom, full bathroom, under-stair storage, utility room, and a versatile recreation space. Buyers will appreciate the high-quality standard finishes available, along with a variety of customizable upgrade and enhancement options to personalize their home. Completion to be 8 months from contract date. The "Morgan" model starts at $899,900 can also be built on a lot backing onto a natural greenbelt for a premium lot fee of $22,000 on the base price. Alternatively, this lot can also accommodate other models from Rooftight Homes such as the "Brielle" bungalow and "Grace" 2-storey plan. Dont miss your opportunity to own in this exciting new community that is closeby Dartmouth landmarks such as the Mic Mac Bar & Grill, Shubie Park, Lake Banook (with its award winning paddling clubs), walking trails, & all major amenities, and Dartmouth Crossing is just 10 minutes away! (231676844)

Location Description

Terrastone Ridge to Gardenia Way

Property Summary

Property Type
Single Family
Building Type
House
Storeys
2
Square Footage
3116 sqft
Community Name
Dartmouth
Title
Freehold
Land Size
0.3195 ac
Parking Type
Garage, Attached Garage, Paved Yard
Time on REALTOR.ca
16 days

Building

Bedrooms
Above Grade
3
Below Grade
1
Bathrooms
Total
4
Partial
1
Interior Features
Appliances Included
None
Flooring
Carpeted, Laminate, Tile
Basement Type
Full (Finished)
Building Features
Foundation Type
Poured Concrete
Style
Detached
Heating & Cooling
Cooling
Wall unit, Heat Pump
Utilities
Utility Sewer
Municipal sewage system
Water
Municipal water
Exterior Features
Exterior Finish
Stone, Vinyl
Neighbourhood Features
Community Features
Recreational Facilities, School Bus
Amenities Nearby
Park
Parking
Parking Type
Garage, Attached Garage, Paved Yard
Accessibility Features
Entry and Access
32in min Entry Doorways, Entry less than 3 steps, Entry threshold less than ½ inch
Interior Navigation
32in min Doorways

Measurements

Square Footage
3116 sqft
Source: Other
Total Finished Area
3116 sqft

Rooms

MetricImperial
Main level
Foyer
Mud room
Bath (# pieces 1-6)
Kitchen
Other
Dining room
Great room
Second level
Bedroom
Bedroom
Bath (# pieces 1-6)
Laundry room
Primary Bedroom
Lower level
Bath (# pieces 1-6)
Recreational, Games room
Bath (# pieces 1-6)
Bedroom

Land

Lot Features
Landscape Features
Partially landscaped
Are you interested in touring this listing?
Request a showing

Similar Listings

Jacqui Rostek Holder