We use cookies and other technologies for functionality, security, and to provide you with a personalized experience on our online services. By continuing to use our online services, you agree to our Privacy Policy and Terms of Use. For information on how to adjust your privacy settings, visit our Cookie Policy.
Dismiss
Home ON Greater Windsor Essex County Windsor Remington Park
1531 BLUE SPRING DRIVE
Directions Print
1531 BLUE SPRING DRIVE $699,999
$699,999
Hide
Favourite

1531 BLUE SPRING DRIVE
Windsor, Ontario N8W5L5

MLS® Number: 25029352
3
Bedrooms
2
Bathrooms
1330
Square Feet

Listing Description

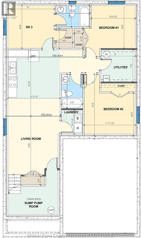
WELCOME TO 1531 BLUE SPRING DR. IN THE HEART OF WINDSOR. ROYALTY HOMES PRESENTS, TO BE BUILT(SUMMER CLOSING 2026), 1330 SQ FT RAISED RANCH COMPRISING OF 3 BEDROOMS AND 2 BATH, INCLUDING ENSUITE WITH SIDE ENTRANCE. OPEN CONCEPT LAYOUT WITH KITCHEN BAR AND WALK IN PANTRY, GRANITE/QUARTS COUNTERS THROUGH OUT. ENGINEERED HARDWOOD AND PORCELAIN TILE IN WET AREAS WITH UPGRADED TRIM AND FINISHES. LARGE FRONT PORCH, DOUBLE CAR GARAGE WITH INSIDE ENTRY. ROUGHED IN BASEMENT BATH/ KITCHEN FOR FUTURE FINISHING. ESTABLISHED NEIGHBOURHOOD, CLOSE TO DEVONSHIRE MALL, SCHOOLS, SHOPPING AND PARKS. SECURE YOUR UNIT TODAY, 2 REMAINING LOTS. FOR MORE INFO PLEASE EMAIL L/S. Taxes included in the asking price. (54159168)

Property Summary

Property Type
Single Family
Building Type
House
Square Footage
1330 sqft
Title
Freehold
Land Size
40 X 100
Parking Type
Attached Garage, Garage, Inside Entry
Time on REALTOR.ca
73 days

Building

Bedrooms
Above Grade
3
Bathrooms
Total
2
Interior Features
Flooring
Ceramic/Porcelain, Hardwood
Building Features
Features
Paved driveway, Front Driveway
Foundation Type
Concrete
Style
Detached
Architecture Style
Raised ranch
Heating & Cooling
Cooling
Central air conditioning
Heating Type
Furnace, Heat Recovery Ventilation (HRV), (Natural gas)
Exterior Features
Exterior Finish
Aluminum/Vinyl, Brick
Parking
Parking Type
Attached Garage, Garage, Inside Entry

Measurements

Square Footage
1330 sqft
Total Finished Area
1330 sqft

Rooms

Main level
Primary Bedroom
Bedroom
Bedroom
3pc Ensuite bath
4pc Bathroom
Kitchen/Dining room
Living room/Dining room

Land

Other Property Information
Zoning Description
RES
Are you interested in touring this listing?
Request a showing

Similar Listings

SHADI HABIB