We use cookies and other technologies for functionality, security, and to provide you with a personalized experience on our online services. By continuing to use our online services, you agree to our Privacy Policy and Terms of Use. For information on how to adjust your privacy settings, visit our Cookie Policy.
Dismiss
Home ON Greater Barrie Simcoe County Barrie
81 INNISFIL STREET
Directions Print
81 INNISFIL STREET $1,149,900
$1,149,900
Hide
Favourite

81 INNISFIL STREET
Barrie (Sanford), Ontario L4N3E3

MLS® Number: S12558156
11
Bedrooms
6
Bathrooms
3500 - 5000
Square Feet

Listing Description

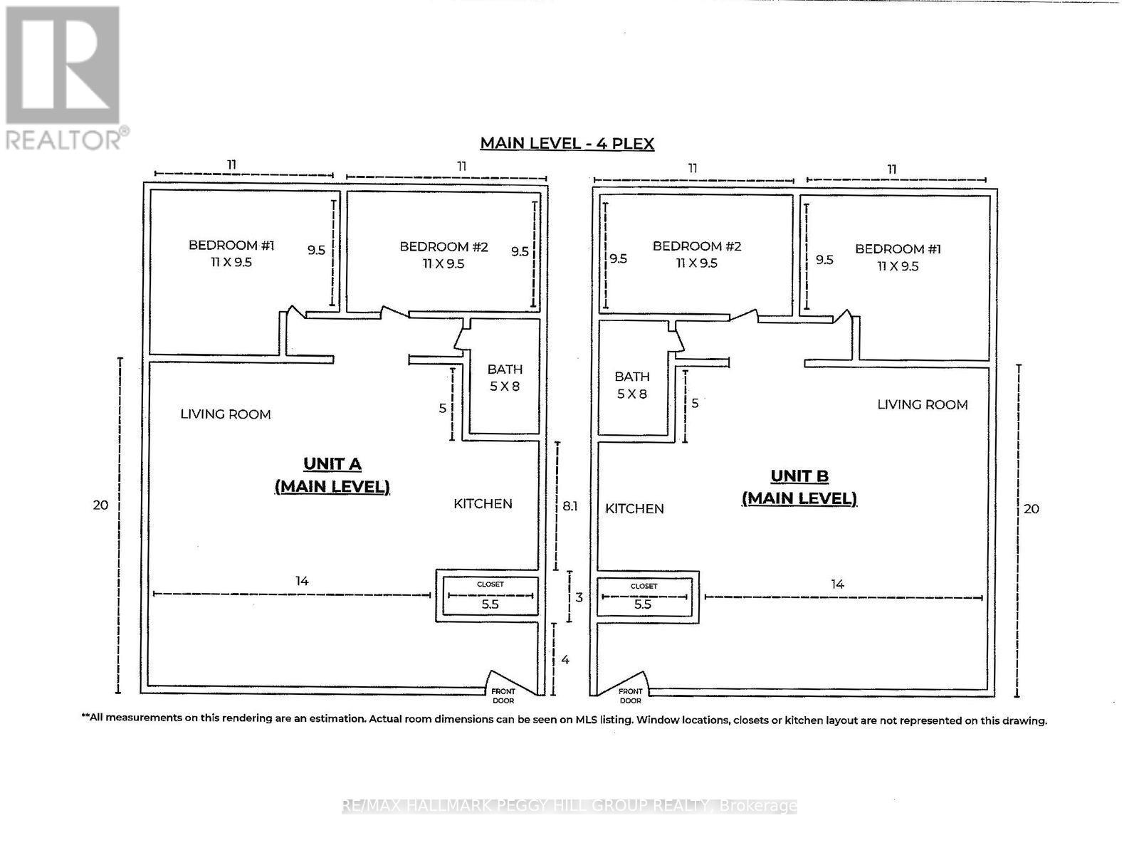
UNBEATABLE INVESTMENT OPPORTUNITY IN BARRIE'S LAKESHORE DISTRICT - RARE LEGAL MULTIPLEX WITH RELIABLE CASH FLOW & STRONG FUTURE GROWTH POTENTIAL! Outstanding opportunity to acquire a legal income-generating multiplex in one of Barrie's most coveted Lakeshore locations, just steps from Kempenfelt Bay and Centennial Beach. Within walking distance of restaurants, shopping, parks, and Barrie's vibrant downtown core filled with entertainment, community events, and waterfront activities, this property truly delivers on lifestyle and convenience. The location also offers excellent connectivity with quick access to the Allandale Waterfront GO Station, local transit routes, and Highway 400. The main front unit features a charming covered porch, a generous yard, a bright, open eat-in kitchen and living room, three upper-level bedrooms, and a full bath. Comfort is assured with forced-air heating and central air conditioning. Behind it, the rear fourplex offers four well-designed units, each with an eat-in kitchen, open living space, two bedrooms, and a full bath, all heated with electric baseboards. With an extended driveway providing ample parking, separate entrances and utility metres, individual storage for every unit, and all kitchen appliances included, this versatile property generates reliable income with plenty of potential for upgrades and future growth. Properties of this scale and in such a prime location are rarely available - secure this exceptional investment today and reap the rewards for years to come! (41675905)

Location Description

Cross Streets: Victoria St/Innisfil St. ** Directions: Bradford St/Victoria St/Innisfil St.

Property Summary

Property Type
Multi-family
Building Type
Other
Storeys
2
Square Footage
3500 - 5000 sqft
Community Name
Sanford
Land Size
66 x 165 FT ; 65.78 X 163.32 X 66.01 ft|under 1/2 acre
Age Of Building
100+ years
Annual Property Taxes
$9,726.99
Parking Type
No Garage
Time on REALTOR.ca
26 days

Building

Bedrooms
Above Grade
11
Bathrooms
Total
6
Partial
1
Interior Features
Appliances Included
Water Heater, Dryer, Stove, Washer, Refrigerator
Basement Features
Separate entrance
Basement Type
Full
Building Features
Features
Flat site, Sump Pump
Foundation Type
Stone, Block
Building Amenities
Separate Electricity Meters
Rental Equipment
Water Heater
Heating & Cooling
Cooling
Central air conditioning
Heating Type
Forced air (Natural gas)
Utilities
Utility Type
Cable (Available), Electricity (Installed), Sewer (Installed)
Utility Sewer
Sanitary sewer
Water
Municipal water
Exterior Features
Exterior Finish
Brick, Vinyl siding
Neighbourhood Features
Amenities Nearby
Park, Public Transit, Schools, Beach
Parking
Parking Type
No Garage
Total Parking Spaces
6

Measurements

Square Footage
3500 - 5000 sqft

Rooms

MetricImperial
Main level
Foyer
Kitchen
Living room
Bedroom
Bedroom
Kitchen
Living room
Kitchen
Living room
Bedroom
Bedroom
Second level
Kitchen
Living room
Bedroom
Bedroom
Kitchen
Living room
Bedroom
Bedroom
Bedroom
Bedroom
Bedroom

Land

Lot Features
Fencing
Partially fenced
Frontage
66 ft
Land Depth
165 ft
Other Property Information
Zoning Description
RM2
Waterfront Features
Surface Water
Lake/Pond
Are you interested in touring this listing?
Request a showing

Similar Listings

PEGGY HILL