We use cookies and other technologies for functionality, security, and to provide you with a personalized experience on our online services. By continuing to use our online services, you agree to our Privacy Policy and Terms of Use. For information on how to adjust your privacy settings, visit our Cookie Policy.
Dismiss
Home BC Okanagan-Similkameen Rural Osoyoos
28 NINE MILE Place
Directions Print
28 NINE MILE Place $999,900
$999,900
Hide
Favourite

28 NINE MILE Place
Osoyoos, British Columbia V0H1V6

MLS® Number: 10369206
3
Bedrooms
3
Bathrooms
3150
Square Feet

Listing Description

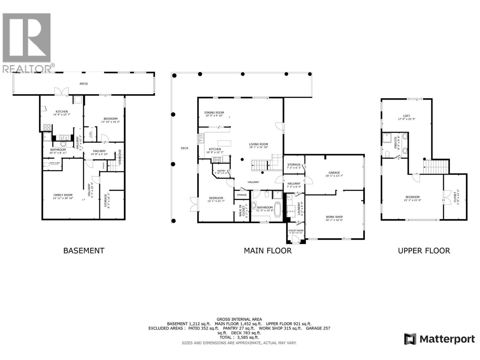
MUST-SEE!!! This custom-built log home is situated on a FLAT 10.6-acre lot fronting Highway 3, providing easy year-round access. The home features unobstructed views of the valley to the south. The main floor includes a bedroom, living room with vaulted ceiling, and loft. The primary bedroom is located on the second floor with a large walk-in closet and ensuite, and there's potential for another bedroom there. The walkout basement includes a bedroom and potential for a rental suite with its own bathroom and kitchen. A wrap-around deck offers stunning views, is ideal for entertaining guests. This property has potential as a vacation retreat, a summer home, or a place to raise horses with 3 acre fenced for horse corral and 4 stall barn with 2 attached 100 bale hay sheds on the side of the barn. This property has so much more to offer, schedule your private tour and make it yours! (39475262)

Property Summary

Property Type
Single Family
Building Type
House
Storeys
2
Square Footage
3150 sqft
Neighbourhood Name
Osoyoos Rural
Title
Freehold
Land Size
10.6 ac|10 - 50 acres
Built in
2008
Annual Property Taxes
$5,223
Parking Type
Attached Garage (2)
Time on REALTOR.ca
81 days

Building

Bathrooms
Total
3
Partial
0
Interior Features
Appliances Included
Refrigerator, Dishwasher, Dryer, Washer
Flooring
Wood, Tile
Building Features
Features
Level lot, Private setting, Treed, Balcony
Style
Detached
Heating & Cooling
Fireplace
1
Fireplace Type
Conventional (Wood)
Heating Type
(Electric), Stove (Wood)
Utilities
Utility Sewer
Septic tank
Water
Well
Exterior Features
Roof Style
Metal
Exterior Finish
Wood siding
Neighbourhood Features
Community Features
Rural Setting
Amenities Nearby
Ski area
Parking
Parking Type
Attached Garage (2)
Total Parking Spaces
2

Measurements

Square Footage
3150 sqft

Rooms

MetricImperial
Main level
Other
Storage
Pantry
Living room
Laundry room
Kitchen
Dining room
Bedroom
4pc Bathroom
Second level
Other
Loft
3pc Ensuite bath
Primary Bedroom
Basement
Kitchen
Full bathroom
Bedroom
Family room

Land

Lot Features
Landscape Features
Level, Wooded area
View
Mountain view, Valley view, View (panoramic)
Other Property Information
Access
Highway access
Are you interested in touring this listing?
Request a showing

Similar Listings

Shima Sarempour