We use cookies and other technologies for functionality, security, and to provide you with a personalized experience on our online services. By continuing to use our online services, you agree to our Privacy Policy and Terms of Use. For information on how to adjust your privacy settings, visit our Cookie Policy.
Dismiss
Home ON Greater Thunder Bay Thunder Bay District Thunder Bay College Heights
3207 96 High ST N
Directions Print
3207 96 High ST N $423,420
$423,420
Hide
Favourite

3207 96 High ST N
Thunder Bay, Ontario P7A5R3

MLS® Number: TB253344
2
Bedrooms
1
Bathrooms
1420
Square Feet

Listing Description

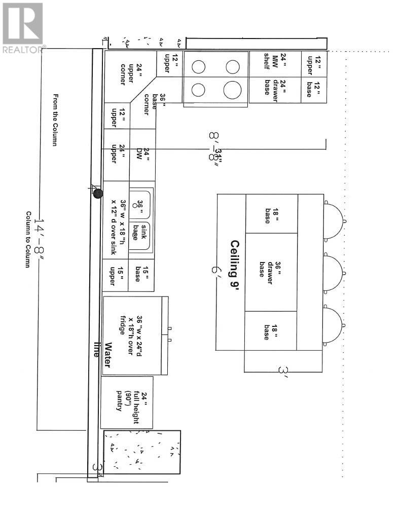
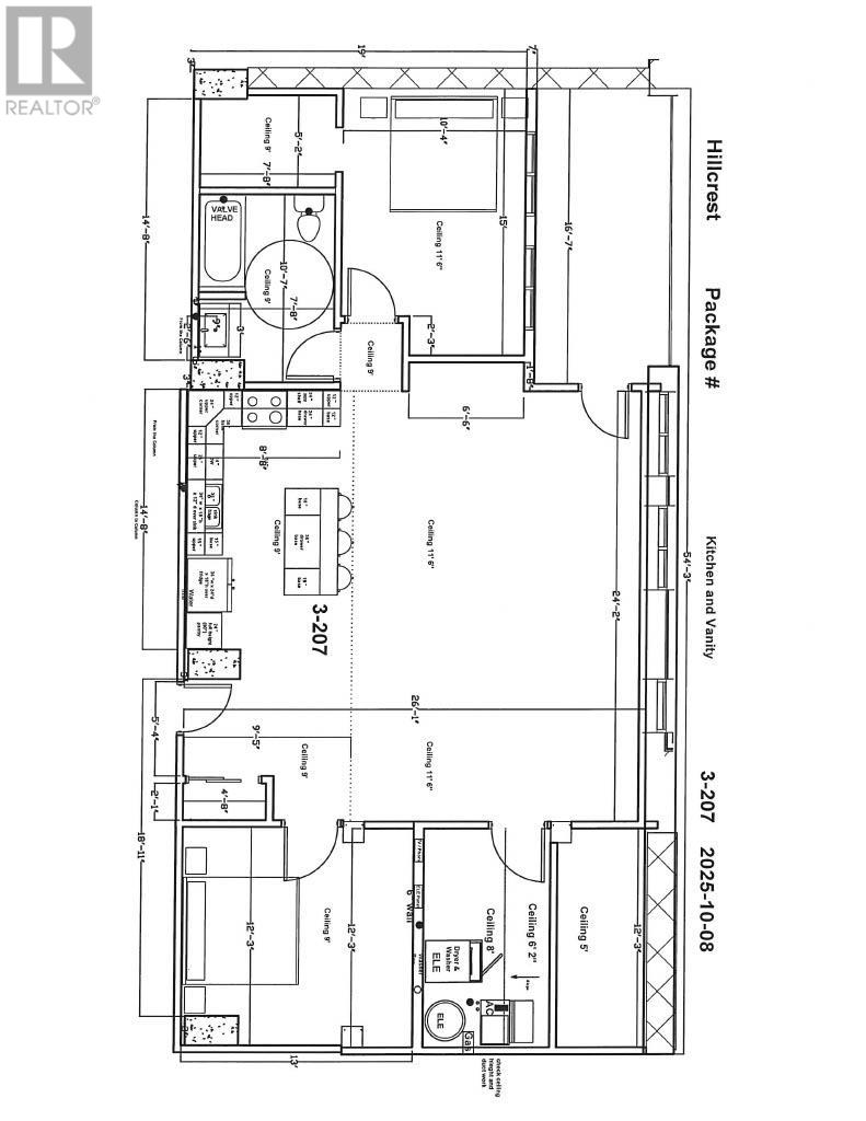
Welcome to #3207, where lifestyle meets comfort in the heart of College Heights. This west-facing 2-bedroom, 1-bath condo offers 1,420 sq. ft. of bright, open living with 10-foot ceilings, a unique layout, and an 18'11" balcony. Modern finishes include quartz countertops, quality flooring, and designer fixtures. Enjoy exceptional amenities, rooftop terrace, fitness studio, pickleball & basketball courts, theatre room, and more, all just minutes from downtown Thunder Bay. (29297504)

Location Description

Corner of Van Norman and North High Street. Park at the lower level parking at the very left of bldg.

Property Summary

Property Type
Single Family
Building Type
Apartment
Storeys
1
Square Footage
1420 sqft
Community Name
Thunder Bay
Title
Condominium
Land Size
(0 Acres)|under 1/2 acre
Built in
2026
Annual Property Taxes
$0
Parking Type
No Garage
Time on REALTOR.ca
98 days

Building

Bedrooms
Above Grade
2
Bathrooms
Total
1
Partial
0
Interior Features
Appliances Included
Dishwasher, Stove, Dryer, Refrigerator, Washer
Building Features
Features
Balcony
Building Amenities
Common Area Indoors, Laundry - In Suite, Storage - Locker
Heating & Cooling
Cooling
Air exchanger, Central air conditioning
Heating Type
Forced air, (Natural gas)
Utilities
Utility Type
Cable (Available), Electricity (Available), Natural Gas (Available), Telephone (Available)
Utility Communications
High Speed Internet
Utility Sewer
Sanitary sewer
Water
Municipal water
Neighbourhood Features
Community Features
Bus Route
Maintenance or Condo Information
Maintenance Fees
$417 Monthly
Maintenance Fees Include
Common Area Maintenance, Insurance, Parking, Water
Parking
Parking Type
No Garage

Measurements

Square Footage
1420 sqft

Rooms

MetricImperial
Main level
Living room
Kitchen
Primary Bedroom
Bedroom
Bathroom

Land

Other Property Information
Access
Road access
Data provided by: Thunder Bay Real Estate Board
Are you interested in touring this listing?
Request a showing

Similar Listings

CHRISTINE LANNON