We use cookies and other technologies for functionality, security, and to provide you with a personalized experience on our online services. By continuing to use our online services, you agree to our Privacy Policy and Terms of Use. For information on how to adjust your privacy settings, visit our Cookie Policy.
Dismiss
Home AB Greater Calgary Division No. 6 Crossfield
109 Amery Crescent
Directions Print
109 Amery Crescent $599,900
$599,900
Hide
Favourite

109 Amery Crescent
Crossfield, Alberta T0M0S0

MLS® Number: A2263366
2
Bedrooms
2
Bathrooms
1417
Square Feet

Listing Description

Welcome to a home where thoughtful craftsmanship, timeless finishes, and intelligent design come together in perfect harmony. Located in a peaceful, family-friendly neighbourhood, this stunning McKee-built bungalow offers over 1,400 sq ft of main floor living and a partially finished basement that’s already prepped with drywall, luxury vinyl plank flooring, and Dricore subflooring—ready for your finishing touches. Step inside and be greeted by soaring 10’ ceilings and engineered hand-scraped hardwood floors that create an instant sense of space and elegance. The custom kitchen is truly the heart of this home, featuring painted cabinetry, quartz countertops, a gas stove with a showpiece custom hood fan, built-in wood shelving, and a matching island eating bar. A walk-through pantry offers ample storage and everyday convenience. The open-concept living room includes a cozy gas fireplace and bright windows that flood the space with natural light, while the dining area is accented with a transom window for added architectural interest. With two spacious bedrooms and two full bathrooms on the main floor, this home is equally ideal for growing families or downsizers looking for one-level living. The primary bedroom is a peaceful retreat that easily accommodates king-sized furniture and includes a luxurious 5-piece ensuite complete with double vanity, soaker tub, separate shower, and a generous walk-in closet. A dedicated main floor laundry room adds convenience, and the front-attached garage comes outfitted with a high-end Gladiator organization system—ideal for anyone who appreciates a tidy space. Step outside to a beautifully landscaped and fenced backyard that backs onto a rear lane, offering extra privacy and versatility. Invisible screens on the front and back doors allow you to enjoy fresh air without the bugs, and a Kinetico water system adds another level of comfort and quality. This is a rare opportunity to own a well-built, move-in-ready bungalow by one of the m ost trusted local builders. Whether you're relaxing at home or entertaining guests, this property offers the lifestyle you've been dreaming of. Don’t wait—book your private showing today and make this stunning bungalow your next home! (31233543)

Property Summary

Property Type
Single Family
Building Type
House
Storeys
1
Square Footage
1417 sqft
Title
Freehold
Land Size
4596 sqft|4,051 - 7,250 sqft
Built in
2016
Annual Property Taxes
$4,415
Parking Type
Attached Garage (2)
Time on REALTOR.ca
67 days

Building

Bedrooms
Above Grade
2
Bathrooms
Total
2
Partial
0
Interior Features
Appliances Included
Refrigerator, Gas stove(s), Dishwasher, Microwave, Freezer, Hood Fan, Window Coverings, Garage door opener, Washer & Dryer
Flooring
Carpeted, Ceramic Tile, Hardwood, Vinyl Plank
Basement Type
Full (Partially finished)
Building Features
Features
Other, Back lane, PVC window, Closet Organizers, No Smoking Home
Foundation Type
Poured Concrete
Style
Detached
Architecture Style
Bungalow
Construction Material
Wood frame
Structures
Deck
Heating & Cooling
Cooling
None
Fireplace
1
Heating Type
Forced air
Parking
Parking Type
Attached Garage (2)
Total Parking Spaces
4

Measurements

Square Footage
1417 sqft
Total Finished Area
1417 sqft

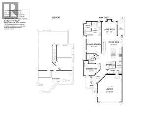
Rooms

MetricImperial
Main level
Kitchen
Dining room
Living room
Laundry room
Primary Bedroom
5pc Bathroom
Bedroom
4pc Bathroom

Land

Lot Features
Fencing
Fence
Frontage
12.2 m
Land Depth
35 m
Landscape Features
Landscaped
Other Property Information
Zoning Description
R-1B
Data provided by: Pillar 9™
Are you interested in touring this listing?
Request a showing

Similar Listings

Heather Yates