We use cookies and other technologies for functionality, security, and to provide you with a personalized experience on our online services. By continuing to use our online services, you agree to our Privacy Policy and Terms of Use. For information on how to adjust your privacy settings, visit our Cookie Policy.
Dismiss
Home ON Greater Brockville United Counties of Leeds and Grenville Brockville
744 COMSTOCK CRESCENT
Directions Print
744 COMSTOCK CRESCENT $499,900
Next Open House
Dec
18
$499,900
Hide
Favourite

744 COMSTOCK CRESCENT
Brockville, Ontario K6V6E1

MLS® Number: X12420813
3 + 2
Bedrooms
2
Bathrooms
700 - 1100
Square Feet

Listing Description

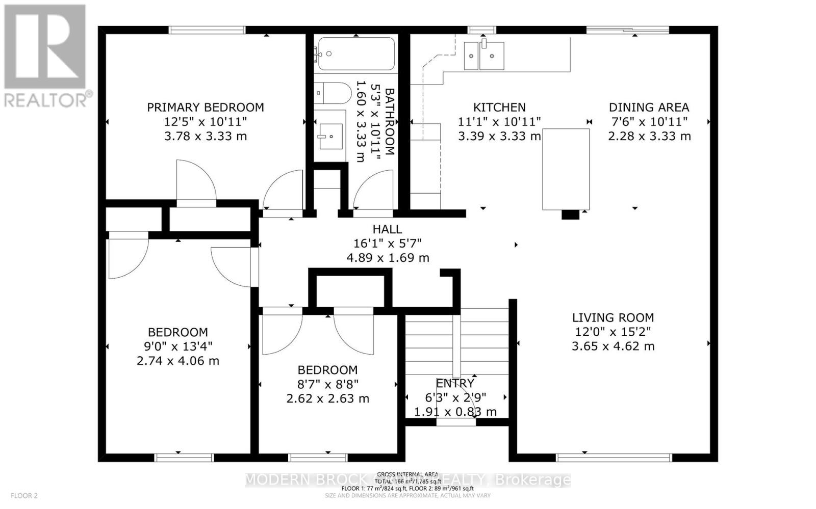
Welcome to this fully renovated raised bungalow in Brockville's desirable north end, where modern updates meet timeless comfort. This home offers 3+2 bedrooms, 2 full bathrooms, and over 1,700 sq. ft. of finished living space, making it an excellent choice for families, professionals, or anyone seeking a move-in ready property. Renovated from top to bottom, every detail has been thoughtfully updated to ensure both style and peace of mind. The open-concept main floor is bright and welcoming, with large windows that fill the home with natural light. The spacious living room flows into the dining area and brand-new kitchen, complete with stylish cabinetry and a large island that provides extra prep space and seating. Patio doors lead directly to the brand-new deck, creating the perfect space for entertaining or enjoying your morning coffee. Downstairs, the fully finished lower level offers plenty of versatility. A generous family room provides space for movie nights or a playroom, while two additional bedrooms and a full bathroom are ideal for guests, teenagers, or a home office. The mechanical room is well-organized and includes updated systems, offering easy access and peace of mind. Outside, the property features a fenced backyard with mature trees, offering privacy and space for kids or pets to play. The new deck is the highlight of the backyard, perfect for summer barbecues or simply relaxing at the end of the day. All major updates have been completed, including a new roof, windows, furnace, central air, plumbing, electrical, and an owned new water heater. Modern finishes throughout the home, paired with these upgrades, create a property that is truly turnkey. Located in Brockville's sought-after north end, this home is close to schools, parks, shopping, and offers quick highway access. This is your opportunity to own a fully updated home in a prime location where all the hard work has already been done. Simply move in and enjoy! (41320929)

Location Description

Cross Streets: Dana Street. ** Directions: Head north on Stewart Blvd and turn right on Laurier Blvd. Make a left on Dana Street and then another left on Comstock. Property will be on the right.

Open Houses

Dec 18
7-8 PM
Add to Calendar

Property Summary

Property Type
Single Family
Building Type
House
Storeys
1
Square Footage
700 - 1100 sqft
Community Name
810 - Brockville
Title
Freehold
Land Size
50 x 101 FT
Annual Property Taxes
$3,310
Parking Type
No Garage
Time on REALTOR.ca
84 days

Building

Bedrooms
Above Grade
3
Below Grade
2
Bathrooms
Total
2
Interior Features
Appliances Included
Water Heater, Dishwasher, Stove
Basement Type
Full (Finished)
Building Features
Features
Carpet Free
Foundation Type
Concrete
Style
Detached
Architecture Style
Raised bungalow
Structures
Deck
Heating & Cooling
Cooling
Central air conditioning
Heating Type
Forced air (Natural gas)
Utilities
Utility Sewer
Sanitary sewer
Water
Municipal water
Exterior Features
Exterior Finish
Brick, Vinyl siding
Parking
Parking Type
No Garage
Total Parking Spaces
3

Measurements

Square Footage
700 - 1100 sqft

Rooms

MetricImperial
Main level
Living room
Dining room
Kitchen
Primary Bedroom
Bedroom 2
Bedroom 3
Bathroom
Lower level
Bathroom
Utility room
Bedroom 4
Bedroom 5
Family room

Land

Lot Features
Fencing
Fully Fenced
Frontage
50 ft
Land Depth
101 ft
Data provided by: Rideau - St. Lawrence Real Estate Board
Are you interested in touring this listing?
Request a showing

Similar Listings

Orlando Spicer